Дизайнеры Анна Козлова и Венера Терегулова решили сделать интерьер в пудрово-бежевых тонах не женственным и нежным, а диким и брутальным. Посмотрите, что у них получилось
Гостиная. Кресла и столик, La Redoute. Диван, divan.ru. Пуфы, Ogogo обстановочка. Тумба под ТВ, Zara Home. Торшер и потолочный светильник в диванной зоне — советский винтаж.

Дизайнеры Анна Козлова и Венера Терегулова.
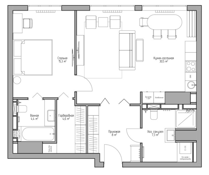
ОБЩИЕ ПАРАМЕТРЫ
Тип недвижимости: квартира- новостройка
Где находится: ЖК «Сердце Столицы»
Метраж: 70 м2
Стиль: авторская интерпретация Баухаус с нотами mid-century modern на фоне актуальных тенденций в отделке в духе нео-первобытности
Основная идея проекта: создать актуальный интерьер в нюдовой цветовой гамме, но сделать его не нежным пастельным, а, напротив, грубым и самобытным
Авторы проекта: Анна Козлова, т. +7(903) 262-13-65, Венера Терегулова, т. +7 (916) 117-47-93, VIA Interior buro, www.viainterior.ru

Гостиная, фрагмент. Кресла и столик, La Redoute. Диван, divan.ru. Пуфы, Ogogo обстановочка. Торшер и люстра — советский винтаж. На стенах и потолке краска Safari, Lanors.
Самый необычный элемент интерьера — роспись стены в спальне, напоминающая доисторические наскальные рисунки

Гостиная, фрагмент. Кресла, La Redoute. Диван, divan.ru.
У заказчика были инвестиционные планы на эту квартиру, поэтому ее надо было выделить с помощью интересного дизайна, но строго в бюджетных рамках. Создавать интерьер для неизвестного жильца сложно и в то же время увлекательно: можно придумать его характер и биографию. Дизайнеры решили, что квартира предназначается для молодой респектабельной пары, работающей в центре Москвы, предпочитающей обедать в ресторанах и иногда готовить дома. Пара любит принимать гостей и ориентируется в мире дизайна и искусства.

Гостиная, фрагмент. Кресла, La Redoute. Диван, divan.ru. Консоль у дивана, woodido.ru.
«В изначальном проекте это была двухкомнатная квартира с изолированными комнатами, — рассказывают Анна Козлова и Венера Терегулова. — После рассмотрения нескольких вариантов планировки приняли решение остановиться на варианте с совмещенной кухней-гостиной. Квартира видовая, заказчик хотел сделать на этом акцент». В приватной зоне спальни удалось выделить зону для отдельного санузла и гардеробной, в основной части квартиры обустроили просторный холл с вместительным гардеробом и гостевой санузел с функцией постирочной.

Зона столовой и кухни. Стол сделан на заказ. Светильник над столом, Aromas. Кухня, Fabio kitchen.
В основе стилистики — идея «пещеры» в большом городе. «Мы хотели создать актуальный интерьер в цветовой гамме nude, — объясняют авторы проекта, — но сделать его не нежным пастельным, а, напротив, грубым и самобытным». Так возник образ «пещеры» и вытыкающие из него оттенки земли, контраст фактур, рукотворные предметы мебели и декора, которые соединены с вещами, вдохновленными периодом bauhaus и mid-century.

Столовая группа. Стол сделан на заказ. Стулья, винтаж. Светильник над столом, Aromas.
На кухне, к примеру, нижние шкафы своими пропорциями отсылают к эстетике bauhaus, а отделка верхних корпусов (фактурный шпон ясеня) отражает концепцию нео-первобытности, природности, рукотворности. Современные пеналы с техникой отдалили от основной концептуальной части и слили со стеной, чтобы не нарушать атмосферу. Обеденной зоне особый шарм придают винтажные итальянские стулья Belotti (Италия, 1980-е), от Tonro Gallery. Их сиденья обтянуты кожей растительного дубления.

Зона кухни и столовой, фрагмент.

Зона кухни, фрагмент.
Самый необычный элемент в интерьере — роспись стены в спальне. «Мы долго искали вариант отделки акцентной стены, — вспоминают авторы проекта, — рассматривали обои, панно, гобелены. Однако нам не попадалось ничего такого, что соответствовало бы концепции и не выходило за пределы бюджета заказчика».
Отчаявшись, дизайнеры пришли к выводу, что раз им не удается найти что-то готовое, придется расписать стену самим — и это было лучшее решение. Вдохновившись примерами наскальных рисунков, они вместе с художником Марией Намоловой разработали эскизы, утвердили технику нанесения и получили отличный результат.

Спальня. Кресло, винтаж. Письменный стол и бра, Lа Redoute. Кровать сделана на заказ по эскизам дизайнеров. Люстра, Market SET.

Спальня, фрагмент. Кровать сделана на заказ по эскизам дизайнеров. Прикроватный столик, Lа Redoute.

Ванная комната. Тумбы, Fullhouse Mebel. Раковина из бетона, onlybeton.ru.
С бетонной раковиной в ванной комнате, которая тоже стилизована под «пещеру», случилась история из разряда «не было бы счастья, да несчастье помогло». Подходящую модель нашли, но производитель не был готов сделать ее в нужном бежевом оттенке. Икали в других местах, но все было не то — цены, сроки, формы. Решили вернуться в первую компанию, смирившись с тем, что раковина будет белой. Но в процессе изготовления что-то пошло не так, и раковина потемнела как раз до нужного оттенка. Из компании звонили и извинялись, не предполагая, что все сложилось как нельзя лучше.

Гардеробная. Шкафы, ИКЕА.

Санузел при входе. Маленькое гобеленовое панно справа сделано специально для этого проекта.

Прихожая. Винтажные шарообразные светильники, Chronosfactor. Полка для мелочей, ИКЕА. Пуф, Ogogo.ru. Двери, «Волховец».

Прихожая, фрагмент.

Квартира 70 кв. м. Проект Анны Козловой и Венеры Терегуловой.