Рассматриваем плюсы и минусы квартир в панельке, выбираем подходящий стиль и разбираемся, что делать с планировкой, когда большинство стен — несущие, на примере реальных квартир.
Типовые «панельки» хорошо знакомы всем нам. Проектировщики учли недостатки хрущевок и сделали этот тип жилья более комфортным, но все равно не обошлось без недостатков. О плюсах и минусах поговорим в этой статье. А еще разберем самые популярные планировки в панельных домах и разберем, как можно обыграть их особенности на примере реализованных проектов.
Все о дизайне квартиры в панельном доме
Особенности
— Низкие потолки
— Несущие конструкции
— Плохая звукоизоляция
— Ровные стены
— Маленькие комнаты
Примеры планировок
— Однокомнатная
— Двухкомнатная
— Трехкомнатная
— Четырехкомнатная
Выбор стиля
Особенности
Несмотря на десятки разных серий, у всех панелек есть общие черты, которые нужно учитывать при ремонте такого жилья.
Низкие потолки

Одна из самых ярких черт типовых домов позднего советского времени — низкие потолки. Конечно, в более новых сериях они стали немного выше (2,7, а где-то и 2,8 м), но чаще всего это знакомые владельцам хрущевок показатели в 2,5-2,6 метра.
В отличие от других архитектурных особенностей, которые можно изменить, с высотой потолков ничего нельзя сделать. А значит — нужно работать с тем, что есть. Добиться желаемого визуального эффекта помогают различные декораторские приемы: например, выкрасить потолок в белый цвет, использовать на стенах вертикальные полосы или окрашивание колор-блок, сделать подсветку по периметру, выбирать невысокую мебель и т.д.
8 фото

Дизайн: Юлия Левина. Фото: Сергей Кузнецов

Дизайн: Юлия Левина. Фото: Сергей Кузнецов

Дизайн: Елена Иванова. Фото: Дина Александрова. Стиль: Яна Яхина и Полина Рожкова

Дизайн: Елена Иванова. Фото: Дина Александрова. Стиль: Яна Яхина и Полина Рожкова

Дизайн: Милена Яничкина. Фото: Евгений Кулибаба. Стиль: Ольга Васюкова

Дизайн: Милена Яничкина. Фото: Евгений Кулибаба. Стиль: Ольга Васюкова

Дизайн: Елена Ерашевич. Фото: Егор Пясковский

Дизайн: Елена Ерашевич. Фото: Егор Пясковский
Несущие конструкции
В панельных домах, фото квартир в которых покажем ниже, почти все стены — несущие.

Поскольку их запрещено сносить или переносить, это сводит возможности перепланировки к минимуму. В итоге остается мизерный набор допустимых маневров: перенести вход в помещение или объединить санузел. В любом случае все изменения нужно согласовать, а еще убедиться, что стена, с которой планируются манипуляции, не является несущей. Также не в каждой перегородке разрешат сделать проем: например, в некоторых сериях домов в самой конструкции здания встроены армирующие элементы, которые защищают здание от прогрессирующего обрушения.
14 фото

Дизайн: Юлия Левина. Фото: Сергей Кузнецов

Дизайн: Юлия Левина. Фото: Сергей Кузнецов

Дизайн: Вера Шеверденок. Фото: Евгений Гнесин. Стиль: Евгения Мельникова и Ирина Бебешина

Дизайн: Вера Шеверденок. Фото: Евгений Гнесин. Стиль: Евгения Мельникова и Ирина Бебешина

Дизайн: Вера Шеверденок. Фото: Евгений Гнесин. Стиль: Евгения Мельникова и Ирина Бебешина

Дизайн: Вера Шеверденок. Фото: Евгений Гнесин. Стиль: Евгения Мельникова и Ирина Бебешина

Дизайн: Вера Шеверденок. Фото: Евгений Гнесин. Стиль: Евгения Мельникова и Ирина Бебешина

Дизайн: Дарья Курчанова. Фото: Полина Полудкина

Дизайн: Дарья Курчанова. Фото: Полина Полудкина

Дизайн: Дарья Курчанова. Фото: Полина Полудкина

Дизайн: Дарья Курчанова. Фото: Полина Полудкина

Дизайн: Дарья Курчанова. Фото: Полина Полудкина

Дизайн: Елена Ерашевич. Фото: Егор Пясковский

Дизайн: Елена Ерашевич. Фото: Егор Пясковский
Плохая звукоизоляция
Высокая слышимость — такая же яркая ассоциация с панельками, как низкие потолки и маленькие комнаты.

Шумоизоляция в таких домах значительно слабее, чем в монолитных и кирпичных. В итоге слышно все: ссоры соседей, музыку, ремонт через несколько этажей, а в старых домах — даже обычные разговоры. Бороться с проблемой придется локально — в рамках своей квартиры. Можно обратиться к специалистам и сделать полноценную звукоизоляцию всех помещений. Это эффективно, но требует денежных и временных затрат.
Среди более простых способов:
- Использовать звукопоглощающие отделочные материалы (например, ковровые или велюровые обои, акустические панели).
- Наполнить комнату мебелью — лучше стоящей на полу не на ножках, а всем корпусом.
- Повесить на стену крупное панно или ковер (это может выглядеть стильно!).
- Заменить двери и окна. Для последних лучше выбрать двух- или трехслойные стеклопакеты.
- Повесить плотные шторы — они не окажут решающего эффекта, но чуть приглушат звуки с улицы.
8 фото

Дизайн: Вера Шеверденок. Фото: Евгений Гнесин. Стиль: Евгения Мельникова и Ирина Бебешина

Дизайн: Вера Шеверденок. Фото: Евгений Гнесин. Стиль: Евгения Мельникова и Ирина Бебешина

Дизайн: Анна Маркова и Ксения Шабалина. Фото: Борис Бочкарев

Дизайн: Анна Маркова и Ксения Шабалина. Фото: Борис Бочкарев

Дизайн: Анна Маркова и Ксения Шабалина. Фото: Борис Бочкарев

Дизайн: Анна Маркова и Ксения Шабалина. Фото: Борис Бочкарев

Дизайн: Елена Ерашевич. Фото: Егор Пясковский

Дизайн: Елена Ерашевич. Фото: Егор Пясковский
Ровные стены
А вот эта особенность относится к преимуществам панельных домов.

Стены ровные, им не нужна дополнительная черновая отделка, даже если капитальный ремонт в панельном доме был давно. Это значительно экономит время и деньги во время обновления интерьера. Также благодаря хорошо выровненным поверхностям можно поэкспериментировать с отделочными материалами: выбрать любые обои, краску, декоративную штукатурку. Если полотна с узором, рулоны будет проще аккуратно состыковать.
8 фото

Дизайн: Анна Маркова и Ксения Шабалина. Фото: Борис Бочкарев

Дизайн: Анна Маркова и Ксения Шабалина. Фото: Борис Бочкарев

Дизайн: Анна Маркова и Ксения Шабалина. Фото: Борис Бочкарев

Дизайн: Анна Маркова и Ксения Шабалина. Фото: Борис Бочкарев

Дизайн: Анна Маркова и Ксения Шабалина. Фото: Борис Бочкарев

Дизайн: Дарья Курчанова. Фото: Полина Полудкина

Дизайн: Дарья Курчанова. Фото: Полина Полудкина

Дизайн: Дарья Курчанова. Фото: Полина Полудкина
Маленькие комнаты
Трех- или четырехкомнатная квартира — звучит роскошно? Безусловно! Но до тех пор, пока вы не взглянете на планировку и не увидите общую площадь в 60-80 квадратов и помещения по 8-11 кв. м.

А если вспомнить про низкие потолки и невозможность глобальной перепланировки, то вырисовывается печальная картина. На самом деле однушки и двушки в панельках зачастую неплохие: с достаточно большой кухней и жилыми комнатами. Но чем больше изолированных зон, тем меньше становится площадь каждого отдельно взятого помещения. Исправлять это придется опять же по большей части декоративными приемами: использовать светлую отделку, зеркала, легкий текстиль и отказаться от громоздкой мебели. Еще можно поставить межкомнатные двери с прозрачными стеклянными вставками — это сделает пространство более воздушным и легким.
10 фото

Дизайн: Анна Маркова и Ксения Шабалина. Фото: Борис Бочкарев

Дизайн: Анна Маркова и Ксения Шабалина. Фото: Борис Бочкарев

Дизайн: Милена Яничкина. Фото: Евгений Кулибаба. Стиль: Ольга Васюкова

Дизайн: Милена Яничкина. Фото: Евгений Кулибаба. Стиль: Ольга Васюкова

Дизайн: Милена Яничкина. Фото: Евгений Кулибаба. Стиль: Ольга Васюкова

Дизайн: Милена Яничкина. Фото: Евгений Кулибаба. Стиль: Ольга Васюкова

Дизайн: Елена Иванова. Фото: Дина Александрова. Стиль: Яна Яхина и Полина Рожкова

Дизайн: Елена Иванова. Фото: Дина Александрова. Стиль: Яна Яхина и Полина Рожкова

Дизайн: Елена Иванова. Фото: Дина Александрова. Стиль: Яна Яхина и Полина Рожкова

Дизайн: Елена Иванова. Фото: Дина Александрова. Стиль: Яна Яхина и Полина Рожкова
Планировки квартир в панельном доме
Рассмотрим варианты типовых планировок для разных квартир. И на примере проектов разберем, как можно преобразить пространство, совсем — или почти — не затрагивая изначальный план.
Однокомнатная
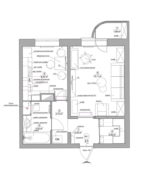
Эта однушка находится в доме современной серии — 2003 года. Площадь небольшая, всего 39 квадратов, но к плюсам можно отнести просторную кухню (9,2 кв. м).

Заказчицей выступила дочь будущей хозяйки квартиры. Жилье оформлялось в подарок, и при создании проекта дизайнеру нужно было учесть вкусы и образ жизни зрелой женщины. Изначальное планировочное решение предполагало большую прихожую, так что ее часть было решено отвести под удобную полноценную гардеробную. Раздельный санузел объединили. Других изменений не вносили.
Поскольку жилье достаточно новое, уже постсоветского периода, потолки здесь чуть выше, чем в хрущевках и брежневках, — 2,7 м. Их выкрасили в белый цвет и добавили лаконичные лепные карнизы — традиционный для неоклассики элемент. Палитра получилась одновременно спокойной и разнообразной: здесь есть и базовые оттенки (бежевый, белый, серый), и приглушенные пастельные (фисташковый, розовый, фиолетовый). Стену за диваном-кроватью оклеили акцентными обоями с изображением японской сакуры, которую любит мама заказчицы.
10 фото

Дизайн: Нина Абасеева. Фото: Ольга Пегова

Дизайн: Нина Абасеева. Фото: Ольга Пегова

Дизайн: Нина Абасеева. Фото: Ольга Пегова

Дизайн: Нина Абасеева. Фото: Ольга Пегова

Дизайн: Нина Абасеева. Фото: Ольга Пегова

Дизайн: Нина Абасеева. Фото: Ольга Пегова

Дизайн: Нина Абасеева. Фото: Ольга Пегова

Дизайн: Нина Абасеева. Фото: Ольга Пегова

Дизайн: Нина Абасеева. Фото: Ольга Пегова

Дизайн: Нина Абасеева. Фото: Ольга Пегова
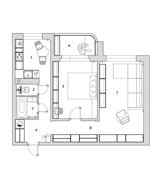
Двухкомнатная
Эта двухкомнатная квартира принадлежит девушке. Несмотря на небольшую площадь (54 квадрата), по изначальному плану были выделены жилые помещения 17 и 12 кв. м соответственно.

Никаких изменений в исходный план не вносили, даже не стали объединять ванную и туалет. Дизайнеры работали с имевшимися объемами, но не обошлось без интересных решений. Так, например, нестандартным получилось расположение зон: обычно гостиной делают ближайшее к кухне помещение, но хозяйка любит принимать дома гостей, поэтому было решено оформить общее пространство в самой большой и, соответственно, дальней комнате. Чтобы обыграть это, систему хранения из спальни перенесли в коридор, идущий от входа в гостиную. Таким образом приватная зона получилась легкой и не заставленной мебелью, а помещения визуально соединяются друг с другом.
Необычно и цветовое решение. В малогабаритках, да еще и с низким потолком (он здесь всего 2,5 метра), нечасто используют глубокие темные оттенки, но дизайнеры вместе с хозяйкой решились на такой эксперимент. Палитру разбавляют яркие акценты, фактура дерева и белый цвет.
10 фото

Дизайн: Татьяна Манцевич и Денис Лавровский. Фото: Егор Пясковский

Дизайн: Татьяна Манцевич и Денис Лавровский. Фото: Егор Пясковский

Дизайн: Татьяна Манцевич и Денис Лавровский. Фото: Егор Пясковский

Дизайн: Татьяна Манцевич и Денис Лавровский. Фото: Егор Пясковский

Дизайн: Татьяна Манцевич и Денис Лавровский. Фото: Егор Пясковский

Дизайн: Татьяна Манцевич и Денис Лавровский. Фото: Егор Пясковский

Дизайн: Татьяна Манцевич и Денис Лавровский. Фото: Егор Пясковский

Дизайн: Татьяна Манцевич и Денис Лавровский. Фото: Егор Пясковский

Дизайн: Татьяна Манцевич и Денис Лавровский. Фото: Егор Пясковский

Дизайн: Татьяна Манцевич и Денис Лавровский. Фото: Егор Пясковский
Трехкомнатная
Эта трешка находится в доме серии П-111М и принадлежит семейной паре с двумя дочерьми.

Исходные условия были неплохими: три жилых зоны площадью 17, 12 и 12 кв. м (их отдали под спальни супругов и дочек), кухня 9,2 кв. м, балкон и большая прихожая. Сделали незначительную перепланировку: объединили ванную с туалетом, выделили в комнате родителей гардеробную и поменяли расположение перегородки между их спальней и коридором. При входе изначально была кладовка, ее превратили во второй санузел. Поскольку отдельного помещения под гостиную не было, зону отдыха организовали на утепленной лоджии при кухне.
У хозяев не было конкретных пожеланий по поводу стиля, поэтому авторы проекта оформили пространство в духе эклектики. Цветовая гамма получилась насыщенной, но сдержанной и уютной. Оттенки перетекают друг в друга из зоны в зону, а натуральные материалы органично сочетаются с искусственными.
14 фото

Дизайн: Надежда Ракова и Алена Гуслиц. Фото: Борис Бочкарев

Дизайн: Надежда Ракова и Алена Гуслиц. Фото: Борис Бочкарев

Дизайн: Надежда Ракова и Алена Гуслиц. Фото: Борис Бочкарев

Дизайн: Надежда Ракова и Алена Гуслиц. Фото: Борис Бочкарев

Дизайн: Надежда Ракова и Алена Гуслиц. Фото: Борис Бочкарев

Дизайн: Надежда Ракова и Алена Гуслиц. Фото: Борис Бочкарев

Дизайн: Надежда Ракова и Алена Гуслиц. Фото: Борис Бочкарев

Дизайн: Надежда Ракова и Алена Гуслиц. Фото: Борис Бочкарев

Дизайн: Надежда Ракова и Алена Гуслиц. Фото: Борис Бочкарев

Дизайн: Надежда Ракова и Алена Гуслиц. Фото: Борис Бочкарев

Дизайн: Надежда Ракова и Алена Гуслиц. Фото: Борис Бочкарев

Дизайн: Надежда Ракова и Алена Гуслиц. Фото: Борис Бочкарев

Дизайн: Надежда Ракова и Алена Гуслиц. Фото: Борис Бочкарев

Дизайн: Надежда Ракова и Алена Гуслиц. Фото: Борис Бочкарев
Четырехкомнатная
Этот проект — типичный пример многокомнатного жилья в панельке, которое при этом по площади сравнимо с современной двушкой.

Так, метраж этой четырехкомнатной квартиры — всего 67 кв. м! Естественно, больших помещений здесь быть просто не могло: в распоряжении хозяев оказались кухня меньше 6 метров и изолированные комнаты площадью около 9 квадратов. Единственное исключение — гостиная 19,7 кв. м. В ней организовали мягкую зону и столовую группу, а также самую большую систему хранения (остальные разместили в спальне и прихожей). Владелица жилья — девушка, она живет одна, но в гости часто приезжает мама. Также заказчице был необходим отдельный кабинет.
Перепланировку не делали, все помещения остались в своих границах — в том числе раздельный санузел. Таким было пожелание хозяйки. Самые маленькие помещения отвели под спальни, среднее — под кабинет. Несмотря на то, что в гостиной есть обеденная зона, на кухне выделили место под небольшой круглый столик с парой стульев. За ним удобно завтракать, пить кофе и обедать.
В целом интерьер решен в типичном для малогабариток стиле: лаконичная базовая отделка, светлая мебель. Но хозяйке нравятся и яркие цвета, поэтому на кухне появился насыщенно-синий гарнитур, а в спальнях — акцентные обои. Все это дополняется разнообразным декором, который девушка привозит из путешествий.
14 фото

Дизайн: Алеся Котова. Фото: Евгений Гнесин. Стиль: Анастасия Власова

Дизайн: Алеся Котова. Фото: Евгений Гнесин. Стиль: Анастасия Власова

Дизайн: Алеся Котова. Фото: Евгений Гнесин. Стиль: Анастасия Власова

Дизайн: Алеся Котова. Фото: Евгений Гнесин. Стиль: Анастасия Власова

Дизайн: Алеся Котова. Фото: Евгений Гнесин. Стиль: Анастасия Власова

Дизайн: Алеся Котова. Фото: Евгений Гнесин. Стиль: Анастасия Власова

Дизайн: Алеся Котова. Фото: Евгений Гнесин. Стиль: Анастасия Власова

Дизайн: Алеся Котова. Фото: Евгений Гнесин. Стиль: Анастасия Власова

Дизайн: Алеся Котова. Фото: Евгений Гнесин. Стиль: Анастасия Власова

Дизайн: Алеся Котова. Фото: Евгений Гнесин. Стиль: Анастасия Власова

Дизайн: Алеся Котова. Фото: Евгений Гнесин. Стиль: Анастасия Власова

Дизайн: Алеся Котова. Фото: Евгений Гнесин. Стиль: Анастасия Власова

Дизайн: Алеся Котова. Фото: Евгений Гнесин. Стиль: Анастасия Власова

Дизайн: Алеся Котова. Фото: Евгений Гнесин. Стиль: Анастасия Власова
Выбор стиля
Оформить жилье в панельном доме можно практически в любом стиле — выбор направления зависит в первую очередь от ваших вкусов.

Это может быть как минимализм или сканди, так и, например, эклектика или винтаж, также хорошо будет смотреться любая умеренная эклектика. Однако нужно учитывать и особенности квартир в панельках, о которых мы говорили раньше. Лучше отказаться от интерьерных стилей, которые требуют большой площади, высоких потолков и окон в пол, а также открытой планировки.
В первую очередь это лофт в чистом виде. А вот взять из него некоторые элементы никто не запрещает: например, облицевать одну из стен декоративным кирпичом, использовать штукатурку под бетон или добавить аксессуары в индустриальном стиле. Также не подойдет классический стиль как он есть. Но его прекрасно заменит неоклассика, в которой сохранены черты традиционных интерьеров, но при этом она легче, лаконичнее и подходит для малометражек. Если у вас есть старинная мебель, доставшаяся по наследству, или винтажный декор, смело интегрируйте их в современную обстановку — получится интересный и самобытный микс.
15 фото

Дизайн: Инна Чашина. Фото: Алексей Ключников

Дизайн: Инна Чашина. Фото: Алексей Ключников

Дизайн: Инна Чашина. Фото: Алексей Ключников

Дизайн: Вера Шеверденок. Фото: Евгений Гнесин. Стиль: Евгения Мельникова и Ирина Бебешина

Дизайн: Вера Шеверденок. Фото: Евгений Гнесин. Стиль: Евгения Мельникова и Ирина Бебешина

Дизайн: Вера Шеверденок. Фото: Евгений Гнесин. Стиль: Евгения Мельникова и Ирина Бебешина

Дизайн: Вера Шеверденок. Фото: Евгений Гнесин. Стиль: Евгения Мельникова и Ирина Бебешина

Дизайн: студия «Свой дизайн». Фото: Алексей Чеботарь

Дизайн: студия «Свой дизайн». Фото: Алексей Чеботарь

Дизайн: студия «Свой дизайн». Фото: Алексей Чеботарь

Дизайн: студия «Свой дизайн». Фото: Алексей Чеботарь

Дизайн: Милена Яничкина. Фото: Евгений Кулибаба. Стиль: Ольга Васюкова

Дизайн: Милена Яничкина. Фото: Евгений Кулибаба. Стиль: Ольга Васюкова

Дизайн: Милена Яничкина. Фото: Евгений Кулибаба. Стиль: Ольга Васюкова

Дизайн: Милена Яничкина. Фото: Евгений Кулибаба. Стиль: Ольга Васюкова

Анастасия Степанова