Рассматриваем проекты дизайнеров с планировками и собираем «пазл» из систем хранения в спальне.
В видео перечислили варианты размещения систем хранения
1. Комод напротив кровати, шкаф — сбоку
Такая расстановка подойдет тем, у кого не очень большая спальня с окном, расположенным на короткой стене.
В этом случае логично вынести самый большой предмет мебели — шкаф — к противоположной от окна стене. Так он не будет создавать затемненные углы, в которые не попадает свет от окна, и не перегрузит комнату визуально. Идеально, если фасад крупной мебели будет в цвет стен: так она будет еще меньше бросаться в глаза. Кровать стоит параллельно шкафу, и, если позволяют габариты комнаты, напротив нее можно разместить небольшой комод. Убедитесь, что между ним и кроватью будет расстояние не менее 60 см, чтобы было удобно проходить к окну.

Дизайн: Альбина Мухаметшина. Фото: Александр Бурнатов

Дизайн: Альбина Мухаметшина. Фото: Александр Бурнатов

Дизайн: Альбина Мухаметшина. Фото: Александр Бурнатов

Дизайн: Альбина Мухаметшина. Фото: Александр Бурнатов
2. Шкафы и комод напротив кровати
Этот вариант подойдет для комнат, глубина которых позволяет вместить кровать 200 см, шкаф 60 см и, как минимум, 50-60 см для прохода между ними.

Если все вписывается, можно приставить изголовье кровати к одной из длинных стен, а вдоль противоположной разместить и шкаф, и комод друг за другом. Тогда вокруг спального места останется больше воздуха, появится ощущение простора. Чтобы не перегрузить комнату крупной мебелью, стоящей по одной линии, используйте приемы симметрии. Например, вместо одного длинного шкафа возьмите два покороче — это будет удобнее и с точки зрения разделения хранения одежды для двух людей. Между ними встанет комод. За счет перепада высот и симметрии в интерьере появится динамика, он будет смотреться интереснее.

Дизайн: Светлана Кривицкая и Юлия Поздняк. Фото: Виталина Ворошкевич

Дизайн: Светлана Кривицкая и Юлия Поздняк. Фото: Виталина Ворошкевич

Дизайн: Светлана Кривицкая и Юлия Поздняк. Фото: Виталина Ворошкевич
3. Шкаф в углу около окна, комод напротив изножья
Тем, у кого немного одежды или есть привычка держать в шкафу только вещи для текущего сезона, подойдет более компактный в длину гардероб.

Его можно разместить в углу рядом с окном. Рядом встанет комод и таким образом окажется напротив кровати. В этом случае по бокам от спального места остается достаточно много свободного пространства. Можно вписать туда рабочую зону, как в этом примере, или книжный уголок. Часть пространства можно оставить пустым: это не создаст ощущение незавершенности, наоборот, комната будет смотреться легче.

Дизайн: Екатерина Шейн. Фото: Кристина Плеер

Дизайн: Екатерина Шейн. Фото: Кристина Плеер

Дизайн: Екатерина Шейн. Фото: Кристина Плеер

Дизайн: Екатерина Шейн. Фото: Кристина Плеер
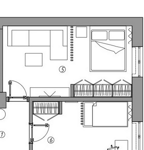
4. Шкаф вдоль стены, комод и еще шкаф напротив
В длинной вытянутой комнате можно расположить крупную мебель в два параллельных ряда, как в этой спальне.

Важно, чтобы между ними оставался удобный проход, в данном случае — не менее 70 см. У окна разместится спальное место. В этом проекте оно односпальное, поэтому осталось пространство для рабочей зоны. Далее идет перегородка, чтобы добавить уединения, и шкаф для одежды. Вдоль же противоположной стены встал комод и еще один шкаф. Получилась очень вместительная и практичная система хранения для спальни-гостиной.

Дизайн: Алина Васьковская и Евгения Ермолаева. Фото: Наталья Градусова. Стиль: Настасья Корбут

Дизайн: Алина Васьковская и Евгения Ермолаева. Фото: Наталья Градусова. Стиль: Настасья Корбут

Дизайн: Алина Васьковская и Евгения Ермолаева. Фото: Наталья Градусова. Стиль: Настасья Корбут
5. Несколько шкафов над и вдоль кровати
Тем, кто ограничен в квадратных метрах и никак не может придумать, как вписать в комнату и кровать, и шкаф с комодом, стоит обратить внимание на пустую стену над изголовьем.

Ее можно целиком отвести под хранение с помощью П-образного шкафа, отказавшись от комода. Гардероб в этом случае встанет вдоль кровати. Чтобы вся конструкция смотрелась минималистично и не громоздко, подбирайте оба шкафа из одной коллекции и в одном оттенке. Будет лучше, если их фасады будут светлыми, а вот с цветом стен можно поэкспериментировать: например, как в этом проекте. Насыщенный горчичный оттенок выделил зону изголовья и добавил красочности всей комнате, прекрасно сочетаясь с холодным белым оттенком шкафов.

Дизайн: Надежда Полякова. Фото: Ник Руденко

Дизайн: Надежда Полякова. Фото: Ник Руденко

Дизайн: Надежда Полякова. Фото: Ник Руденко

Дизайн: Надежда Полякова. Фото: Ник Руденко

Мария Ревина Зонирование