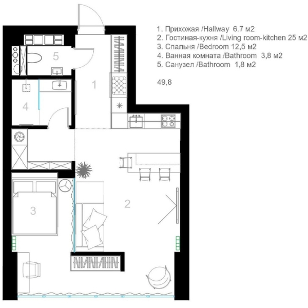
В этом проекте дизайнер Анна Цыбульская из студии ILEDA уделила особое внимание планировке: на 50 кв.м ей удалось разместить светлую кухню-гостиную, спальню с рабочим местом, два санузла и большое количество мест для хранения
Диван выполнен на заказ, Woodmaster. Журнальный стол, Mexo. Напольная ваза, Miloo Home.
«Заказчица обратилась ко мне с просьбой создать комфортный и уютный интерьер, который не надоест со временем. Также она попросила оставить максимум свободного места, организовав при этом достаточно много мест для хранения и выделенные зоны для отдыха, работы и приема гостей», — рассказывает дизайнер Анна Цыбульская.

Керамогранит, Ceramiche Coem. Ковер, MoreStyle. Приставной стол, Richmond interiors. Картина Кирилла Орсика. Декоративная керамика, Liza Pulko.
«Изначально квартира была со свободной планировкой и одной ванной. Нашей задачей было разместить на 50 квадратных метрах два отдельных санузла, спальню, кухню-гостиную и предусмотреть системы хранения. Грамотный подход к разработке планировочного решения позволил распределить все эти зоны и сохранить ощущение объема».

Кухня сделана на заказ, Nocciola. Стулья, Signal. Посуда, Miloo Home. Ваза, Sia. Настольная лампа, Axolight.

Кресло, Molteni&C. Торшер, Pallucco.
«Мы стремились визуально объединить весь интерьер за счет общей цветовой гаммы и единообразия фактур. Стены покрыли декоративной штукатуркой нейтрального теплого оттенка, а на пол положили широкоформатный керамогранит с текстурой натурального камня. Такая отделка служит идеальным фоном для дополнительных акцентов в мебели и декоре и не теряет актуальность.

Рабочий стол выполнен на заказ, Nocciola. Стул, Calligaris. Свет, Maytoni. Картина Кирилла Орсика. Декоративная керамика, Liza Pulko.

Декоративная штукатурка, Lanos. Кровать изготовлена на заказ, Nocciola. Приставной стол, Richmond interiors. Картина, Denis Blueman. Постельное белье, Homely.
«Тепло в интерьер привносят шпонированные панели, которые „проходят“ через всю квартиру. В прихожей в панели интегрированы двери-невидимки, ведущие в санузлы, а также встроенные шкафы с распашными фасадами. Этот прием помог нам сохранить визуальную чистоту и целостность пространства».

Стеновые панели и межкомнатные двери, «Волховец».

Мебель сделана на заказ, Nocciola. Стол, «Мегафорт». Входная дверь, Asmodas.
«Между гостиной и спальней мы установили стеклянную перегородку. Вертикальный ритм ее перемычек повторяется и в шпонированных панелях, что добавляет интерьеру динамики и подчеркивает высоту потолков. При необходимости изолировать зону спальни можно при помощи плотных штор».

Мебель сделана на заказ, Nocciola. Умывальник, Bocchi. Смеситель, Paffoni. Плитка, Ceramiche Coem.
«Главным пожеланием хозяев было иметь два раздельных санузла. Несмотря на компактную площадь квартиры, нам удалось реализовать задумку и предусмотреть весь необходимый функционал. Теплая цветовая гамма объединяет санузлы с общей концепцией проекта, а фактуры натурального камня в отделке придают уюта».
Авторы проекта: дизайнер Анна Цыбульская, флорист Анна Макуца, студия ILEDA, http://ileda.by

Умывальник и унитаз, Bocchi. Смеситель, Paffoni. Плитка, Ceramiche Coem.

Квартира 50 кв. м в Минске. Проект Анны Цыбульской, студия ILEDA.