Пятница, 23 января, 2026

Маленькая парижская квартира 24 м² для сдачи в аренду

Это интересно

Яркие детали и артистизм помогли Batiik Studio превратить простую студию в дизайнерский люкс для сдачи в аренду

Табурет и стол со столешницей из террацо сделаны на заказ по эскизам дизайнеров Batiik Studio, как и остальная мебель в студии. Ваза, Debeaulieu Paris. Ткани для скамьи, Nobilis и Élitis. Краски, Argile.

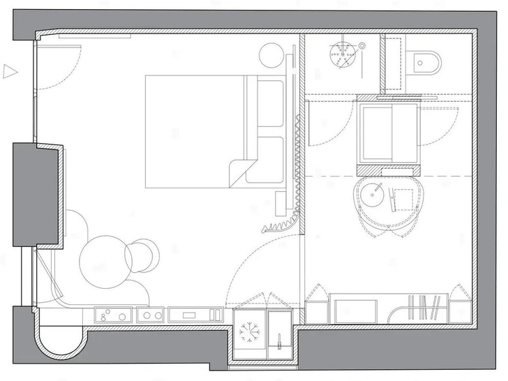
Владельцы этой небольшой квартиры в Париже решили превратить ее в дизайнерский люкс для сдачи в аренду: предложить все, что может предоставить отель, и бонусом сделать интерьеры не такими стандартными, как в гостиницах. Дизайнеров Batiik Studio попросили помочь в реализации этой идеи и разместить на 24 кв. м не только место для сна (не менее 160 см в ширину), но также мини-кухню с зоной для завтраков, санузел, сауну и гардеробную. Ребекка Бенишу (Rebecca Benichou) и Флоранс Жалле (Florence Jallet) приняли вызов и придумали для квартиры новую планировку.

Маленькая парижская квартира 24 м² для сдачи в аренду

Скамья обтянутая в два цвета: розовый и бордово-красный. Эти же оттенки можно найти по всей студии — в шторах, в нишах, в гардеробной и даже в душе.

Еще одной просьбой владельцев, которую не так просто реализовать в маленьких квартирах, было место для экспозиции необычных вещиц — дизайнеры и заказчики в шутку назвали его «кунсткамерой». Квартира расположена по соседству с парижским кабинетом курьезов Дейроля, так что эта идея не лишена основания: студия стала своего рода оммажем известному «соседу». Чтобы воплотить замысел Ребекка и Флоранс установили вдоль стены деревянную панель, в нишах которой расставили керамику ручной работы, морские звезды, кораллы и ракушки, ракушки

Маленькая парижская квартира 24 м² для сдачи в аренду

На мини-кухне поместилась мойка, варочная панель, микроволновка и кофемашина: вся техника спрятана за дверцами, как в шкатулке. Кухонную часть можно совсем скрыть за большой дверью, разделяющей основное пространство и гардеробную с санузлом. В гардеробной вместо традиционного шкафа сделали розовый короб-раму со штангой для вешалок и подвесным туалетным столиком, повторяющим цвета изголовья кровати: матовую латунь и красно-розовый.

Маленькая парижская квартира 24 м² для сдачи в аренду

Маленькая парижская квартира 24 м² для сдачи в аренду

Маленькая парижская квартира 24 м² для сдачи в аренду

«Мы много работали с цветом в этом проекте и добавили к теплому дереву, красному и латуни несколько оттенков синего в спальне и на потолке», рассказывают дизайнеры. Потолок декорировали с помощью окрашенных деревянных карнизов, придав ему динамичности.

Маленькая парижская квартира 24 м² для сдачи в аренду

Над раковиной вместо навесного шкафчика сделали нишу, обрамленную волнистой рамой.

Здесь нет стандартных, готовых предметов, почти все дизайнеры спроектировали сами и изготовили на заказ — от трехуровневых цоколей до ниш с необычными рамами. Это внимание к деталям внесло в интерьеры немного эксцентричности, что и было нужно владельцам. По их словам, теперь от желающих остановиться в этой студии нет отбоя!

Маленькая парижская квартира 24 м² для сдачи в аренду

Маленькая парижская квартира 24 м² для сдачи в аренду

План студии 24 кв. м в Париже. Проект Batik Studio.

Новое на сайте

Доходные дома Москвы: история и современность

От исторических памятников к современным жилым комплексам: как изменились столичные арендные дома с момента их появления ...

Похожие статьи

Если вы хотите получать уведомления на свой E-mail о появлении новых статей, то рекомендуем вам чуть ниже ввести свой электронный почтовый адрес.