Эстетика ваби-саби помогла Анне Айрапетян и Яне Кондратьевой (дизайн-студия AD-Home) превратить двухкомнатную квартиру в экзотический оазис
Гостиная. Подвесные светильники, To4rooms. Диван, Gliver. На консоли — вазы, Moon Stores и Forest is calling. Ковер, Artefact. Журнальный стол выполнен на заказ по эскизам авторов проекта столярной мастерской Villeewood. Паркетная доска, Barlinek.
ПАРАТМЕТРЫ ОБЪЕКТА
-
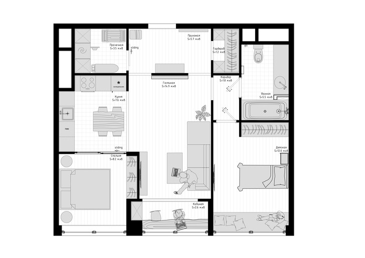
Тип недвижимости: квартира в новостройке
-
Где находится: г. Москва
-
Метраж: 63 м²
-
Стиль: современный с элементами балийской стилистики
-
Основная идея проекта: создать атмосферу, которая напоминала бы счастливые моменты путешествий, уединения и отдыха.
-
Цветовая гамма: дерево и бежевый монохром
-
Авторы проекта: руководители дизайн-студии AD-Home Анна Айрапетян и Яна Кондратьева, @adhomestudio, www.ad-home.ru

Декоративные подушки, Zara Home. Торшер Нимоне, ИКЕА. На стене — картина, написанная специально для проекта художником Анастасией Дурбажевой. Радиатор, Arbonia.

руководители дизайн-студии AD-Home Анна Айрапетян и Яна Кондратьева
«Изначально квартира, которую приобрели заказчики, была двухкомнатной. Но устав от жизни в однушке, они мечтали получить квартиру, где будет общая зона, чтобы собираться всем вместе, а также личные комнаты — спальня для супругов и детская для их дочери. Мы полностью перепланировали квартиру, поменяв местами комнаты. Появилась открытая кухня-гостиная, детская для девочки и небольшая спальня родителей, просторная ванная комната, гардеробная комната и кладовая-прачечная», — рассказывают дизайнеры Анна Айрапетян и Яна Кондратьева.

Кресло, Teak House. Конник — работа Павла Мадянова.
«Чтобы не лишать кухню света, а спальню сделать просторнее, мы предусмотрели раздвижную перегородку из каленого стекла. Она открывается с двух сторон и не мешает проходу, а при необходимости ее можно зарыть льняными шторами. Детская получилась довольно просторной. Здесь нашлось место для большой системы хранения — пятилетняя девочка много путешествует с родителями, собирает книги из разных стран и очень любит наряжаться. В дополнение к гардеробной комнате, расположенной в при входе в квартиру, в спальне родителей спланировали вместительный встроенный шкаф. В каждом проекте, даже на небольшой площади, мы стараемся предусмотреть прачечную. Идеально, когда стиральная машина, сушка для белья и хозяйственный инвентарь находятся в отдельном помещении. Для экономии пространства в прачечной установлена раздвижная дверь. А чтобы визуально увеличить коридор и гостиную, мы отказались от дверей, отделив гостиную перегородкой по центру прохода».

Кухня. Стулья TetChair, Torres. Плитка Nassau Kerala Negro, Vives Ceramica. Кухонная столешница и фартук, Alvic. Люстра, Nomad chic. Обеденный стол выполнен на заказ по эскизам авторов проекта столярной мастерской Villeewood.
«Хозяева — молодая творческая семья, увлечённая своей работой. Он — телевизионный продюсер. Она — фотограф. С самого рождения дочери они много путешествуют и очень любят экзотические теплые страны. Заказчики не вмешивались в рабочий процесс, зато мы много разговаривали об их желаниях. Главным — было возвращаться в квартиру, где Москва ощущается только за окном, жить в атмосфере, которая будет напоминать о дальних странах и приятных поездках».

Вид на спальню. Шкаф выполнен на заказ по эскизам авторов проекта.
«Выбранная экологическая тематика интерьера является точным отражением внутреннего мира хозяев. Естественные цвета, натуральные материалы, небеленые ткани, обилие дерева и неровные поверхности грубо оштукатуренных стен — для нас это был первый опыт работы в эстетике ваби-саби. Потолочные балки, напоминающие об интерьерах юго-восточной Азии покрыты декоративной штукатуркой, стыки закрыты джутовым шнуром. С трудом, но все же нам удалось найти мастерскую, которая смогла сделать шкафы с филенками из ротанга».

Спальня. Текстиль, Zara Home. Джутовый ковер, H&M Home. Подвесной светильник, Artefact. Паркетная доска, Barlinek.
«Ненормированный график работы хозяев потребовал оборудования рабочего места. Мы не стали его прятать, а решили сделать максимально комфортным и красивым. Место для него выбрали вдоль панорамного окна в гостиной, поэтому вместо обычных столов мы установили столешницу с необработанными краями из живописного спила капового тополя. Подбор света и аксессуаров стал не менее интересной задачей — даже пандемия не помешала в поисках аутентичных предметов. Мы искали светильники среди антиквариата и в мастерских джутовых изделий, но нашли потрясающих ребят, которые обожают Марокко и возят штучные предметы декора оттуда. У них мы заказали две люстры из стеблей растения халфа, растущего на равнинах западного Марокко. В соцсетях мы нашли девушку, проживающую на Бали, связались с ней, нашли небольшой, пыльный склад с элементами декора, который не открывали год. Дистанционно договорились, передали ключ через знакомых и привезли много интересных вещиц».

Детская комната. Текстиль кровать и подиум, Zara Home, H&M Home.

Кровать выполнена на заказ из ивовых стеблей.
«Нам хотелось, чтобы детская стала логичным продолжением квартиры. Идея оформить эту комнату в духе тропических джунглей или сафари очень понравилась заказчикам, но не их дочери. Хотя ей всего пять лет, но она уже четко формулирует свои пожелания. Главным требованием стал розовый цвет, который никак не соотносился с первоначальной идеей проекта. Пришлось нарушить традиционный взгляд на привычные вещи и создать комнату, в которой чувствовалось бы настроение жарких стран. А розовый цвет добавленный в штукатурку, выгладит очень органично. Стена с изголовьем кровати оформлена декоративной штукатуркой с эффектом песчаника. Здесь же маленький сюрприз для юной обладательницы комнаты — ее имя написано с помощью трафарета на стене. Кровать сплетена вручную из ивовых прутьев, а изголовье напоминает павлиний хвост. В качестве декора в комнате появились плетеные вручную гирлянды из макраме и ловец снов, пуф — слон и многочисленные игрушки-представители экзотической фауны».

Прихожая. Декоративная панель Egipcia, Moon Stores. Картина «Будда» Екатерины Ворониной. Пуф, Artefact. Ковер, Zara Home. Двери в гардероб выполнен на заказ по эскизам авторов проекта. Декоративные потолочные балки, Decomaster Decosa. Выключатели и розетки, Bironi.
«Своеобразным талисманом проекта стал игрушечный черный конь, который теперь стоит в гостиной среди книг. В буддийской культуре это символ защиты, но нашли мы его у народного мастера Павла Мадянова. Ведь и в славянской культуре конь — один из оберегов. А „вороная масть“ помогла ему прижиться в экзотической обстановке».

Ванная комната. Раковина, Teak House. Зеркало, Kare Design. На стенах — плитка Art Organic, Mainzu Craft.

На полу — плитка Steam Work Nut, Ascot Ceramiche. Тумба выполнена на заказ по эскизам авторов проекта.

Квартира в Москве. Проект Анны Айрапетян и Яны Кондратьевой.