Показываем варианты планировок разных типов однушки для семьи, где есть дети, рассказываем про особенности оформления и вдохновляемся классными дизайнерскими проектами.
Как и студия, однушка считается оптимальным жильем для 1-2 человек. На кухне можно обустроить уголок для отдыха, а единственную комнату отдать под место для сна. Или, наоборот, совместить там функции гостиной и спальни. Но что делать, если в семье живут не только взрослые? В этой статье расскажем, как оформить однокомнатную квартиру для семьи с ребенком, покажем варианты планировок и примеры проектов. Берите идеи на заметку!
Все о дизайне однокомнатной квартиры для семьи с ребенком
От чего зависит планировка
— Состав семьи
— Возраст ребенка
— Тип жилья
Примеры проектов
— Для мамы и сына
— Для мамы, папы и ребенка
— Для родителей и двоих детей
— Для родителей и пятерых детей
Особенности планировки однокомнатной квартиры для семьи
На то, как будут распределены зоны в небольшом пространстве однушки, где живут несколько человек, влияет несколько факторов.

Состав семьи
Семья — это не только «мама-папа-я». Родитель может воспитывать ребенка один. С некоторыми живут (постоянно или периодически) бабушка или, например, сестра. В конце концов детей может быть больше, чем один, и в этом случае найти место в компактной двушке для всех тоже реально!
Состав семьи и количество постоянных жильцов определяет планировочные решения и зонирования. Например, для семейной пары не нужны два отдельных пространства, они могут спать вместе. А бабушке и маме нужны будут собственные спальные места. Для двоих или троих детей нужно будет продумать функциональную спальную зону: поставить двухъярусную кровать, возможно, сделать антресольный этаж, если позволяет высота потолков. Чем больше в квартире людей, тем большее количество полезной площади нужно задействовать. Например, оформить рабочее место или игровую на утепленной лоджии.
19 фото

Дизайн: Ольга Подольская, silverhome.design

Дизайн: Ольга Подольская, silverhome.design

Дизайн: Ольга Подольская, silverhome.design

Дизайн: Анастасия Бегишева. Фото: Евгения Васильева

Дизайн: Анастасия Бегишева. Фото: Евгения Васильева

Дизайн: Анастасия Бегишева. Фото: Евгения Васильева

Дизайн: студия Geometrium. Фото: Наталья Вершинина. Декоратор: Анастасия Буханцова

Дизайн: студия Geometrium. Фото: Наталья Вершинина. Декоратор: Анастасия Буханцова

Дизайн: Виктория Вишневская. Фото: Женя Муравьева. Стиль: Екатерина Шаповалова

Дизайн: Виктория Вишневская. Фото: Женя Муравьева. Стиль: Екатерина Шаповалова

Дизайн: Виктория Вишневская. Фото: Женя Муравьева. Стиль: Екатерина Шаповалова

Дизайн: студия магазина Hoff, hoff.ru

Дизайн: студия магазина Hoff, hoff.ru

Дизайн: студия магазина Hoff, hoff.ru

Дизайн: студия магазина Hoff, hoff.ru

Дизайн: Ася Гриб. Фото: Данила Леонов

Дизайн: Ася Гриб. Фото: Данила Леонов

Дизайн: Андрей и Дарья Жлобич. Фото: interphoto.by

Дизайн: Андрей и Дарья Жлобич. Фото: interphoto.by
Возраст ребенка
В разном возрасте у детей будут разные потребности. От этого напрямую зависит то, сколько места и для чего нужно будет выделить в детской зоне.
- Груднички — если у вас новорожденный малыш, ему не нужно отдельное помещение. Даже удобнее ночью пройти пару метров до кроватки в спальне, чем идти в другую комнату. Детскую мебель в этом случае просто ставят там же, где спят родители.
- От 3 до 6 лет — в этом возрасте детям нужна своя кровать, место для игр и занятий творчеством/развивающими активностями. Желательно, чтобы у мальчика или девочки также была собственная система хранения: так ребенок будет понимать, что у него есть свои вещи, а также будет учиться поддерживать в своих «владениях» порядок. Можно выделить под детскую зону часть жилой комнаты, отделив ее шторой либо стеллажом или просто разграничив с родительской частью визуально.
- От 7 лет — подросткам обязательно нужно уединение и свое изолированное пространство. Объективно однушка для семьи с взрослеющим ребенком уже не подходит. Но если поменять жилплощадь возможности нет, нужно обеспечить сыну или дочке приватность. Для этот как минимум понадобится перегородка, желательно — с дверьми (например, стеклянными) и/или плотной шторой. По возможности сделайте полностью обособленную комнату, пусть даже она будет очень компактной.
14 фото

Дизайн: Виктория Вишневская. Фото: Женя Муравьева. Стиль: Екатерина Шаповалова

Дизайн: Виктория Вишневская. Фото: Женя Муравьева. Стиль: Екатерина Шаповалова

Дизайн: Виктория Вишневская. Фото: Женя Муравьева. Стиль: Екатерина Шаповалова

Соцсети блогера m.alinahome

Соцсети блогера m.alinahome

Дизайн: студия магазина Hoff, hoff.ru

Дизайн: студия магазина Hoff, hoff.ru

Дизайн: Анастасия Бегишева. Фото: Евгения Васильева

Дизайн: Андрей и Дарья Жлобич. Фото: interphoto.by

Дизайн: Андрей и Дарья Жлобич. Фото: interphoto.by

Дизайн: Андрей и Дарья Жлобич. Фото: interphoto.by

Дизайн: студия Geometrium. Фото: Наталья Вершинина. Декоратор: Анастасия Буханцова

Дизайн: студия Geometrium. Фото: Наталья Вершинина. Декоратор: Анастасия Буханцова

Дизайн: студия Geometrium. Фото: Наталья Вершинина. Декоратор: Анастасия Буханцова
Тип жилья
Еще один важный момент — тип жилья и, соответственно, планировочного решения.
Стандартная планировка
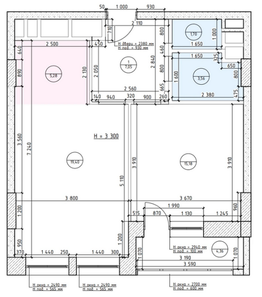
Она предполагает изолированную кухню и одну жилую комнату, самую большую по площади. Такие планировки характерны и для старого фонда, и для квартир в новостройках. Чаще всего жертвуют полноценной гостиной, оформляя небольшую зону отдыха на кухне. А единственную комнату превращают в спальню и детскую. Иногда туда же добавляется рабочее место. Хорошо, если есть балкон: его можно утеплить и перенести мини-кабинет туда либо организовать там систему хранения.

Проект студии магазина Hoff, hoff.ru С расстановкой мебели

Проект студии магазина Hoff, hoff.ru С расстановкой мебели и размерами
Евродвушка
Так называют современные планировки, где жилая комната занимает немного места, а до половины всей площади отводится объединенной кухне-гостиной. Так получается технически квартира с одним жилым помещением, но при этом есть место для полноценной зоны отдыха. Вы можете оставить задуманный функционал: оформить в едином пространстве кухню-гостиную, а спальные места родителей и ребенка сделать в маленькой комнате. Либо переиграть распределение зон в соответствии с потребностями семьи: на площади от 45 кв. м можно выделить до трех мини-комнат, как, например, в этом проекте (часть кухни-гостиной отделили перегородкой, оформив у окна детскую).

Проект студии Geometrium До

Проект студии Geometrium После
Студия
В такой квартире нет изолированных комнат: кухня, гостиная, спальное место находятся в одном пространстве. Площадь 15-25 квадратных метров для троих жильцов — очень мало, но есть и более просторные варианты, по метражу сравнимые с типовыми однушками. В этом случае чаще всего одно или два спальных места зонируют перегородками, получая подобие отдельное комнаты. Кто-то может спать на удобном раскладывающемся диване в зоне кухни-гостиной.

Проект Анастасии Бегишевой До

Проект Анастасии Бегишевой После
Свободная планировка
От студийной она отличается тем, что перегородок нет, только обозначены их рекомендуемое расположение и мокрые зоны. В этом случае вы можете распланировать пространство так, как будет удобно: например, сделать не одну, а две изолированные или условно изолированные комнаты, чтобы обеспечить родителям и ребенку собственные приватные зоны. Возможности зависят от формы и общей площади жилья.

Проект Виктории Вишневской До

Проект Виктории Вишневской После
Примеры проектов
Рассмотрим, как дизайнеры работают с пространством для семьи в однокомнатной квартире.
Для мамы и сына-школьника
Этот проект — отличный пример грамотной работы с пространством в условиях ограниченной площади.

Однушку 33 кв. м дизайнер оформила для мамы и сына, но такое планировочное решение будет актуально и для семейной пары с ребенком. По изначальному плану эта была стандартная квартира с кухней и прямоугольной комнатой. Но сын уже школьного возраста, поэтому ему требовался свой изолированный уголок. Для этого снесли ненесущие стены, убрали кладовку и разделили одно жилое помещение на два отдельных. В итоге технически получилась двухкомнатная квартира, только в меньших масштабах.
Сыну отдали часть с окном, поскольку ему нужно учиться. Мамина спальня без окна, но там сделали вентиляцию и вместо одной из стен установили стеклянную перегородку с дверью, чтобы в комнатку попадал свет из окна на кухне. Рядом с зоной готовкой поставили компактную обеденную группу, а также выделили место под уголок для отдыха с диваном, креслом и маленьким столиком кофе или чая. Таким образом компенсировали отсутствие гостиной. В прихожей организовали несколько систем хранения, а также дизайнер спроектировала неглубокую нишу, куда прячется встроенная гладильная доска. В закрытом виде она прячется за рулонной шторой в тон отделке.
13 фото

Дизайн: Екатерина Бубнова. Фото: Наталья Мавренкова

Дизайн: Екатерина Бубнова. Фото: Наталья Мавренкова

Дизайн: Екатерина Бубнова. Фото: Наталья Мавренкова

Дизайн: Екатерина Бубнова. Фото: Наталья Мавренкова

Дизайн: Екатерина Бубнова. Фото: Наталья Мавренкова

Дизайн: Екатерина Бубнова. Фото: Наталья Мавренкова

Дизайн: Екатерина Бубнова. Фото: Наталья Мавренкова

Дизайн: Екатерина Бубнова. Фото: Наталья Мавренкова

Дизайн: Екатерина Бубнова. Фото: Наталья Мавренкова

Дизайн: Екатерина Бубнова. Фото: Наталья Мавренкова

Дизайн: Екатерина Бубнова. Фото: Наталья Мавренкова

Дизайн: Екатерина Бубнова. Фото: Наталья Мавренкова

Дизайн: Екатерина Бубнова. Фото: Наталья Мавренкова
Для мамы, папы и ребенка
Площадь этой однушки — 44 квадрата. У заказчиков, молодой пары, полуторогодовалый ребенок.

Менять жилье они планируют через несколько лет, когда сын подрастет, пока же семье достаточно одной жилой комнаты. Благодаря вытянутой форме ее было удобно разделить на два блока: при входе компактная родительская спальня, а у окна за стеклянной перегородкой уютная детская зона. Сын еще совсем маленький, и ему не нужен стол для учебы или хобби. Поэтому вдоль окна поставили кроватку с полочками и комод. Осталось и немного места для игр в зоне видимости взрослых.
Кухню сделали угловой, а вместо классического обеденного стола поставили остров — нестандартное решение для малогабаритного жилья. Он достаточно широкий, чтобы за ним было удобно и есть, и готовить. А на балконе при кухне оформлено уединенное рабочее место. В прихожей сделали вместительные закрытые системы хранения. В ванной также много ящиков и полочек для всех необходимых мелочей, косметики, хозяйственных запасов.
9 фото

Дизайн: студия Mossebo, mossebo.studio

Дизайн: студия Mossebo, mossebo.studio

Дизайн: студия Mossebo, mossebo.studio

Дизайн: студия Mossebo, mossebo.studio

Дизайн: студия Mossebo, mossebo.studio

Дизайн: студия Mossebo, mossebo.studio

Дизайн: студия Mossebo, mossebo.studio

Дизайн: студия Mossebo, mossebo.studio

Дизайн: студия Mossebo, mossebo.studio
Для родителей и двоих детей
Когда в семье больше одного ребенка, очень выручает второй ярус: дети любят находиться в уединении (поэтому так популярны кровати-чердаки), а из-за невысокого роста им будет комфортно при высоте потолков от 3 метров.

Именно такой прием использовали в этой небольшой курортной квартире для семейной пары и их двух дочерей. Изначальная планировка была свободной, пространство распределили по принципу евродвушки: большая общая зона и более маленькая приватная часть. Но чтобы не создавать ощущение крошечных тесных комнат, часть глухих перегородок заменили прозрачным стеклом. Так в каждом уголке хватает естественного света, и в целом интерьер кажется легче и просторнее. Квартира предназначена для временного проживания, поэтому здесь не так много систем хранения. Но при желании в подобном проекте их можно увеличить, например, добавив шкаф в гостиную или ящики под кровати.
Гарнитур сделали угловым, причем мойку установили у окна — это было одни из пожеланий заказчиков. Зону готовки дополняет столовая группа из барной стойки и высоких стульев, а также яркий диван со столиком. Приватная же часть собрана, как конструктор: слева — родительская кровать, вокруг нее, подобно кубикам, спроектирована симметричная система хранения. Над спальней — антресоль с кроватками и полками для хранения мелочей, книг и игрушек.
10 фото

Дизайн: Елизавета Ткачева. Фото: Михаил Чекалов

Дизайн: Елизавета Ткачева. Фото: Михаил Чекалов

Дизайн: Елизавета Ткачева. Фото: Михаил Чекалов

Дизайн: Елизавета Ткачева. Фото: Михаил Чекалов

Дизайн: Елизавета Ткачева. Фото: Михаил Чекалов

Дизайн: Елизавета Ткачева. Фото: Михаил Чекалов

Дизайн: Елизавета Ткачева. Фото: Михаил Чекалов

Дизайн: Елизавета Ткачева. Фото: Михаил Чекалов

Дизайн: Елизавета Ткачева. Фото: Михаил Чекалов

Дизайн: Елизавета Ткачева. Фото: Михаил Чекалов
Для родителей и пятерых детей
Разместить семь человек на 46 квадратах? Звучит нереально, но в этом проекте дизайнеру удалось решить столь амбициозную задачу.

Застройщик сдавал жилье без перегородок, были обозначены только мокрые зоны. Пространство распределили так: зону готовки и столовую группу обособили (но оставили пустой проем, чтобы зрительно не перегружать интерьер), а оставшееся места отвели под спальные места для родителей и четверых детей. Пятому обустроили уютный «чердак» над прихожей — сделать это позволили достаточно высокие потолки.
Общая же комната разделена стеклянной раздвижной перегородкой на детскую и взрослую часть. Для родителей сделали диван-кровать-шкаф — удобный трансформер, который позволяет днем превращать комнату в полноценную гостиную, а вечером — в спальню. Над изголовьем — закрытая система хранения, которая воспринимается как продолжение отделки. Для детей же установили смежные двухъярусные кровати с ящиками, разделив их по цветам. Места для хранения предусмотрены и в других комнатах: на кухне это угловой гарнитур под потолок, в ванной — тумба под раковину и два хозяйственных шкафчика.
8 фото

Дизайн: Елизавета Ткачева. Фото: Михаил Чекалов. Стиль: Екатерина Наумова

Дизайн: Елизавета Ткачева. Фото: Михаил Чекалов. Стиль: Екатерина Наумова

Дизайн: Елизавета Ткачева. Фото: Михаил Чекалов. Стиль: Екатерина Наумова

Дизайн: Елизавета Ткачева. Фото: Михаил Чекалов. Стиль: Екатерина Наумова

Дизайн: Елизавета Ткачева. Фото: Михаил Чекалов. Стиль: Екатерина Наумова

Дизайн: Елизавета Ткачева. Фото: Михаил Чекалов. Стиль: Екатерина Наумова

Дизайн: Елизавета Ткачева. Фото: Михаил Чекалов. Стиль: Екатерина Наумова

Дизайн: Елизавета Ткачева. Фото: Михаил Чекалов. Стиль: Екатерина Наумова

Анастасия Степанова Маленькие квартиры