Минималистичный интерьер на деле содержит немало интересных решений.
Заказчик и задачи
Эта квартира принадлежит девушке. Свое жилье она видела функциональным и визуально спокойным. Хозяйка увлекается свечеварением, делает диффузоры и монетизирует свое хобби, поэтому хотела, чтобы квартира иногда выступала и чем-то вроде фотостудии, чтобы изделия можно было красиво сфотографировать для последующей продажи. За оформлением интерьера она обратилась в студию SloyArch.

Планировка
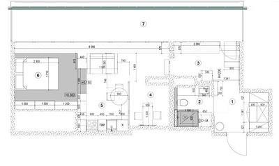
У квартиры необычная вытянутая форма. Она небольшой площади, но при этом здесь предусмотрена 22-метровая терраса, куда можно выйти из прихожей. Поэтому окно расположено по всей длине квартиры, 8 метров.
По конфигурации это студия, прихожая и ванная комната обособлены. Мокрую зону кухни уменьшили, задействовав часть под рабочий кабинет. Для зонирования выбрали стеклянную перегородку, планируя, что в дальнейшем кабинет может трансформироваться в гардеробную. Спальня расположилась в дальнем конце, своеобразном алькове, но она ничем не отделена от общего пространства.

Отделка
Целью дизайнера было создать спокойный интерьер в ненавязчивых оттенках, базовый. И, как правило, в такой стилистике акцент делают на фактуры. Этот интерьер — не исключение. Для отделки стен выбрали фактурную декоративную штукатурку под бетон, сделали подиум под окнами, куда встроили батареи (для выхода теплого воздуха предусмотрели перфорацию). Подиум оформлен деревянными панелями и продолжается в зоне спальни.

Эти же панели «заходят» на стену в спальне и коридоре. Фактура крупной корпусной мебели — кухни, в частности — продолжает идею. Фасады также выполнены под бетон.

«Мы выбрали монохромную гамму черного и серого в холодных оттенках. Однако санузел было необходимо сделать, наоборот, в теплых тонах», — уточняет Лилия. Действительно, ванная комната отличается по настроению. Она выполнена в стиле спа — расслабляющего, уютного и камерного. Стены и пол оформлены керамогранитом с фактурой светлого камня, на фоне которого светлое дерево в мебели выглядит более теплым.

Мебель и системы хранения
Как и было сказано выше, зону кабинета в общем пространстве студии предполагается переделать позднее в гардеробную. Но даже сейчас, когда этого еще не произошло, у хозяйки достаточно мест для хранения. Это шкаф в прихожей, достаточно глубокий для хранения одежды, хозяйственного инвентаря; шкаф в спальне, комод там же.

Подиум, на котором стоит кровать, также вмещает в себе места для хранения. В короб, который закрывает пространство под окнами, встроены выдвижные ящики, чтобы не терять полезные сантиметры.

Кухню сделали угловой. Верхние шкафы по одной стене спроектировали с антресолями, чтобы увеличить объем хранения.
В зоне гостиной предусмотрели маленький диванчик. Кстати, телевизор, размещенный в зоне спальни, можно посмотреть и сидя на диване. Он размещен на поворотном кронштейне.
Мягкое кресло-диван стоит и на террасе, которую хозяйка использует в теплое время года. Туда же ставит велодорожку.

В ванной комнате предусмотрено хранение в длинной подвесной тумбе под раковину. Над инсталляцией унитаза также есть шкафчик.
Освещение
Светильники выбраны в минималистичном стиле. Общий свет — встроенные точечные светильники. В зоне спальни размещена потолочная люстра. В зоне гостиной — трековый светильник с поворотными спотами. В качестве дополнительных сценариев света выбраны настенные бра, ими подсвечены проходные зоны, прихожая. Над обеденной зоной разместился подвес.

Лилия Кайсарова Студия Sloyarch, автор проекта
Квартира находится на последнем этаже высотного здания, здесь собственная терраса и уникальное окно, проходящее вдоль всего помещения. Вдохновение черпали из мировой практики реализации пентхаусов, но с осознанием физических границ проекта. Мы постарались максимально сохранить свободное пространство и исключить зонирование с использованием стен и штор для получения просторной и светлой квартиры, напитанной солнцем; оформить интерьер аскетично, практично, но соблюдая текущие тренды.
14 фото

Прихожая

Прихожая

Прихожая

Прихожая

Прихожая

Гостиная

Спальня

Спальня

Спальня

Спальня

Кухня

Кухня

Санузел

Санузел Редакция предупреждает, что в соответствии с Жилищным кодексом РФ требуется согласование проводимых переустройств и перепланировок.

Смотреть перепланировку

Анастасия Дубровина

Вера Деблик

Анна Шенбергер Маленькие квартиры Минимализм Светлые цвета