Типовые хрущевки «славятся» тесными комнатами, низкими потолками и маленькими кухнями. В этой квартире были те же исходные данные, но дизайнеру Полине Андреевой удалось создать новое пространство без перепланировки. И здесь хочется жить.
Заказчики и задачи
Владелица этой квартиры в Санкт-Петербурге — девушка, она занимается созданием мебели на заказ и сотрудничала с дизайнером Полиной Андреевой ранее, комплектовала ее проекты. Когда хозяйка получила эту квартиру в наследство от отца, то обратилась к Полине с просьбой о помощи в обустройстве.

«Моей задачей было в ограниченном бюджете наполнить квартиру уютом с легким намеком «старины», вписать уже существующие двери, паркет, плитку. Немаловажным пожеланием было оставить существующий потолок и отказаться от верхнего точечного света, натяжных потолков», — рассказывает автор проекта.
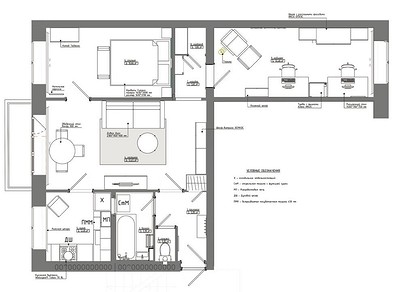
Планировка
Согласно существующему плану, который дизайнер не меняла, в квартире было три комнаты, две из них — смежные: гостиная и спальня. Выход из кухни организован в гостиную, таким образом между этими тремя помещениями образована анфилада.

Ванная комната и санузел — со входом из прихожей. В третью комнату (кабинет) можно попасть через небольшой коридорчик. В коридоре же организован маленький гардероб.
Отделка
Так как хозяйка попросила не менять некоторые предметы отделки — паркет, плитку на полу и двери — выбирали новые материалы для стен и потолка. Их решили покрасить.

В ванной комнате заменили настенную плитку, а напольную покрасили, чтобы вписать в новое пространство. Окрашивание плитки, даже в мокрых зонах, сегодня распространенная практика, это решение позволяет быстро и достаточно бюджетно обновить ремонт.
Для гостиной выбрали светлую краску. Коридоры и спальню сделали темнее, этот прием намеренный. По словам автора проекта, так гостиная кажется больше, на контрасте с другими зонами.

В спальне для стен использовали обои приятного бирюзового оттенка, а потолок покрасили в тот же цвет на несколько тонов светлее.

В кабинете применили прием колор-блока. Помещение разделено на две зоны: рабочую и чтения. Последняя выделена темным синим цветом краски на стенах и потолке, а рабочая оформлена в светлых оттенках.
Мебель и системы хранения
«В квартире достаточно много мебели ИКЕА, мы успели заказать ее до закрытия, получили уже когда магазины не работали, часть шкафов не довезли, и их пришлось делать на заказ», — комментирует дизайнер.

Так, в гостиной для хранения — два книжных шкафа и тумба под телевизор от ИКЕА. В кабинете предусмотрены платяной шкаф и книжный. В спальне отказались от шкафов, ограничившись комодом. Есть гардеробная, в которой также хранятся вещи.

Кухонный гарнитур сделали угловым. Верхние шкафы — только по одной стене, чтобы не загромождать пространство. Вторую выложили плиткой и сделали акцент на каминной вытяжке.
Освещение
Хозяйка не хотела использовать яркий точечный свет, поэтому в интерьере освещение решено с помощью потолочных светильников, подвесов и бра. Это создает камерную и уютную обстановку.


Дизайнер Полина Андреева, автор проекта:
Перед началом работы над проектом я стараюсь подробно изучить привычки и хобби заказчиков, чтоб создать интерьер, в котором им комфортно будет жить. Было огромное желание сделать домашний, камерный интерьер, в котором видна «душа» заказчицы с ее любовью к зеленым комнатным растениям, которые мы рассадили в плетеные кашпо; натуральным материалам, поэтому здесь так много льна, ротанга; приглушенному свету, который дает необычные рисунки на поверхности стен и потолка; книгам, искусству и вышивке. Здесь мы работали с хозяйкой квартиры в тандеме. Оформляли ее вышивки в красивые рамы, закупали весь декор, расставляли красиво ее книги в многочисленные шкафы. Мелкие несовершенства здесь подчеркивают, что в квартире живут и у нее есть своя интересная история.
23 фото

Кухня

Кухня

Вид на кухню из гостиной

Вид на кухню из гостиной

Гостиная

Гостиная

Гостиная

Гостиная

Вид на спальню из гостиной

Вид на спальню из гостиной

Вид на спальню из гостиной

Спальня

Спальня

Спальня

Спальня

Спальня

Спальня

Спальня

Кабинет

Кабинет

Кабинет

Кабинет

Ванная комната
Как квартира выглядела до ремонта

Кухня

Кабинет

Спальня

Спальня

Ванная Редакция предупреждает, что в соответствии с Жилищным кодексом РФ требуется согласование проводимых переустройств и перепланировок.

Смотреть перепланировку

Анастасия Дубровина

Кристина Плеер

Дарья Кузнецова Хрущевки Маленькие квартиры Современный стиль