Благодаря необычной планировке и грамотному зонированию дизайнеру удалось сделать на маленькой площади спальню, гардеробную, кухню с зоной отдыха.
Заказчики и задачи
Квартиру приобрела семейная пара в инвестиционных целях — сдача в аренду. Семья обратилась к дизайнеру Евгении Акимовой с запросом на функциональный и актуальный ремонт, который привлек бы внимание будущего арендатора.

Перепланировка
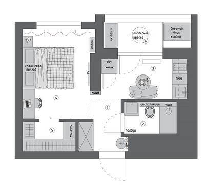
У квартиры интересная изначальная планировка. От застройщика здесь была комната, объединенная с прихожей, маленькая кухня 6 квадратных метров, санузел. При этом комнату от кухни отделяла толстая несущая перегородка, которую убирать, конечно же, было нельзя. Но дизайнер превратила минусы в плюсы. Перегородку с дверным проемом, отделяющую кухню, убрали, но несущая стена сохранила ощущение изолированности зон. Именно поэтому студия «притворяется однушкой», как это описывает Евгения. Несущую конструкцию замаскировали с помощью покраски и ниш.

На площади комнаты выделили отдельную гардеробную. Санузел незначительно увеличили за счет прилегающей прихожей. Если считать с лоджией, площадь квартиры 29 кв. м. Без нее — 25.
Отделка
Квартира для аренды. Поэтому нужна была стойкая и ремонтопригодная отделка. При этом выразительная. Для стен выбрали краску. «С одной стороны, этого требовало то декоративное решение, которое я предложила здесь использовать (яркая акцентная прихожая, выкрашенные арки в том же цвете в зоне отдыха на кухне и в ТВ-зоне в спальне — прим. редакции). С другой стороны, я использовала прочную моющуюся краску, что позволит долго поддерживать стены квартиры в первоначальном виде. Ну, а когда это понадобится, стены легко перекрасить, обновив и цвет, и общую стилистику», — уточняет дизайнер.

На полу — кварцвинил под светлое дерево по всей площади, исключая санузел и лоджию. Материал прочный, устойчивый к воде и грязи, к тому же менее шумный, чем ламинат.
На полу лоджии — плитка с геометрическим рисунком.

Яркую плитку выбрали и для пола в санузле. Тоже с геометрическим узором, но более выразительной расцветки, в ней собраны все оттенки интерьера квартиры. Стены в душевой выложены мелкоформатной плиткой светлого зеленого оттенка, а остальные — плиткой более крупного формата в нейтральном цвете.

Системы хранения
Для хранения основных и сезонных вещей, а также хозяйственного инвентаря, чемоданов предусмотрена гардеробная. Она небольшая, но вместительная. Для верхней одежды, обуви и сумок дизайнер предусмотрела в прихожей встроенный шкаф.

Еще один шкафчик разместили на балконе. Там же предусмотрели крюк для подвесного кресла, которое можно вешать в теплое время года, а в холодное убирать в гардеробную. Для съемки его как раз повесили. А прочность крюка тестировали еще на этапе ремонта рабочие (трое взрослых мужчин «висели» на нем, так что сомнений в надежности не возникает).
Кухонный гарнитур решили сделать компактным, но смогли разместить даже посудомоечную машину. Холодильник с СВЧ стоят отдельно от основного гарнитура, в углу кухни рядом с дверью на лоджию.

Обеденная зона представлена маленьким столиком и диванчиком. Дизайнер называет это место кафе.

В спальне решили организовать полноценное рабочее место, рассудив, что будущий арендатор может работать из дома.
Санузел получился компактным, поэтому стиральную машину поставили под раковину. Для хранения разных средств — шкафчик над инсталляцией унитаза.
Освещение
Общее освещение решили организовать с помощью точечных светодиодных светильников. А для дополнительного света предусмотрели бра у кровати (выключатель есть сразу при входе в комнату, если не хочется пользоваться общим ярким светом), настольную лампу на рабочем столе, торшер на кухне, подсветку рабочей зоны кухни, зеркало с подсветкой в ванной и бра над зеркалом в прихожей.


Евгения Акимова Дизайнер, автор проекта
Быстрая сдача квартиры по комфортной для хозяев цене показала, что я не ошиблась в выборе концепции. Квартиру сняла девушка, тестировщик из крупной компании. Как написал клиент, «все по брифу», как будто именно для нее мы и проектировали эту квартиру. Интересна история про кухню. Само помещение совсем небольшое, всего 6 кв. м, форма вытянутая и узкая. Получалось, что надо было выбирать — либо более длинный кухонный гарнитур, но крошечная зона приема пищи, либо гарнитур поменьше, но комфортная уютная зона «столовой». Но я называю это зоной кафе — уютный диванчик, круглый стол, вид в окно. Тут можно и поработать за ноутбуком, и провести вебинар — красивый задний фон для этого уже продуман. Я знаю, как уютно вот так сидеть на диванчике, пить кофе, смотреть в окно и строить планы на день или подводить итоги вечером. И очень рада, что мне удалось здесь реализовать именно такую зону. Кстати, по статистике именно диванчики занимают самыми первыми в кафе, и прекрасно, что нашей жительнице не придется ни с кем конкурировать, у нее есть личный диванчик.
6 фото

Кухня

Кухня

Кухня

Спальня

Спальня

Санузел Редакция предупреждает, что в соответствии с Жилищным кодексом РФ требуется согласование проводимых переустройств и перепланировок.

Смотреть перепланировку

Анастасия Дубровина

Ксения Халилюлян Маленькие квартиры Современный стиль Яркие цвета