Семейная пара с сыном и дочерью долгое время арендовали этот дом на лето. А потом решили выкупить его и пригласили дизайнеров студии RodenHome для того, чтобы обновить интерьер в кратчайшие сроки — 5 месяцев.
Заказчики и задачи
Новые владельцы этого дома — семья с двумя детьми, мальчиком младшего школьного возраста и девочкой-дошкольницей. Муж и жена увлекаются спортом, супруг любит готовить. Девочка занимается гимнастикой, балетом и любит рисовать, а мальчик заинтересован автогонками.
Вся семья — очень гостеприимные люди. Они любят собираться с друзьями — семьями с детьми — за просмотром фильмов и настольными играми. Для них было важно учесть в дизайне личные потребности и предусмотреть места для гостей, которые могли бы не только остаться с ночевкой, но и жить какое-то время. С этим они обратились к дизайнерам Екатерине Паршинцевой и Екатерине Ерохиной из студии RodenHome.

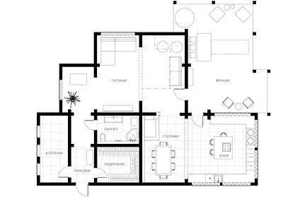
Планировка
Планировка дома устраивала хозяев и не требовала изменений. На первом этаже размещены большая гостиная, из которой есть выход на такую же большую террасу, кухня, совмещенная со столовой, гардероб, санузел и котельная.

На втором этаже — приватные комнаты. Это родительская спальня, общая детская, кабинет и две маленькие гостевые спальни. Конечно, есть и второй санузел.

Отделка
Деревянные стены обновили с помощью краски. Для всех помещений, кроме детской, выбрали светлые цвета. В детской добавили ярких акцентов в виде зеленого и голубого. В отделке столовой также применили камень — он украшает одну из стен.

А в спальне хозяев — фотообои в изголовье кровати и зеркальные панели. Санузлы оформлены крупноформатный плиткой с фактурой камня.

Системы хранения
Дом используется скорее как летняя дача, но тем не менее даже на несколько месяцев в году необходимо иметь комфортные системы хранения для вещей. На первом этаже планировкой предусмотрена гардеробная, вход в которую расположен из прихожей. Кухня — П-образная, расположенная вдоль окон, и очень вместительная. Из-за окон верхние шкафы не предусмотрены, но места действительно много. Кроме того, есть кухонный остров, установленный в центре этой зоны. Теперь это место для кулинарного хобби хозяина дома.

На втором этаже системы хранения предусмотрены в каждой комнате. В спальне хозяев — платяной шкаф, конструкция которого подстроена под скошенный потолок. И небольшой комод напротив него.

В детской — невысокий шкафчик и комод при входе, а также встроенные системы хранения по стене под скошенным потолком. Они интегрированы в одну систему с двумя кроватями — кровати размещены как раз под мансардными окнами. В каждой детской кровати есть выдвижная часть, чтобы можно было разместить с ночевкой друзей.

В одной гостевой комнате — шкаф, в другой — комод. В ванных хранение организовано в виде тумбочек под раковины.

«Мебель подбиралась с учетом характера заказчика. Так, в гостиной появился едва заметный дух сафари — дань многочисленным путешествиям хозяина: шкура на полу, мебель «в колониальном стиле», тумба для цветов из настоящих дорожных чемоданов», — рассказывают авторы проекта.
Освещение
Сценарии освещения отличаются в разных комнатах. На кухне над гарнитуром линейные встроенные профили, а над обеденным столом — люстра. В гостиной — накладные потолочные споты и плоский плафон в зоне выхода на веранду. В спальнях — потолочные светильники, в главной спальне есть прикроватные бра.


Дизайнеры Екатерина Паршинцева и Екатерина Ерохина, авторы проекта:
Для такого интенсивного и местами очень уединенного отдыха нужна спокойная обстановка. Все стены мы перекрасили в мягкие кремовые цвета в качестве фона и глубокие шоколадные для акцентов. Но все помещения решили сделать с индивидуальным характером. В детской добавили яркости голубыми и зелеными фонами для белой мебели. Одна из гостевых сложилась в образе нежной бело-голубой комнаты. Другая же получилась яркой и горячей с акцентами цвета карри. Так как у каждого помещения индивидуальный характер, то и декор выбирался по такому же принципу. Но объединяет его анималистистическая тематика, так сказать, соседи домика в лесу.
17 фото

Столовая

Столовая

Прихожая

Гостиная

Гостиная

Гостиная

Санузел на первом этаже

Спальня хозяев

Спальня хозяев

Гостевая спальня

Гостевая спальня

Гостевая спальня

Детская

Детская

Детская

Детская

Санузел на втором этаже Редакция предупреждает, что в соответствии с Жилищным кодексом РФ требуется согласование проводимых переустройств и перепланировок.

Смотреть перепланировку

Анастасия Дубровина

Ульяна Гришина

Юлия Шурмакова Современный стиль Светлые цвета Яркие цвета