Интерьер создавали для молодой студентки журфака ведущего московского вуза.
Заказчики и задачи
Будущая хозяйка этой квартиры — молодая девушка, студентка факультета журналистики МГИМО, а также в прошлом профессиональная фигуристка. Дизайнеру Ирине Балдановой нужно было оформить уютную квартиру в стиле современной классики, где будет легко отдохнуть после насыщенных будней.

Перепланировка
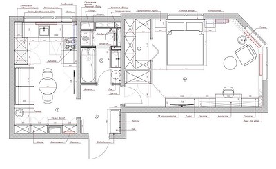
Квартира находится в панельном доме (большинство стен несущие), что ограничивало возможность перепланировки. Тем не менее изначальный план был удачным. Большая отдельная комната, изолированная кухня, ванная. Квартира — на две стороны. Из-за особенностей расположения коммуникаций кухню было легко спланировать у окна. В комнате выделили изолированную гардеробную. В ванной построили две перегородки для зонирования — за ними расположен унитаз и система хранения со стиральной машиной.

Отделка
В отделке прихожей на стенах использовали краску, а на полу — квадратную плитку небольшого формата с геометрическим рисунком. В кухне-гостиной и спальне — обои скомбинированы с краской. В первом случае это полотна с широкими полосами выбеленного зеленого и теплого белого цветов. Они занимают верхнюю часть стен, нижняя же выкрашена в светлый бежевый и украшена настенными молдинами.

В спальне — обои с легким, почти незаметным геометрическим рисунком. Основной цвет — бежевый с оттенками красного, теплый и обволакивающий. На полу в обеих зонах — инженерная доска, уложенная елочкой. Плинтусы и потолочные карнизы покрасили в цвет стен. Это визуально увеличивает высоту потолков.

В санузле скомбинировали крупноформатный керамогранит с фактурой под камень с краской. Она занимает верхнюю часть стен. Стык оформлен лепным декором. На полу — та же плитка, что и в прихожей.
Мебель и системы хранения
Дизайнер выжала максимум из существующих метров, чтобы спланировать удобное хранение. Так, на части спальни построили перегородки для изолированной гардеробной.

А с торца гардеробной — прямо у входа в комнату — встроили шкаф. Он предназначен для верхней одежды и заменяет, по сути, шкаф в прихожей, для которого не хватило места.

Также в спальне обустроили место для учебы девушки. Это система хранения из открытых и закрытых полок с антресолями и интегрированным рабочим столом. Она объединена с низкой тумбой под телевизор.

Из-за особенности планировки комнаты и трех окон кровать разместили изголовьем к окну. Нестандартное расположение, но заранее позаботились об утеплении стен и выборе теплого остекления.

На кухне гарнитур установлен у окна. Это П-образная система, но от верхних шкафов отказались — одну стену полностью занимает окно. Над плитой — вытяжка и рядом с ней открытые полки. По другой стене выстроены шкафы-колонны с техникой.

Напротив кухни встроено два шкафа. Дизайнер таким образом не только дополнила хранение, но и обыграла выступ вентиляционной шахты. В узком шкафу у двери — гладильная доска, утюг, скрыт электрический щиток.

В прихожей установили низкую обувницу, которая играет роль и сидения. Над ней — крючки для повседневной верхней одежды.

В ванной комнате, кроме тумбы под раковину, предусмотрели узкий шкафчик для косметики, встроенный в перегородку между унитазом и тумбой. А также шкаф над стиральной машиной, где можно хранить запасы моющих средств, полотенца. Для визуального порядка он скрыт за шторками. Есть шкафчик над инсталляцией унитаза.

Освещение
В качестве потолочного света дизайнер предусмотрела точечные светильники и люстры. Дополнительные сценарии — настольные лампы на прикроватных тумбах, бра над рабочим столом в спальне и по бокам от зеркала в ванной комнате.


Ирина Балданова Дизайнер, автор проекта
Как ориентир был выбран классический стиль интерьера — с использованием молдингов и фигурных карнизов. В процессе решили разбавить классический стиль мебелью с более современными формами. Получилась эклектика, самый популярный сейчас стиль.
11 фото

Кухня

Спальня

Спальня

Спальня

Спальня

Спальня

Спальня

Спальня

Спальня

Спальня

Санузел Редакция предупреждает, что в соответствии с Жилищным кодексом РФ требуется согласование проводимых переустройств и перепланировок.

Смотреть перепланировку

Анастасия Дубровина

Евгений Гнесин

Ирина Бебешина Светлые цвета Бежевый цвет Современная классика
