Алена Власова всего за четыре месяца превратила «брежневку» 1990-го года в яркое и уютное жилье
Гостиная. Диван, divan.ru. Кресло, советский винтаж. Стенка, ИКЕА. На стенке графика Елены Лещинской. Текстиль, Designers Guild. Ковер, «Культура ковров». Краска для стен, Ottinger.

ОБЩИЕ ПАРАМЕТРЫ
Тип недвижимости: квартира в панельном доме серии П-44 1990 года постройки
Где находится: район Москворечье-Сабурово
Метраж: 58 м2
Стиль: современный
Основная идея проекта: квартира сделана под сдачу, но с прицелом на то, что хозяйка вернется из своих дальних странствий и сама будет здесь жить лет через пять-десять
Цветовая гамма: яркая, жизнерадостная
Автор проекта: дизайнер Алена Власова, т. +7 (916) 605-15-02, aquaglo@mail.ru, www.sweet-flat.ru

Гостиная — это релакс-рум, здесь есть удобный диванчик, вместительная и уже теперь раритетная икеевская стенка «Бесто», оставшаяся от предыдущих жильцов этой квартиры с секциями под книги, вещи и технику, уютный шерстяной ковер, а еще винтажное кресло для уютных посиделок.
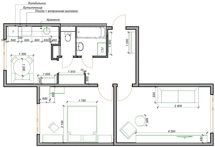
Если вам досталась квартира серии П-44, это значит, что вам придется сдерживать свои желания: двигать стены в такой квартире нельзя. Бывают, конечно, исключения, но в большинстве случаев единственное, что можно сделать — это объединить ванную с туалетом и присоединить прихожую к гостиной. Дизайнер Алена Власова признается, что для нее этот проект стал экспериментом: работать в таких условиях ей никогда не приходилось.

Гостиная, фрагмент. Диван, divan.ru. Бра, Globen Lighting. Ковер, «Культура ковров», текстиль, Designers Guild. Краска для стен, Ottinger

Гостиная, фрагмент. Кресло, винтаж. Стенка, ИКЕА.
«Заказчица — женщина в годах, яркая и эмоциональная, настоящий экстраверт, как и я, — рассказывает Алена. — Она дала мне полный карт-бланш, но минимальный бюджет, поэтому пришлось приложить смекалку и все свои таланты, чтобы остаться в рамках выделенных ресурсов, и из старенькой 32-летней „панельки“ сделать симпатичную, удобную для жизни, уютную и, что немаловажно, инвестиционно привлекательную квартиру с небанальным интерьером».

Кухня проектировалась по образу кафе. Нам всем нравится завтракать, обедать и ужинать вне дома. Так почему бы не сделать свое собственное кафе у себя дома? Диванчик, divan.ru. Стулья, Kartell. Бра, Favourite. Люстра, &Tradition.
Поскольку перепланировку в типовой панельке сделать нельзя (Алена лишь застеклила лоджию, убрала дверь на кухню, в прихожей снесла старую антресоль и вместо стенного шкафа сделала гардеробную за шторой), обновление квартиры шло в основном за счет эффектных декораторских решений.

Под верхними шкафчиками смонтирована подсветка «взмах рукой» — как оказалось, очень удобная фишка. Кухня, «Леруа Мерлен». Смеситель, ИКЕА. Вытяжка и духовка, Weissgauff. Розетки и выключатели, One Key Electro.
«Мне нравятся интерьеры, в которых есть какая-то тайна»

На кухне к импровизированным аркам Алена добавила смешные светильники, которые теперь все называют «глазами кухни». Стулья, Kartell. Буфет, La Redoute. Бра, Favourite.
«Я отталкивалась от принципа „антивандальности“, поскольку хозяйка еще лет 10, а то и 15 не хотела ввязываться в новый ремонт», — поясняет дизайнер.
Исходя из этого подхода, для пола выбрали водостойкий кварцвинил, а для стен — очень прочные и тем не менее экологичные стеклообои (их еще называют витрулин), которые потом покрасили интерьерной краской с высоким классом истираемости.

«Фишкой» всей квартиры в целом и спальни в частности стала художественная роспись — яркие пальмовые листья на необычном геометричном фоне. Небольшая спальня при невысоких потолках больше не кажется тесной, границы восприятия объема стерлись. Теперь здесь очень приятно засыпать и просыпаться под пальмой, мечтая о новых свершениях и размышляя о том, «что день грядущий нам готовит».
После выбора обоев настал черед «битвы красок»: для покраски стен использовали американский Avalon и отечественные Magestic Matt и Ottinger с керамическими частицами, сравнивая потом их между собой (оценивали по степени матовости, возможности помыть и отмыть различные следы бытования водой и жесткой губкой). Все эти краски зарекомендовали себя на «отлично», русская оказалась ничуть не хуже импортной.

Спальня, фрагмент. Тумбочка и рабочий стол, «Артис». Кровать, La Redoute. Бра, Maytoni. Покрывало, LoffiLab. Краска на стенах, Magestic Matt. Роспись за изголовьем, MyArtObject.

«Мне кажется, что только в России есть такое понятие как спальня-кабинет, — говорит Алена. — В двухкомнатных апартаментах это очень популярное и удобное решение». Настольная лампа, ИКЕА.
«Стеклообои имеют фактуру — это как будто ткань рогожка в диагональную полоску. С метра рисунок уже практически не виден, но эта фактура тем временем делает пространство более уютным. Для того, чтобы разбавить ее однородность, я использовала зеркала, большое количество декора и панели из самого обычного 10 миллиметрового мдф, окрашенного в яркие цвета. Таким образом у нас получился весьма фотографичный интерьер — хоть сейчас делай на его фоне селфи и выкладывай в соцсети».

Вид из прихожей на гостиную и спальню.

«Мне кажутся интересными квартиры, где есть какая-то тайна, — говорит автор проекта. — Здесь гардеробную от любопытных глаз отгораживает тяжелая штора, в рисунке которой присутствуют почти все цвета интерьера. И почти каждый входящий интересуется, что же за ней находится: вдруг на этот раз вход в Нарнию?»

В квартире спроектировано множество мест для хранения, можно разместить не только необходимые вещи, но и спортивное снаряжение: коньки, сноуборд, лыжи или же вещи для хобби и даже есть, куда поставить бабушкино варенье.
Ремонт шел под девизом «максимальный эффект за минимальный бюджет». В прихожей вешалку для одежды самостоятельно сварил муж Алены Власовой. На лавочку его уже не хватило, и ее уже потом докупали у мастеров в Туле.
Для входной двери дизайнер использовала принцип ресайкла, то есть подарила ей вторую жизнь — внутренности двери полностью модернизировали, поменяли замки и ручку, а сверху приклеили новенькую панель-накладку из мдф, где фрезером вырезали название студии Алены Власовой и одновременно концепцию этой квартиры: Sweet flat.

Прихожая. Панель на дверь, частное столярное производство. Лавочка, My Ory. Голубая краска на стенах, Magestic Matt. Терракотовая краска, Avalon. Кварцвинил, Thys.

Лоджию застеклили, чтобы дать будущим жильцам возможность использовать ее как еще одно место хранения.

Когда шесть месяцев в году за окнами такой вот монохром, яркая квартира становится не просто жильем, но настоящим лекарством от хандры.

Квартира 58 кв. м под сдачу в аренду в Москве. Проект Алены Власовой.Татьяна Филиппова