Дизайнер Анастасия Рыкова превратила поселковую баню в живописном месте на берегу реки Оки в светлую современную русскую дачу для своей семьи
ПАРАМЕТРЫ ОБЪЕКТА
-
Тип недвижимости: дом
-
Где находится: Калужская область
-
Метраж: 200 м2
-
Стиль: кинфолк
-
Основная идея проекта: создать современную русскую дачу
-
Цветовая гамма: белая
-
Авторы проекта: дизайнер Анастасия Рыкова, т. +7 (963) 636-00-10
«Я купила дом в тихом живописном месте на берегу реки Оки, — рассказывает дизайнер Анастасия Рыкова. — Изначально в нем собирались сделать баню для жителей поселка, но планы застройщика изменились, и так он достался нам. С этой историей связаны некоторые особенности здания: узкие высокие окна в мастер-спальне, шестиметровые потолки в коньке, вентилируемый плиточный фасад».

Кресло, мягкая мебель, Gervasoni. Ковер, Limited Edition.
«Мы живем и работаем в Москве, поэтому мне хотелось иметь именно дачу, а не загородный дом не для постоянного проживания. Вокруг участка растет березовая роща, поэтому и сам интерьер напоминает русский лес, но в современной интерпретации.
Основным цветом стал белый: на мой взгляд, это самый практичный и универсальный цвет. По русско-советской традиции мы привезли сюда несколько старых вещей: наличник, из которого сделали зеркало в холле, и шкаф 1960-х годов в одной из спален».

Журнальный стол, подсвечник, Familyhall.
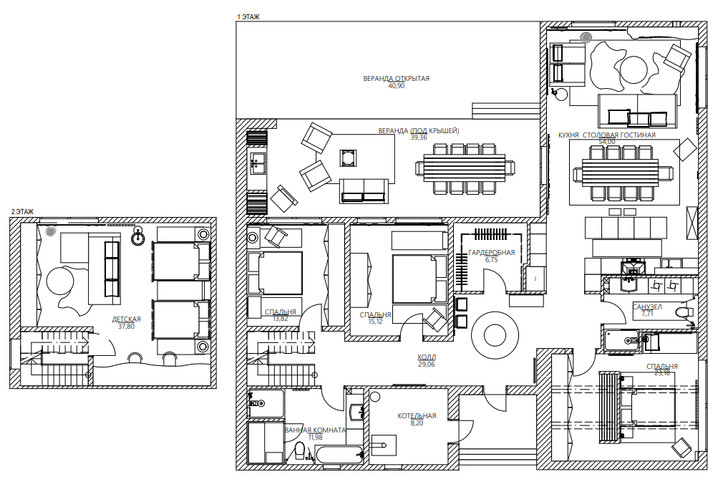
Кухня-гостиная заняла бывший зал с купелью. В ней два окна: одно выходит на пруд, второе — на сад, поэтому пространство залито светом, а красивый вид открывается из любой точки комнаты. Поскольку в этой комнате семья собиралась проводить большую часть времени, ее площадь максимально увеличили за счет мастер-спальни и санузла. Помимо диванной группы здесь нашлось место большой обеденной зоне с удобным деревянным столом, который не нужно раздвигать, и удобными мягкими полукреслами. «Столовая продумана так, что мы можем не только есть за столом, но и работать при необходимости», — говорит Анастасия.

Полукресла, Gervasoni. Cветильники, Familyhall. Встроенные светильники, Flos. Стол, Teakhouse.
Длинный кухонный остров позволил визуально исправить неправильную геометрию помещения и отделить от остального пространства рабочую зону кухни. Кроме того, благодаря острову на кухне появилось много мест хранения и дополнительная рабочая поверхность.

Кухня, Dantone.
На первом этаже дома находятся комнаты для гостей и хозяев. Главная спальня заняла помещение, где прежде была парная, поэтому в ней необычные высокие, длинные окна. Белый цвет в отделке, мебели и элементах декора визуально расширяет небольшие по площади помещения.

Пристенное зеркало, винтаж. Светильник-вентилятор, Familyhall.

Работа на стене, Зарикто Доржиев. Бра, Familyhall.
Шестиметровые потолки позволили сделать в доме второй этаж, где разместилась просторная детская для двух детей. Помимо спальной зоны с двумя кроватями там есть мягкая зона для игр в свободное время и рабочие места для занятий и рисования.


«Мы не стали делать санузлы при каждой спальне — все-таки площадь дома небольшая, всего 200 м2, — говорит Анастасия, — Основной санузел сделали большим: в нем разместили и душевую, и ванну, и встроенную сауну. Для меня важно, чтобы в доме можно было легко убираться, поэтому в ванных комнатах максимально используются встроенные элементы: полки, зеркала, шкафы и ящики, столешницы из камня в распор. Мне также не хотелось делать много швов: в комнате с гладкими прямыми поверхностями легче поддерживать чистоту».

Из гостиной и двух гостевых спален первого этажа можно выйти на просторную террасу. На ней Анастасия поставила большой стол с креслами и организовала зону отдыха с открытым очагом: в теплое время годя семья собирается здесь на свежем воздухе, как в летней гостиной. Уличную мебель не нужно убирать не зиму: она стоит в зоне под крышей, куда не попадает снег.

Уличная мебель, Dantone.
«На своем примере я поняла, что дом мечты можно создать из любого пространства, — говорит дизайнер. — На моей „доске желаний“ была картинка деревянного дома в 15-20 км от Москвы. Но когда мне досталась эта баня с вентилируемым плиточным фасадом, я перестала мечтать об идеальном варианте и загорелась идеей создать в этом живописном месте свой уголок для отдыха, и путь в 200 км из Москвы до дачи не стал для меня проблемой. Я внесла коррективы в свой график работы, привыкла слушать аудио-книги, так что теперь поездка в одну сторону — это или лекция, или треть книги».

Дом в Калужской области. Проект Анастасии Рыковой.Екатерина Собко