Дизайнер Ko&Vo Interiors Decoration Анастасия Образцова и архитектор Светлана Янпольская оформили интерьер квартиры, объединив скандинавскую эстетику с элементами стиля мидсенчури и приемом Color blocking
Вид на гостиную-столовую. Корпусная мебель и панели выполнены на заказ. Диван, плетеное кресло, столик с ручкой, торшер, ковер, все — ИКЕА. Каркасное кресло и подушки декоративные, H&M Home.
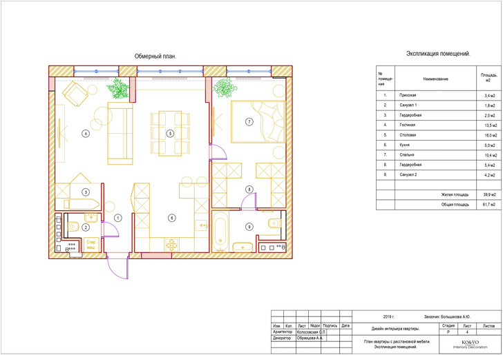
ПАРАМЕТРЫ ОБЪЕКТА
Тип недвижимости: квартира в новостройке
Где находится: г. Москва
Метраж: 62 м²
Стиль: современный
Основная идея проекта: создать эргономичный интерьер, для сдачи в аренду, который бы отвечал потребностям и вкусам современного городского жителя
Цветовая гамма: кремово-серые оттенки в сочетании с терракотовым и эвкалиптовым
Авторы проекта: дизайнер Анастасия Образцова и архитектор Светлана Янпольская, студия Ko&Vo Interiors Decoration, 63asya@gmail.com, svetlana_archit@mail.ru

Вид на ТВ-зону. Стена отделана керамогранитом, Atlas Concorde. Бра изготовлены на заказ.
Хозяева квартиры — молодая супружеская пара — приобрели ее для сдачи в аренду. Основными пожеланиями клиентов было создание практичного, функционального, долговечного интерьера в рамках крайне скромного бюджета. Одним из их пожеланий было не участвовать во всех процессах ведения стройки — данную функцию дизайнеры полностью взяли на себя.

Вид из прихожей на гостиную. Платяной шкаф изготовлен на заказ. Стул, Delo Design.

Фрагмент лаунж-зоны. Панели и корпусная мебель изготовлены на заказ. Столик, ИКЕА.

Вид на зону столовой. Обеденный стол, ИКЕА. Стулья, Delo Design. Над столом — светильник Pomi 7, Miloox. Дверь, «Волховец».
За счет переноса кухни в центр квартиры, удалось гармонично разделить ее площадь на общее пространство гостиной и кухни-столовой и приватную зону спальни с примыкающей к ней гардеробной и ванной комнатой. При этом на входе в квартиру устроен компактный гостевой санузел с постирочным отсеком, а в гостиной за фасадами шкафа скрывается целый хозяйственный блок.

Кухня выполнена на заказ. На стенах — трехмерный керамогранит, Atlas Conсorde.

Керамика, H&M Home.
В зоне гостиной и столовой был существенный недостаток в виде выступающих монолитных участков стен. Их скрыли, разместив встроенные системы хранения, облицованные декоративными панелями под шпон. Это решение помогло визуально объединить пространство.

Вид на столовую-гостиную.

Фрагмент спальни. Торшер, Creative Сo-Op Home.
В столовой особым цветовым акцентом выступили стулья, став самым ярким пятном в пространстве. В гостиной и кухне использован трехмерный керамогранит, с интересной, декоративной фактурой — материал, который отвечает требованиям практичности на все 100%.

Кровать и столик, ИКЕА. Бра выполнены на заказ по эскизам дизайнеров. Декоративные подушки, Zara Home и H&M Home. Плед, Zara Home.
В оформлении спальни дизайнеры использовали прием color blocking. Сложная колористическая композиция переходит со стен на межкомнатную дверь и фасады шкафов, собирая все пространство воедино. Несмотря на то, что бюджет требовал использования доступных предметов для дома, интерьер не лишился аутентичных черт. Например, для спальни по эскизам дизайнеров были выполнены необычные бра в форме дисков из перфорированного окрашенного металла и латуни. Такие объекты обычно не найти в квартирах, предназначенных для аренды.

Основная ванная комната. Каркасная мебель изготовлена на заказ. Стены декорированы плиткой Evolution, Equipe. Плитка напольная Futura, 41Zero42. Сантехника, BelBagno. Смеситель, Paffoni. Бра, ИКЕА. Зеркало выполнено на заказ. Постер, Etsy.
Вся реализация проекта пришлась на период изоляции и шла большей частью онлайн, но в итоге все сложилось благополучно. Теперь хозяева думают, не переехать ли им туда самим!

Гардеробная выполнена на заказ. Ручки, ИКЕА.

Гостевой санузел. Каркасная мебель изготовлена на заказ. На стенах — плитка Evolution, Equipe. На полу — плитка Cement, Wow. Сантехника, BelBagno, Roca.

Квартира в Москве. Проект Анастасии Образцовой и Светланы Янпольской.