Неиспользуемые здания типографии переделали в апартаменты. В одном из таких находится и эта студия. Ее оформила Екатерина Проскурина, основательница KPD.design.
Заказчик и задачи
Апартаменты принадлежат активной женщине около 50 лет. Она любит принимать в гостях подруг, маленькую внучку, которая может даже остаться с ночевкой. Поэтому на небольшой площади ей требовалось оформить достаточно много функциональных зон: удобную кухню, места для отдыха, сна. По эстетике и комфорту хозяйка хотела иметь аналог номера в хорошем отеле. И за этим обратилась к дизайнеру Екатерине Проскуриной.

Планировка
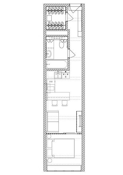
После обновления здания застройщик сдавал студию с отделкой. По планировке это помещение вытянутое, с единственным окном. При входе расположена отдельная гардеробная-кладовая, затем по коридору — ванная и комната, совмещенная с кухней. В перепланировке не было смысла. У окна только отделили спальню, выбрав для зонирования раздвижную стеклянную перегородку. Ставить глухие стены не хотели, чтобы сохранить естественный свет в мини-гостиной и кухне.

Отделка
От застройщика была отделка. В ванной комнате ее сохранили — настенную плитку под бетон и акцентную керамику с геометрическим узором. В пространстве студии постелили качественный ламинат. Стены покрасили, а зону спальни акцентировали яркими обоями с рисунком артишока.

«Мы хотели создать эффект цветочной поляны, — комментирует Екатерина. — Цветовая палитра этого интерьера состоит из необычных насыщенных цветов: розово-фиолетового, зеленого, желтого, песочного и оранжевого. Бросается в глаза цвет аметиста — сиренево-розовый, а приятный бежево-серый цвет служит базой. Им покрашены коридор и кухня-гостиная. Аметист мы использовали в спальне, чтобы добавить его к акцентным фрескам с изображениями гигантских артишоков. Чуть-чуть этого цвета есть на самих цветах. Гигантские цветы выбраны не случайно для небольшого пространства. Они создают необходимый контраст, уют и как будто увеличивают спальню. Аметистовая полоса идет по периметру всего апартамента, где основной цвет стен бежево-серый. Апартамент вытянутый и небольшой. Этот декоративный прием визуально уменьшает высоту потолка, делая его пропорции сомасштабнее человеку».

Мебель и системы хранения
В студию вписали максимум необходимой мебели. Наличие гардеробной позволило освободить пространство от шкафов. В прихожей сделали открытую вешалку, добавили зеркало и металлическую полку для мелочей.

Кухня — П-образная, стол заменили барной стойкой. Верхние шкафы — только по одной стене, чтобы не загромождать пространство. Холодильник встроенный.

В гостиной зоне — небольшой двухместный диван и тумба под телевизор напротив него.

В спальне — полноценная двуспальная кровать с тумбочками по двум сторонам. Кровать с подъемным механизмом, так что это тоже дополнительное место для хранения.
В ванной комнате от застройщика была тумба под раковину, но ее заменили на другую, под единой столешницей с ней поставили стиральную машину. Отказались от биде и спроектировали систему хранения во всю стену над инсталляцией унитаза.

Освещение
В качестве общего освещение предусмотрели точечные светильники. В гостиной — эффектная люстра, а над барной стойкой размещены два подвеса с такими же плафонами-льдинами. На кухне предусмотрена подсветка рабочей поверхности. В спальне отказались от верхнего света, предусмотрели настольную лампу с одной стороны и подвесы в цвет зеленой тумбочки с другой. В прихожей, кроме основного света, два бра по бокам от двери в ванную комнату. В ванной комнате — зеркало с подсветкой и потолочный свет.

Екатерина Проскурина Дизайнер, автор проекта
По стилю получился микс из современного минимализма и ар-деко. У нас современная мебель простых геометрических форм. К мебели, сделанной на заказ, мы подбирали ручки. На кухне — нейтральные ручки-скобы черного цвета в цвет техники. К зеленым тумбочкам в спальне мы с заказчицей нашли ручки из друз аметиста золотистого цвета. Не выбивается из общего стиля современная минималистичная мебель в черном цвете. Весь декоративный свет — с золотыми или черными деталями. Причудливая форма плафонов в форме кусков льда придает парадности этому интерьеру.
18 фото

Гостиная

Кухня-гостиная

Кухня-гостиная

Кухня-гостиная

Кухня

Кухня

Кухня

Кухня

Кухня-гостиная-спальня

Гостиная-спальня

Спальня

Спальня

Прихожая

Прихожая

Ванная комната

Ванная комната

Ванная комната

Ванная комната Редакция предупреждает, что в соответствии с Жилищным кодексом РФ требуется согласование проводимых переустройств и перепланировок.

Смотреть перепланировку

Анастасия Дубровина

Евгений Гнесин Современный стиль Бежевый цвет Фиолетовый цвет Оранжевый цвет