Много ниш, раковина на стиральной машине, компактная техника и другие приемы оформления маленького санузла, которые мы подсмотрели у дизайнеров.
1. Санузел, где поместилось все
Площадь санузла: 3,2 кв. м

Эта ванная комната находится в студии, предназначенной для аренды. Поэтому пространство должно было получиться универсальным и как можно более функциональным. Форма помещения — почти идеальный квадрат, поэтому мебель и сантехнику удалось удобно расставить вдоль стен. В углу сделали душевую, рядом с ней — туалет. Интересное решение дизайнер предложила для раковины: вместо тумбочки под ней поставили стиральную машину. А отсутствие традиционной системы хранения компенсировали узкой этажеркой рядом, шкафчиком с зеркалом, полочками и крючками.

Дизайн: Элина Мусина. Фото: Евгений Гнесин

Дизайн: Элина Мусина. Фото: Евгений Гнесин

Дизайн: Элина Мусина. Фото: Евгений Гнесин
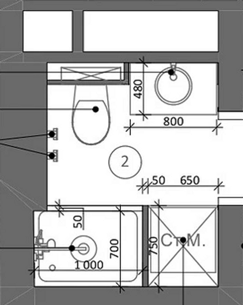
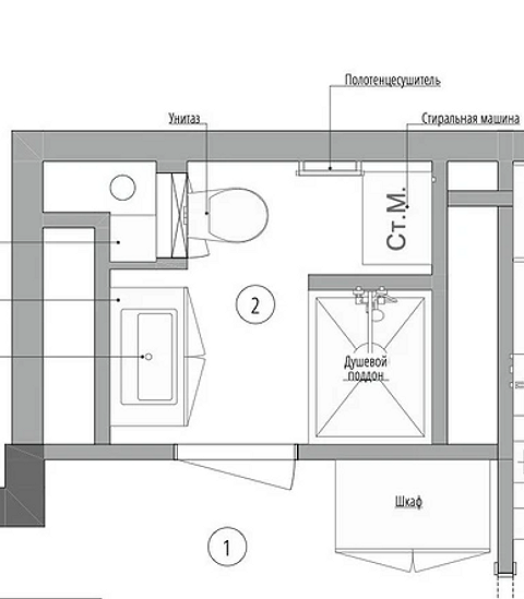
2. Лаконичная ванная с компактной техникой
Площадь санузла: 3,2 кв. м

И вновь квартира-студия, вновь для сдачи в аренду — теперь уже краткосрочную. Дизайн выдержан в том же стиле, что и жилая комната, продолжается здесь и приятная нейтральная бежево-голубая гамма. Душевую зону подняли на поддон и отделили шторкой, под раковиной обустроили пару полок. Дизайнер нашла место и для небольшой стиральной машины. Решение стоит взять на заметку и тем, кто живет в маленькой квартире сам, — для 1-2 человек компактной техники вполне достаточно.

Дизайн: Юлия Соболь. Фото: Татьяна Никитина

Дизайн: Юлия Соболь. Фото: Татьяна Никитина

Дизайн: Юлия Соболь. Фото: Татьяна Никитина
3. Удобный санузел в пастельных тонах
Площадь санузла: 3,2 кв. м

Эта квартира принадлежит девушке. Для санузла выбрали красивую пастельную гамму: белый и серый в сочетании с пыльно-розовым и приглушенно-зеленым. Помимо этого, совместили несколько материалов: краску, керамогранит под мрамор, плитку. Особое внимание уделили функционалу. Кроме душевой, туалета и раковины с тумбой, дизайнер спроектировала на маленькой площади хозяйственный шкаф со стиральной машиной. А ревизионный люк замаскировали отделкой.

Дизайн: Василиса Максимаджи. Фото: Татьяна Никитина

Дизайн: Василиса Максимаджи. Фото: Татьяна Никитина

Дизайн: Василиса Максимаджи. Фото: Татьяна Никитина
4. Функциональная ванная для семерых
Площадь санузла: 2,9 кв. м

46 квадратных метров для семьи из семи человек — сложно поверить, но это реально! Санузел здесь тоже только один, площадью 2,9 кв. м. При этом дизайнеру удалось сделать его не только стильным, но и удобным, выделив достаточно систем хранения для большой семьи. Это тумба под раковиной, инсталляция над унитазом и небольшой хозяйственный шкаф над стиральной машиной.

Дизайн: Елизавета Ткачева. Фото: Михаил Чекалов. Стиль: Екатерина Наумова

Дизайн: Елизавета Ткачева. Фото: Михаил Чекалов. Стиль: Екатерина Наумова

Дизайн: Елизавета Ткачева. Фото: Михаил Чекалов. Стиль: Екатерина Наумова
5. Графичное пространство с нишами
Площадь санузла: 3,4 кв. м

Этот санузел в первую очередь привлекает внимание ярким дизайном: в оформлении использовали беспроигрышное сочетание черного, белого и насыщенного желтого. За счет этого ванная выглядит яркой и солнечной. Интересна и работа с пространством. Оно практически полностью построено на нишах: справа от входа сделана душевая зона, за ней — место для стиральной машины. Раковина по левой стороне тоже стоит в углублении, за которым идет выступ с подвесным унитазом. По центру же остался удобный проход, чтобы по ванной можно было свободно передвигаться.

Екатерина и Вадим Бычковы. Фото: Евгений Гнесин

Екатерина и Вадим Бычковы. Фото: Евгений Гнесин

Екатерина и Вадим Бычковы. Фото: Евгений Гнесин
6. Светлая ванная с удобной планировкой
Площадь санузла: 2,9 кв. м

Площадь этого санузла даже чуть меньше трех квадратов — 2,9 кв. м (квартира типовая, в панельном доме). Хозяйка — взрослая женщина, дизайнер оформила интерьер в выбранных ей цветах. Один из них — смелый винный оттенок, который появился и в ванной. Здесь он выступает как акцент на нейтральном светлом фоне. Функционально пространство решено стандартно для маленькой площади: вместо ванной — душ для экономии места, мебель и сантехника — подвесные. Кроме тумбы под раковину, удалось выделить место и для хозяйственного шкафа (он находится рядом с унитазом).

Дизайн: Яна Гаевская. Фото: Женя Муравьева. Стиль: Евгения Давыдова

Дизайн: Яна Гаевская. Фото: Женя Муравьева. Стиль: Евгения Давыдова

Дизайн: Яна Гаевская. Фото: Женя Муравьева. Стиль: Евгения Давыдова
7. Элегантный санузел в неоклассическом стиле
Площадь санузла: 3,1 кв. м

Считается, что классика — стиль для больших квартир и просторных комнат. Но это далеко не так, особенно если выбрать для оформления ее более современную версию. Например, так сделали в этой студии. Неоклассика прекрасно вписалась в небольшое пространство не только жилой части, но и санузла. Для его отделки выбрали крупноформатный керамогранит под мрамор и краску, а нейтральную серо-бежевую палитру оттенили множеством золотых деталей. Стиральная машина находится на кухне, поэтому в ванной оставили только необходимую сантехнику и минимум хранения: тумбу под раковиной и полочки в душевой.

Дизайн: Ольга Цурикова. Фото: Антон Лихтарович. Стиль: Екатерина Шаповалова

Дизайн: Ольга Цурикова. Фото: Антон Лихтарович. Стиль: Екатерина Шаповалова

Дизайн: Ольга Цурикова. Фото: Антон Лихтарович. Стиль: Екатерина Шаповалова

Анастасия Степанова