Как дизайнеру удалось справиться с критически маленькой площадью и непростой планировкой, при этом создать комфортное место для проживания? Смотрите!
Эти апартаменты принадлежат дизайнеру Екатерине Шейн. Екатерина специализируется на оформлении жилья для краткосрочной аренды. Так как проект она делала для себя, можно было выполнить то, на что сторонний заказчик не согласится. Например, фартук из состаренного зеркала!
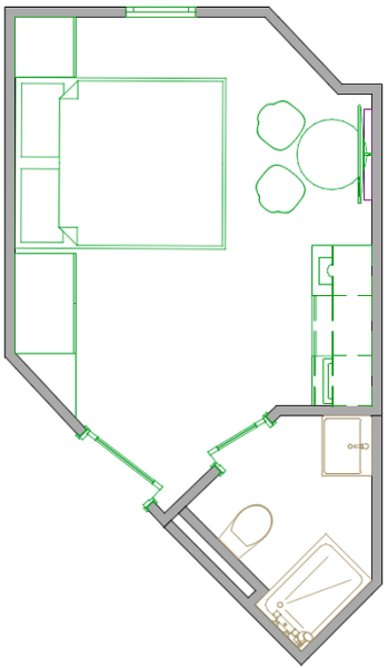
Планировка
Апартаменты находятся в здании бывшего бизнес-центра, который реконструировали, превратив в комплекс. Застройщик сдавал квартиру с готовой отделкой, Екатерине предстояло обыграть ее, а еще решить непростую задачу с расстановкой мебели, так как студия неправильной формы.

Отделка
Натяжной потолок, ламинат, двери, плинтусы и отделка стен — все это осталось от застройщика. Екатерина только перекрасила одну стену с оранжевой плиткой в ванной, подобрав цвет новой краски под серую нейтральную плитку. Акцентом в комнате выступает фартук из состаренного зеркала, который придает интерьеру шарм в стиле ар-деко. А главными героями здесь стали мебель и аксессуары.

Мебель и хранение
На маленькой площади удалось разместить два полноценных шкафа. Они расположились по бокам от кровати.

Первый — рядом с входной дверью — вмещает в себя секцию для верхней одежды, открытые полки для чемоданов и повседневных вещей. А ближайшая к двери секция с зеркалом на фасаде — без боковой стенки, ею выступает скошенная стена. Там скрылся электрический щиток, есть место для обуви.

Второй шкаф — рядом с окном. В нем предусмотрели секцию для сушилки, гладильной доски, а также полки.

От тумбочек отказались. В шкафах сделали ниши, которые их успешно заменяют.

Кухня очень компактная, всего на три секции, внизу установлен маленький холодильник, в верхнем шкафу спрятана микроволновая печь. На столешнице — варочная панель на две конфорки.

Кровать — акцентный элемент. Это было задумкой дизайнера. Екатерина выбрала обивку и решила добавить к ней черный кант, чтобы индивидуализировать дизайн.

Черные элементы продолжились в другой мебели — обеденной группе, фурнитуре, а именно ручках шкафов, черном фасаде шкафа с зеркалом.

В ванной комнате в тумбу под раковину установили стиральную машину, для хранения косметики предусмотрели шкафчик с зеркалом.

Над инсталляцией унитаза также установили небольшой встроенный шкафчик с полками.

Освещение
На потолке уже были встроенные светильники от застройщика. Дизайнер добавила два бра над кроватью (розетки и выключатели установлены на стенке шкафа в полках-нишах, заменяющих тумбочки), а в ванной дополнительное освещение реализовала с помощью шкафчика с зеркалом с подсветкой. Для этого застройщик предусмотрел электровывод.


Екатерина Шейн Дизайнер, автор проекта
Я хотела создать интерьер, который будет сочетаться с внешним видом дома и парадной, быть их логичным продолжением. С акцентами не на цвете, а на фактурах, формах и материалах. Площадь комнаты всего 14 кв. м, мебели немного, поэтому я решила сделать главными акцентами крупные предметы — кровать и фартук кухни. Я давно хотела использовать в интерьере фартук из состаренного зеркала, но желание заказчиков, концепция и бюджет не позволяли его вписать в мои предыдущие проекты. Этот апартамент — мой объект недвижимости, поэтому мне удалось реализовать задумку. Я очень долго подбирала картину в этот интерьер. Хотелось чего-то графичного и с тонкой отсылкой к Петербургу или дому. В итоге я распечатала рисунок черно-белой напольной плитки, такой же по форме, как в парадной дома. Постер отлично подытожил общую концепцию.
20 фото

Комната

Комната

Комната

Комната

Комната

Комната

Комната

Комната

Комната

Комната

Комната

Комната

Комната

Комната

Ванная комната

Ванная комната

Ванная комната

Дом

Дом

Парадная
Редакция предупреждает, что в соответствии с Жилищным кодексом РФ требуется согласование проводимых переустройств и перепланировок.

Смотреть перепланировку

Анастасия Дубровина

Кристина Плеер