Квартира выглядела не слишком привлекательно, но молодая пара была уверена, что у нее есть потенциал, и дизайнер его раскроет. Так в итоге и получилось

Дизайнер Евгения Акимова.
ОБЩИЕ ПАРАМЕТРЫ
Тип недвижимости: квартира в жилом доме 1983 года постройки, вторичное жилье
Где находится: Москва, район Фили, рядом четыре парка и Москва-река
Метраж: 55 м2
Стиль: современный, с яркими акцентами
Цветовая гамма: Светлая палитра с яркими акцентами.
Автор проекта: дизайнер Евгения Акимова, т. +7(916)720-16-11, https://vk.com/akimova_pro_designer
Заказчики — молодая пара, познакомились в студенческом общежитии, потом долго снимали комнаты, переезжали с одной квартиры на другую, пока, наконец, не обзавелись собственным жильем — 55-метровой «двушкой» на Филях. Место, где она находится, отличное — рядом Москва-река и парки, — но само помещение выглядело неважно. Молодую пару это не смутило, они ее купили и пришли к Евгении Акимовой за проектом.

Гостиная, фрагмент. Диван, divan.ru. Молдинги, Orac Decor.
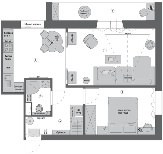
Квартира была небольшой, с двумя изолированными комнатами, кухней и большим балконом. Заказчики хотели объединить кухню и гостиную, поэтому между ними сделали большой проем с раздвижными дверьми, а проход из коридора в гостиную заложили. Спальню оставили без изменений, только перенесли дверной проем в более удобное место, чтобы поместился шкаф. Туалет и ванную комнату объединили.

«Квартира выстроена по осям, — рассказывает дизайнер Евгения Акимова. — В любой квартире очень важны видовые точки. Здесь, заходя в гостиную, мы видим симметричные молдинги с декоративными светильниками. Это сразу успокаивает, задает нужный ритм, поэтому вам легко и комфортно».
«В этой квартире мне нужно было поймать баланс, — объясняет Евгения, — важно было найти функциональное решение, выжать из этой небольшой площади максимум с точки зрения планировки, при этом не перегрузить ее, оставить мобильность, ведь в небольших квартирах у помещений обычно очень много функций и важно создать условия для вариативности».

Кухня. Гарнитур изготовлен Киржачской мебельной фабрикой.
Хозяева квартиры принимали активное участие в разработке дизайн-проекта, приходили со своими идеями и, хоть не сразу, но одобрили предложение дизайнера спрятать санузел в терракотовый куб. «Этот яркий объем дал цветной акцент сразу в нескольких помещениях, не раздробив их, а, наоборот, объединив в единой целое, — комментирует автор проекта. — Много ярких красок здесь не хотелось использовать, так как квартира не очень большая, а вот куб — отлично подошел и придал квартире изюминку».

Вид из гостиной на кухню. Слева терракотовая стена цветного куба, в котором спрятан санузел. Стеллаж, ИКЕА.
Кухня получилась просторной и функциональной. В обычное время круглый стол сдвинут в угол, для двоих места достаточно. Когда приходят гости, стол можно подвинуть в центр, добавить стульев и разместиться большой компаний. А еще тут есть мечта многих — уютный широкий подоконник с подушками и отличным видом из окна.

Кухня, фрагмент. Небольшая обеденная зона разместилась на кухне.
В гостиной нет телевизора — вместо него проектор и выдвижной экран. Этот пункт заказчики указали в брифе и ни разу не пожалели о своем решении. Смотреть кино удобно с большого изумрудно-зеленого дивана. А поработать можно на лоджии — ее утеплили и превратили в рабочий кабинет с зоной хранения.

Кухня, фрагмент.

Кухня, фрагмент.
В квартире есть еще один жилец — пес, который, к сожалению, не попал в кадр. «Он потрясающе красив и фотогеничен, но, как выяснилось, обладает ужасным характером, — вспоминает Евгения. — Я прямо видела, как мы наделаем с ним шикарных снимков, но он облаял всю нашу команду и категорически отказался позировать».

Спальня.

Вид из гостиной на кухню.

Вид из спальни. Терракотовый куб связал между собой все помещения квартиры.

Рабочая зона на лоджии.

Фрагмент прихожей.

Фрагмент прихожей.

Квартира в Филях, 55 кв. м. Проект Евгении Акимовой.Татьяна Филиппова