Среда, 21 января, 2026

Эклектичный интерьер для молодой пары 84 м²

Это интересно

Дарья Соловьева из студии «Белый куб» построила интерьер на контрастах: темного и светлого, классики и современности

Гостиная. Стеллаж из дуба и мрамора выполнен в частной столярной мастерской. Пропитка дерева маслом позволяет сохранить его запах и текстуру. Диван, Boca Room.

Эклектичный интерьер для молодой пары 84 м²

Дизайнер Дарья Соловьева.

ОБЩИЕ ПАРАМЕТРЫ

Тип недвижимости: квартира

Где находится: Москва ЖК «Зиларт»

Метраж: 84 м2

Стиль: авторский стиль с элементами неоклассики

Автор проекта: архитектор-дизайнер Дарья Соловьева, студия дизайна интерьера и экстерьера «Белый куб»

«Основная идея проекта — создать интерьер, который долго не выйдет из моды»

Эклектичный интерьер для молодой пары 84 м²

На стене над диваном работа художницы Натальи Будко.

Заказчики, молодая семейная пара, купили квартиру в жилом комплексе Зиларт, построенном на месте бывшей промзоны ЗИЛ в Даниловском районе Москвы, и обратились в студию «Белый куб» с просьбой создать в ней интерьер, который не выйдет из моды в ближайшие годы, светлый и лаконичный — на последнем условии особенно настаивал глава семьи.

Эклектичный интерьер для молодой пары 84 м²

Кухня-гостиная, фрагмент. Стремление к лаконичности в данном случае вполне логично — четкие линии и понятную геометрию имеет не только внутренне пространство квартиры, но и весь квартал «Зиларт». Не случайно его улицы и проезды названы именами художников-авангардистов и архитекторов-конструктивистов.

Эклектичный интерьер для молодой пары 84 м²

Кухня-гостиная, фрагмент. На стене над диваном работа художницы Натальи Будко.

После нескольких встреч и обсуждения будущего интерьера было решено, что в нем будут присутствовать некоторые элементы классики. «Эту квартиру нельзя представить себе без лепного декора», — уверена Дарья Соловьева. Лепные карнизы и молдинги отвечают за классику, четкие линии и сдержанный дизайн — за современность.

Эклектичный интерьер для молодой пары 84 м²

Вид из зоны гостиной на кухню. Кухня, Leicht.

Планировка была выбрана традиционная: правое крыло квартиры занимает общая зона, объединяющая кухню, столовую и гостиную. Левое крыло — приватная территория, она включает спальню с ванной комнатой, детскую и две гардеробных, мужскую и женскую.

Эклектичный интерьер для молодой пары 84 м²

Обеденная группа.

Пространство, отведенное под кухню-гостиную, имело небольшой недостаток — практически в центре оказалась несущая колонна, которую автору проекта удалось замаскировать, объединив в единую композицию с барной стойкой.

Эклектичный интерьер для молодой пары 84 м²

Обеденная зона, фрагмент. Дизайн квартиры построен на контрасте цветов и фактур. В отделке и обстановке кухни-гостиной использованы дерево и мрамор. Спинки и сиденья обеденных стульев обтянуты кожей.

Эклектичный интерьер для молодой пары 84 м²

Обеденная зона, фрагмент. Стеллаж-библиотека выполняет функцию ТВ-стойки и выделяет телевизионную зону. Она организована таким образом, чтобы телевизор был виден не только с дивана, но и с барной стойки кухни

Эклектичный интерьер для молодой пары 84 м²

Столешница барной стойки изготовлена из мрамора.

Дизайн квартиры построен на контрастах цветов, материалов и фактур. В общей зоне это теплое дерево и холодный, гладкий мрамор. В спальне появляется еще один элемент — бархатистая ткань и золотистая латунь мягких панелей в изголовье кровати.

Эклектичный интерьер для молодой пары 84 м²

Спальня. Из французского окна открывается панорама жилого квартала.

Эклектичный интерьер для молодой пары 84 м²

В спальне дизайнер использовала здесь проверенные временем, классические элементы оформления: молдинги, текстильные панели, потолочные карнизы, симметрию в расстановке мебели.

Эклектичный интерьер для молодой пары 84 м²

Спальня, фрагмент. Мягкое изголовье и прикроватные тумбы выполнены на заказ по чертежам дизайнера.

Отделка ванной комнаты поддерживает контраст светлых и темных оттенков, характерный для дизайна всей квартиры. Здесь это сочетание темного и светлого мрамора. Большое зеркало визуально увеличивает помещение, встроенный свет в потолок в виде кругов смягчает острые углы.

Эклектичный интерьер для молодой пары 84 м²

Ванная комната при спальне. Тумба сделана на заказ. Сантехника, Cfrlo Frattini.

Эклектичный интерьер для молодой пары 84 м²

Ванная комната при спальне. Ванна, Villeroy & Boch. Основа для нее — мрамор.

Детская комната по колористике отличается от остальных помещений квартиры. Это царство маленькой принцессы, уютное и спокойное. Здесь нет никаких контрастов, все предметы выполнены в нежных пудровых оттенках.

Эклектичный интерьер для молодой пары 84 м²

Для детской дизайнер подобрала предметы округлой формы.

Эклектичный интерьер для молодой пары 84 м²

Детская комната. Шкафы выполнены на заказ.

Эклектичный интерьер для молодой пары 84 м²

Гостевой санузел, фрагмент.

Прихожая — единственное помещение квартиры, выполненное исключительно в светлых тонах. Один и тот же оттенок был выбран для стен, потолка и дверец шкафа с высокими ручками, которые вытягивают его вверх.

Эклектичный интерьер для молодой пары 84 м²

Прихожая. Шкаф из крашенного МДФ выполнен в столярной мастерской.

Эклектичный интерьер для молодой пары 84 м²

Эклектичный интерьер для молодой пары 84 м²

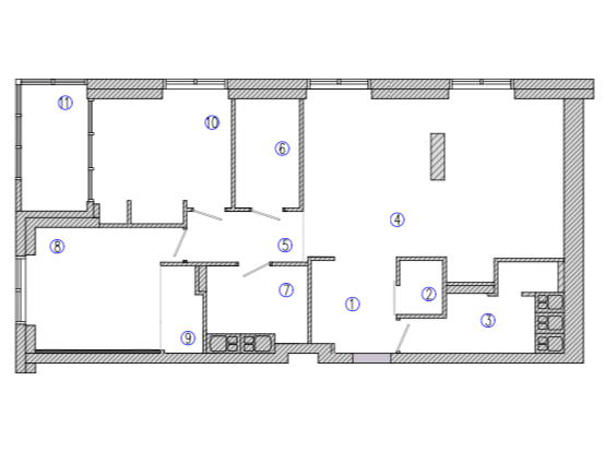
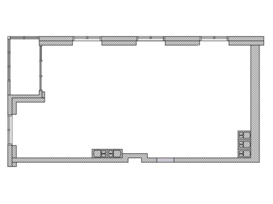
План квартиры до и после перепланировки.

Эклектичный интерьер для молодой пары 84 м²

Планировочное решение.

Новое на сайте

Названы районы Москвы с подешевевшей в 2025 году арендой жилья

За год долгосрочная аренда жилья подешевела в семи районах Старой Москвы. Наибольший годовой спад пришелся на Марьину Рощу ...

Похожие статьи

Если вы хотите получать уведомления на свой E-mail о появлении новых статей, то рекомендуем вам чуть ниже ввести свой электронный почтовый адрес.