Две главные зоны квартиры (приватная и общая) спроектированы контрастно. Общая — более светлая и минималистичная. Приватная — яркая, с нотками экзотики и этнического стиля.
Заказчик и задачи
Дизайнер Мария Черкасова описывает свою заказчицу как успешную деловую девушку с аналитическим умом и ярким темпераментом. К Марии у нее было конкретное, но вместе с тем и непростое пожелание — «сочетать несочетаемое» в интерьере. Также было важно в кухне-гостиной сместить фокус внимания с кухни, сделать ее максимально незаметной. А еще обеспечить достаточно систем хранения.

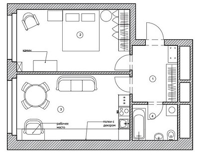
Планировка
Квартира представляет собой классический пример современной планировки: кухня-гостиная, отдельная спальня, ванная комната и прихожая.
Застройщик на этапе сдачи объекта предложил владельцам квартир опцию: оставить лоджию в спальне или убрать перегородку. Хозяйка квартиры выбрала второй вариант, поэтому получила квартиру без лоджии. Согласовывать перепланировку не пришлось — в плане БТИ лоджии уже не было.

Отделка
Квартиру получили в отделке. И в целях экономии бюджета и времени часть решили оставить, а именно: краску на стенах в прихожей и кухне-гостиной, плитку в прихожей, зоне кухни и ванной комнате, ламинат в гостиной и спальне, двери. «Выбор застройщика — бюджетные и нейтральные материалы. Мы их оставили, поскольку они вписались в концепцию», — комментирует Мария.
Кое-что в отделке все же изменили, чтобы индивидуализировать пространство. Так, стена за диваном в кухне-гостиной теперь оклеена обоями. Рисунок дорабатывала дизайнер так, чтобы он соответствовал концепции пространства: на светлом фоне изображены геометрические фигуры и крупные изображения кролика и совы.

В спальне отделку стен поменяли полностью. Стена за изголовьем кровати оклеена обои с рисунком на тему тропиков. Остальные стены окрашены в глубокий синий цвет. «Спальня воплощает тропическую ночь», — уточняет дизайнер.

Мебель и системы хранения
На старте работы хозяйка предоставила подробный перечень своих вещей, и речь не только об одежде, но также о бытовых принадлежностях. «Информация заняла 11 листов ТЗ, было описано все вплоть до количества и размера обувных коробок, числа бокалов и высоты пылесоса. Нужно было использовать пространство максимально», — делится Мария. Такой подход позволил сделать системы хранения в нужном объеме и действительно функциональными.
В прихожей разместился шкаф для верхней одежды, обуви и пылесоса (для последнего запланировали и розетку в шкафу для зарядки).

В спальне — вместительный встроенный шкаф в цвет стен. Так габаритная система не выделяется в интерьере. «Мы подсчитали, сколько вечерних платьев и какой длины есть у заказчицы, сколько блузок и юбок, чтобы разместить вешала по высоте без потери пространства», — говорит дизайнер.

Также в спальне установили шкаф для книг, где нашли место и для стремянки (в заранее запланированной нише).

Вместо прикроватной тумбы — сундук, найденный в магазине аксессуаров. Однако его используют не только как тумбу, но и место для хранения шляп.
В кухне-гостиной не хотели делать акцент на кухне, поэтому кухонная мебель — в цвет стен, без ручек, техника встроена для того, чтобы не привлекать внимания. Интересный ход — в планировке этой зоны. Вся «утилитарная» часть (мойка, варочная поверхность, духовой шкаф) расположились в одном месте. Но рабочая поверхность и нижние шкафы размещены по другой стене. Однако они выглядят скорее как мебель гостиной. За счет такого подхода удалось сформировать «незаметную» кухню.

Обеденный стол поставили у большого окна. Выбрали модель на стыке этники и современного стиля: основание, по словам автора проекта, напоминает ананас. Однако форма и исполнение — минималистичные.
Освещение
И спальня, и кухня-гостиная — достаточно вытянутые комнаты. Поэтому освещение спроектировали в двух частях. Для кухни-гостиной выбрали потолочные люстры. В спальне — светильник в зоне биокамина и второй — у кровати. В прихожей и ванной — потолочное освещение, в ванной комнате в качестве второго (вечернего) сценария света — подсветка зеркала.


Мария Черкасова Дизайнер, автор проекта
Отправной точкой концепции интерьера стала дихотомия «день/ночь». Это отражает многогранный характер заказчицы. День — это рабочая зона: сдержанная, лаконичная. Спальня — это темная тропическая ночь: яркая, насыщенная. В спальне много элементов этнического, тропического стиля: обои-фреска с тропическим рисунком, шкаф-жалюзи из дерева, расписной сундук. Все это создает нужное расслабленное и вместе с тем наполненное настроение. В гостиной — современный лаконичный стиль. Их удалось совместить посредством мостика-перехода в прихожей, где есть элементы обоих стилей. В нейтральную гамму гостиной добавили ярко-розовый диван и декор — корзину, придиванный столик.
12 фото

Кухня-гостиная

Кухня-гостиная

Кухня-гостиная

Кухня-гостиная

Прихожая

Прихожая

Прихожая

Спальня

Спальня

Спальня

Спальня

Ванная комната Редакция предупреждает, что в соответствии с Жилищным кодексом РФ требуется согласование проводимых переустройств и перепланировок.

Смотреть перепланировку

Анастасия Дубровина

Сергей Вязьмикин

Кира Прохорова Эклектика Светлые цвета Синий цвет