Расстановка мебели, варианты зонирования, готовые планировки и идеи оформления в разных стилях — сделали подробный гайд по обустройству гостиной площадью 20 квадратов.
Площадь 20 кв. м для гостиной в квартире — вполне достаточная для того, чтобы с комфортом обустроить пространство. Помещение может выполнять как свою основную функцию, так и включать в себя другие зоны: например, столовую, спальню, рабочее место. К тому же сейчас все чаще выбирают открытые планировки, в которых зал совмещен с кухней. В этой статье рассмотрим разные варианты, дадим советы по зонированию, разберем планировки и возможности оформления в разных стилях.
Варианты дизайна гостиной 20 кв. м
Особенности
Расположение мебели
— Зонирование
— Примеры планировок
Оформление в разных стилях
— Современный
— Минимализм
— Лофт
— Сканди
— Неоклассика
Особенности помещения

Планируя гостиную, необходимо отталкиваться от особенностей комнаты. От них будет зависеть практически все: расположение мебели, зонирование, возможность выделить те или иные функциональные зоны, отделка и освещение.
Что особенно важно:
- Форма комнаты.
- Наличие сложной архитектуры.
- Количество и расположение окон.
Все это имеет значение. Так, например, в прямоугольной комнате проще последовательно расположить зоны, но при этом нужно продумать их разделение: если окно только одно, вариант с глухими перегородками не подойдет — будет слишком темно. В квадратном помещении может быть больше естественного света за счет нескольких окон и в целом визуально оно кажется просторнее, но зонирование будет более сложным. А если есть какие-то нестандартные особенности (ниши, эркер, колонны, скошенные стены), то их придется учитывать и, скорее всего, выстраивать всю планировку от них.
10 фото

Дизайн: Анна Маркина и Ксения Шабалина. Фото: Борис Бочкарев

Дизайн: Анна Маркина и Ксения Шабалина. Фото: Борис Бочкарев

Дизайн: Маргарита Зенова. Фото: Наталья Градусова. Декоратор: Анастасия Власова

Дизайн: Марина Макарова

Дизайн: Марина Макарова

Дизайн: Наталья Балашова. Фото: Ольга Шангина

Дизайн: Наталья Балашова. Фото: Ольга Шангина

Дизайн: Евгения Пестова. Фото: Евгений Кулибаба. Стиль: Елена Карасаева

Дизайн: Наталья Широкорад. Фото: Ольга Мелекесцева. Стиль: Ольга Рябова

Дизайн: Наталья Широкорад. Фото: Ольга Мелекесцева. Стиль: Ольга Рябова
Планировка
При планировании гостиной 20 кв. м в доме или квартире важно, какие функции будет выполнять помещение.

Перед тем как создавать проект, ответьте на несколько вопросов:
- Каков состав семьи? Сколько человек обычно одновременно собирается в зале?
- Вы предпочитаете открытую планировку или кухня будет изолированной?
- Есть ли какие-то дополнительные зоны, которые обязательно нужно разместить здесь (например, основное или запасное спальное место, мини-кабинет, игровая, уголок для спорта и т.д.)?
Исходя из этого, станет понятно, какой набор мебели вам необходим, как ее расположить и какой тип зонирования пространства выбрать (перегородки, отделка, стеллажи).
12 фото

Дизайн: Маргарита Макарова. Фото: Григорий Уваров

Дизайн: Маргарита Макарова. Фото: Григорий Уваров

Дизайн: Евгения Пестова. Фото: Михаил Степанов. Стиль: Ольга Васюкова

Дизайн: Евгения Пестова. Фото: Михаил Степанов. Стиль: Ольга Васюкова

Дизайн: Лариса Топова. Фото: Михаил Чекалов

Дизайн: Лариса Топова. Фото: Михаил Чекалов

Дизайн: Вера Шеверденок. Фото: Евгений Гнесин. Стиль: Евгения Мельникова, Ирина Бебешина

Дизайн: Вера Шеверденок. Фото: Евгений Гнесин. Стиль: Евгения Мельникова, Ирина Бебешина

Дизайн: Катерина Арзуманова. Фото: Наталья Вершинина

Дизайн: Катерина Арзуманова. Фото: Наталья Вершинина

Дизайн: Катерина Арзуманова. Фото: Наталья Вершинина

Дизайн: Катерина Арзуманова. Фото: Наталья Вершинина
Зонирование в дизайне гостиной 20 кв. м
Главная функция зала — быть местом для отдыха, сбора всей семьи и друзей. Поэтому основная зона здесь — мягкая группа.

Но на площади в двадцать квадратов редко ограничиваются только ей. Даже если кухня и спальня находятся в отдельных помещениях, здесь можно расположить столовую, домашнюю библиотеку или дополнительное рабочее место. Рассмотрим особенности зонирования для разных сценариев.
- Зал + кухня. Это самый частый случай. Сегодня большинство застройщиков уже предлагают такую планировку, при которой зоны готовки, приема пищи и отдыха объединены. Если комната вытянутая, проще всего распределить эти части последовательно: например, при входе расположен гарнитур, за ним — обеденный стол или барная стойка, в дальнем конце — мягкая группа с телевизором, системами хранения или рабочим местом. Если в комнате не предполагается спальная зона, можно обойтись без любых визуальных разграничителей: расположения мебели или, например, разной отделки будет вполне достаточно.
- Зал + спальня. Для совмещения со спальным местом идеальна гостиная 20 кв. м с двумя окнами. Но даже если проем всего один, выделить зону для сна вполне реально. Поскольку в данном случае важно обеспечить приватность, обойтись без перегородок невозможно. Но чтобы не загромождать пространство и не перекрывать свет (особенно если речь идет об одном окне), лучше всего использовать стеклянные экраны. Также подойдут ширмы и текстильные занавески. При наличии двух и более проемов каждую зону желательно располагать у окна. Место для сна может быть решено полноценной кроватью или, например, раскладным диваном.
- Зал + кабинет. Часто в общем пространстве выделяют место под рабочий уголок. Его наполнение и степень обособленности зависят от количества человек в доме и особенностей работы. Так, если вам нужно полное уединение, лучше отделить мини-кабинет от мягкой группы перегородкой (особенно если домочадцы любят смотреть телевизор или устраивать шумные посиделки). Если же такой необходимости нет, можно ограничиться компактным письменным столом. Располагайте его в максимальной близости к окну и естественному освещению.
12 фото

Дизайн: Карина Сейфуль-Мулюкова. Фото: Сергей Красюк. Стиль: Кира Прохорова

Дизайн: Карина Сейфуль-Мулюкова. Фото: Сергей Красюк. Стиль: Кира Прохорова

Дизайн: Татьяна Петрова. Фото: Андрей Семченко

Дизайн: Юлия Карпухина. Фото: Евгений Гнесин. Стиль: Евгения Мельникова

Дизайн: Юлия Карпухина. Фото: Евгений Гнесин. Стиль: Евгения Мельникова

Дизайн: Юлия Карпухина. Фото: Евгений Гнесин. Стиль: Евгения Мельникова

Дизайн: Анна Шиманова. Фото: Максим Максимов. Стиль: Екатерина Шаповалова

Дизайн: Анна Шиманова. Фото: Максим Максимов. Стиль: Екатерина Шаповалова

Дизайнер: Эльмина Гай. Фото: Роман Спиридонов

Дизайнер: Эльмина Гай. Фото: Роман Спиридонов

Соцсети дизайнера Дениса Горшкова

Соцсети дизайнера Дениса Горшкова
Примеры планировок
Рассмотрим несколько вариантов готовых планировок прямоугольной гостиной 20 кв. м: обособленной и совмещенной с другими зонами.
Пример №1
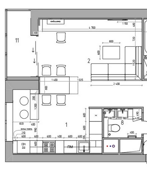
Площадь этой комнаты в трешке даже чуть меньше двадцати квадратов — всего 19,3 м2.

Пример №2
Если квартира достаточно просторная и в общей зоне не нужно выделять дополнительные зоны, можно сфокусироваться на комфортном интерьере.

Пример №3
А в этом проекте дизайнер предложила не самое стандартное расположение дивана, зонировав таким образом пространство площадью 20,5 м2.

Пример №4
Сейчас принято совмещать гостиную с кухней. Вот как это может выглядеть в широком прямоугольном помещении.

Выбор стиля
Двадцати квадратов вполне достаточно, чтобы реализовать на таком метраже любой интерьерный стиль.

Поэтому при выборе дизайна отталкивайтесь от общей концепции жилья и своих вкусов. Рассмотрим самые яркие особенности популярных направлений и то, как применить их в оформлении зала.
Контемпорари
Современный дизайн не предполагает строгих канонов, у него нет ярко выраженных визуальных маркеров. В первую очередь это общие идеи, на основе которых каждый создает интерьер по душе. Так, для стиля контемпорари свойственны открытые пространства, использование природных фактур и спокойных естественных цветов, функциональность мебели, умеренное количество аксессуаров. Современная гостиная должна расслаблять, создавать комфорт и ощущение уюта. Избегайте слишком ярких, кислотных цветов, используйте только качественные материалы для мебели или отделки, комбинируйте их, дополняйте пространство умеренным количеством декора, чтобы сделать обстановку завершенной.
6 фото

Дизайн: Альбина Мухаметшина. Фото: Александр Бурнатов

Дизайн: Альбина Мухаметшина. Фото: Александр Бурнатов

Дизайн: Анна Доброковская. Фото: Антон Лихтарович

Дизайн: MDN Studio

Дизайн: MDN Studio

Дизайн: Анастасия Заркуа. Фото: Татьяна Никитина. Стиль: Наталья Орешкова
Минимализм
В той или иной степени минимализм лежит в основе всех современных стилистик, поскольку сейчас это один из главных постулатов дизайна в целом: функция преобладает над формой. А общий тренд на экологичность и осознанное потребление делает этот стиль еще более актуальным. При этом минимализм не означает полный аскетизм и отсутствие уюта. В комнате может быть столько вещей, сколько вам необходимо, но важно, чтобы все они были функциональными и действительно нужным. Яркая черта стиля — продуманные системы хранения, преимущественно закрытые. Если вы любите открытые полки и стеллажи, продумайте, что и как вы там расставите. Предметов не должно быть слишком много, чтобы они не создавали визуальный шум и не слишком осложняли уборку.
8 фото

Дизайн: MDN Studio

Дизайн: MDN Studio

Дизайн: MDN Studio

Дизайн: группа компаний «ОМиС»

Дизайн: группа компаний «ОМиС»

Дизайн: группа компаний «ОМиС»

Дизайн: MDN Studio

Дизайн: MDN Studio
Лофт
Лофт ассоциируется в первую очередь с простором, большими окнами и высокими потолками. Проще всего реализовать этот стиль в чистом виде в загородном доме, а вот в городских квартирах чаще всего делают стилизацию, выбирая самые характерные элементы направления. Впрочем, площади в двадцать квадратов вполне достаточно для того, чтобы передать атмосферу лофта.
Для этого:
- Используйте элементы внешней отделки даже внутри (кирпич, бетон, металл, имитацию камня).
- Сделайте пространство максимально светлым и открытым, откажитесь от перегородок, не завешивайте окна плотными шторами.
- Сочетайте брутальные и более мягкие фактуры, чтобы комната выглядела броско, но все еще уютно.
- Делайте акцент на характерном декоре. Это могут быть светильники на цепях, деревянные ящики, стекло и металл, стрит-арт, другие индустриальные элементы.
6 фото

Дизайн: Юлия Сологубова. Фото: Евгений Гнесин

Дизайн: Юлия Сологубова. Фото: Евгений Гнесин

Соцсети студии Holl

Дизайн: Екатерина Ненашева. Фото: Никита Коростелев. Стиль: Анастасия Тушканова

Дизайн: Екатерина Ненашева. Фото: Никита Коростелев. Стиль: Анастасия Тушканова

Соцсети студии ToTaste
Сканди
Скандинавский стиль не теряет популярность и вряд ли выйдет из моды в ближайшие несколько лет. Хотя в чистом виде он многим уже приелся, поэтому сейчас все чаще встречаются интересные миксы с другими стилями: например, сканди и классика, лофт или минимализм. Не бойтесь добавлять яркие детали, сочетать разные приемы и таким образом делать пространство более индивидуальным. Но не забывайте и про главные маркеры скандинавского стиля: бюджетные решения, экологичные материалы (допускаются как натуральные, так и качественные альтернативы), базовая светлая палитра, лаконичный дизайн мебели и простая отделка. Несмотря на некую аскетичность нордического дизайна, зал в этой стилистике все равно будет смотреться уютно и тепло. В этом помогут разнообразный текстиль и декор (преимущественно природный). Сканди — отличный вариант для светлой гостиной 20 кв. м.
12 фото

alvhem.com

alvhem.com

stadshem.se

stadshem.se

alvhem.com

alvhem.com

Дизайн: Владимир Карпенко. Фото: Василий Хуртин

Дизайн: Владимир Карпенко. Фото: Василий Хуртин

alvhem.com

Соцсети студии Projection Design

Соцсети студии Projection Design

Соцсети студии Projection Design
Неоклассика
Тем, кто предпочитает современным трендам традиционные интерьеры, понравится неоклассика. В отличие от классического стиля в чистом виде она больше подходит для повседневной жизни и гармонично смотрится в рамках даже небольшой квартиры.
Основные маркеры неоклассики:
- Качественные, преимущественно натуральные материалы и фактуры. В приоритете дерево, мрамор и другие виды камня.
- Симметрия в основе композиции.
- Лепной декор: молдинги, розетки, потолочные карнизы и т.д.
- Спокойная и благородная цветовая гамма, которую допускается разбавлять насыщенными акцентами. На их роль подойдут природные оттенки синего и голубого, зеленого, красного, фиолетового, желтого или розового. В качестве основы для светлой гостиной 20 кв. м подойдут серый, кремовый, теплый белый.
10 фото

Дизайн: Наталья Юхнюк. Фото: Екатерина Гейц

Дизайн: Наталья Юхнюк. Фото: Екатерина Гейц

Дизайн: Наталья Юхнюк. Фото: Екатерина Гейц

Дизайн: Наталья Юхнюк. Фото: Екатерина Гейц

Дизайн: Марина Макарова

Дизайн: Марина Макарова

Дизайн: Марина Макарова

Дизайн: Татьяна Астафьева. Фото: Наталья Вершинина. Стиль: Екатерина Грищенко

Дизайн: Татьяна Астафьева. Фото: Наталья Вершинина. Стиль: Екатерина Грищенко

Дизайн: Татьяна Астафьева. Фото: Наталья Вершинина. Стиль: Екатерина Грищенко

Анастасия Степанова