Дизайнер Анастасия Заркуа любит использовать насыщенные оттенки в своих проектах. А хозяева этой квартиры именно того и хотели.
Заказчики и задачи
Владельцы этой трехкомнатной квартиры в Санкт-Петербурге — молодая семейная пара с кошкой. Они увлекаются растениями, коллекционируют лего, ведут здоровый образ жизни. Основным пожеланием было оформить комфортную квартиру с просторной рабочей зоной кухни (хозяин любит готовить) и большим количеством мест хранения. За этим они обратились к дизайнеру Анастасии Заркуа.

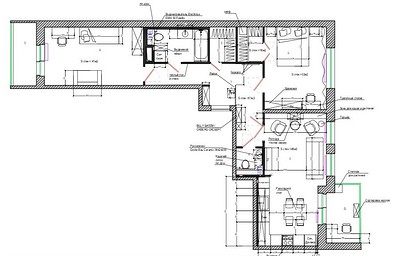
Планировка
На большой площади (почти 92 кв. м) застройщик предусмотрел кухню-гостиную, две комнаты, два санузла и место под гардеробную. Планировка устраивала хозяев. Дизайнер только выделила дополнительную гардеробную при спальне, а остальные зоны остались на своих местах. В дальней комнате запланировали детскую. Пока — на будущее.

Отделка и цвет
Для отделки стен выбрали краску. В прихожей-коридоре основная часть окрашена в нейтральный тон, а зона входа выделяется насыщенным зеленым оттенком.

В кухне-гостиной стены тоже нейтральные, акценты расставлены с помощью мебели — гарнитура и дивана, а в зеленый окрашена стена напротив кухни. Она стала отличным фоном для картин. Для спальни выбран серо-голубой цвет. Санузлы получились самыми насыщенными. В ванной — желтая плитка на стенах.

В санузле — плитка с рисунком терраццо и краска терракотового цвета.

«Я люблю яркие ванные, это помогает быстрее проснуться, когда заходишь в такое помещение, но при этом не мозолит глаза, так как мы не находимся там постоянно (в гостиной или спальне с таким цветом жилось бы тяжелее)», — комментирует дизайнер.
Напольное покрытие в прихожей, кухне-гостиной, а также в гостевом санузле — керамогранит под дерево. На прилегающей к кухне лоджии — кварцвинил. Для ванной выбрали плитку с нейтральным геометрическим рисунком в серо-белых цветах, которая оттеняет яркие стены. Для пола в спальне — инженерную доску.

Мебель и системы хранения
В квартире две гардеробные. Одна — с доступом из коридора. Там хранится сезонная одежда и хозяйственные вещи, вроде пылесоса и швабры. В гардеробной при спальне — повседневная одежда хозяев. В прихожей встроен шкаф из ИКЕА, фасады которого покрашены в цвет стен. Кухонный гарнитур — тоже шведского бренда. Но верхние деревянные фасады сделали на заказ. А встроить мебель удалось, заранее рассчитав размер ниши.

В интерьере частично использовали винтажную отреставрированную мебель. В частности, тумбочки в спальне, тумба под телевизор и обеденные стулья. Новую подобрали так, что она отлично сочетается с этим легким настроением mid-century модерна.

Освещение
Основное освещение решено трековыми светильниками и встроенными точками. В спальне вместо них — плоский потолочный светильник. Дополнительные сценарии создают атмосферу. Это подвес над обеденным столом в кухне-гостиной, прикроватные бра в спальне и подвес над туалетным столиком там же, подвес рядом с зеркалом в ванной и подсветка зеркала в санузле. В прихожей ограничились только общим светом.


Дизайнер Анастасия Заркуа, автор проекта:
Хозяева изначально хотели яркую квартиру, а так как у меня много проектов сделано в такой стилистике, то сложностей не возникло. У меня есть уже отработанные цветовые сочетания, которые производят вау-эффект и не надоедают со временем, а поднимают настроение. Я люблю, например, делать прихожую или коридор в ярком цвете, это создает сильное впечатление, когда первый раз заходишь в квартиру, и не надоедает, потому что там не находишься постоянно. В основных комнатах выбраны более спокойные цвета, чтобы глаз мог отдохнуть, но при этом есть акцентные элементы, которые не делают интерьер однообразным. Что касается стиля, то хозяевам нравится моя манера исполнения скандинавского интерьера (я люблю делать не сине-серый сканди, а с яркими цветами), поэтому выбор стиля был очевиден.
30фото

Гостиная

Гостиная

Гостиная

Гостиная-кухня

Кухня

Кухня

Кухня

Кухня

Кухня

Кухня

Лоджия при кухне

Спальня

Спальня

Спальня

Спальня

Спальня

Спальня

Спальня

Спальня

Спальня

Ванная комната

Ванная комната

Ванная комната

Ванная комната

Ванная комната

Санузел

Санузел

Прихожая

Прихожая

Прихожая Редакция предупреждает, что в соответствии с Жилищным кодексом РФ требуется согласование проводимых переустройств и перепланировок.

Смотреть перепланировку