Дизайнер Евгения Костенко выделила кабинет как отдельную комнату, а также гардеробную. Планировка получилась удобной, а интерьер — стильным и уютным.
Заказчики и задачи
Владельцы этой квартиры в Москве — молодая семья айтишников. Главным пожеланием к дизайнеру Евгении Костенко было обустройство комфортной планировки — отдельного кабинета, изолированного от спальни и других комнат. Супруги работают по разным графикам, было важно уединение. По словам Евгении, хозяйка хотела квартиру в стиле современная классика с элементами ар-деко. Нравились светлые цвета, но было пожелание добавить яркие акценты. Все это автор проекта выполнила!

Перепланировка
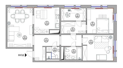
Согласно планировке от застройщика, в квартире было три комнаты. Кухня — по центру, что изначально удачно делило квартиру на общую и приватную части. Одна из комнат была вытянутой, с пятью (!) окнами. И это позволило разделить ее, чтобы организовать изолированную небольшую спальню, выделить гардеробную и кабинет. Кабинет и спальня получили естественное освещение, гардеробную же оставили без него. Она выступает транзитной зоной между коридором, спальней и кабинетом.

Также перепланировка коснулась кухни. Дверной проем, который застройщик предусмотрел из коридора, закрыли и сделали проход в кухню из гостиной. Такая логика пространства позволила организовать полноценную общую зону (практически объединенную кухню-гостиную), более правильно и удобно расположить кухонную мебель. В дальней от входа комнате запланировали детскую, которая пока выполняет функции гостевой.

Отделка
Краска на стенах, паркетная доска на полу, плитка в мокрых зонах — для проекта выбирали практичные и красивые материалы. Акцентами выступают молдинги на стенах, которые добавляют атмосферы стиля современной классики. В спальне на стене за кроватью использовали обои с рисунком птиц. «Птиц мы выбрали не в цвете золота, решили взять оттенок никеля, чтобы не так ярко выделялись. Фон обоев мы колеровали в цвет стен. Молдинги придают стенам дополнительный объем, появляется красивая игра светотени, это делает интерьер более парадным. Но за счет современной мебели квартира не выглядит помпезно», — комментирует Евгения.

В санузлах использовали классический прием комбинации плитки с краской. Ванная комната — в пастельных тонах. В санузле с душевой добавили тропической темы — одна из стен в душевой оформлена плиткой с рисунком.

Системы хранения
Кроме отдельной гардеробной, спланировали шкафы для вещей. Так, шкаф для верхней одежды есть с прихожей. В спальне ограничились комодом, чтобы не загромождать небольшое пространство. В гостиной — тумба под телевизор и витрина. На кухне, кроме стандартной техники и места для хранения кухонной утвари, разместили хозяйственный шкаф для пылесоса, гладильной доски, сушилки, там же хранится корм для кошки. В ванной комнате также предусмотрели шкаф для гигиенических принадлежностей.

Освещение
«Мы решили не подшивать потолки, чтобы сохранить высоту (а она и так была небольшой), и использовали выводы электрики, которые уже имелись от застройщика. Потолок подшивался только на кухне, в гардеробной и санузлах. Поэтому во всех больших комнатах мы повесили люстры, чтобы не добавлять выводы и не штробить потолок. В гостиной добавили подвесные светильники над обеденным столом для вечернего атмосферного света. В прихожей и коридоре висят накладные споты. В санузлах, на кухне и в гардеробной — встраиваемые светильники. В спальне для чтения поставили на тумбы прикроватные лампы», — рассказывает дизайнер.


Дизайнер Евгения Костенко, автор проекта:
Один из моих любимых приемов в сочетании цветов, который я часто использую в проектах, — это микс холодных и теплых оттенков. В этой квартире тоже без него не обошлось. Нежно-голубые и синие акценты, которые прослеживаются по всей квартире, разбавляют теплый монохром. Розоватый оттенок стен добавляет уюта в квартире. На кухне и в гостевом санузле я решила добавить мятный оттенок. Не очень люблю давать своим интерьерам стилистическую характеристику. Здесь задействовано много составляющих из разных стилей. Например, молдинги с такой раскладкой — это классика. Светильники — ар-деко, мебель — в стиле современная классика, Банкетка в прихожей с ножками-козликами — из скандинавского стиля, кухня больше уходит в минимализм. Ванные комнаты — смесь скандинавского стиля и современной классики. При этом все вместе выглядит гармонично и в то же время необычно за счет разных стилистических наслоений.
17 фото

Коридор

Гостиная

Гостиная-столовая

Столовая

Столовая

Кухня

Кухня

Спальня

Спальня

Гардеробная

Гардеробная

Прихожая

Прихожая

Прихожая

Ванная комната

Санузел

Санузел Редакция предупреждает, что в соответствии с Жилищным кодексом РФ требуется согласование проводимых переустройств и перепланировок.

Смотреть перепланировку

Анастасия Дубровина

Максим Максимов Эклектика Пастельные цвета