Заказчики поставили перед дизайнером задачу создать атмосферу фамильного дома в городской квартире, которая расположена в современном жилом комплексе. И ей удалось воплотить их пожелание.
Заказчики и задачи
Этой квартирой в московском ЖК «Зиларт» владеет молодая семья с ребенком. Их пожеланием было создать интерьер с историей, чтобы создавалось впечатление, будто в квартире жили несколько поколений. Для этого они обратились к дизайнеру Татьяне Ильиной-Сорокиной.

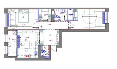
Планировка
Изначально квартира была двухкомнатной с достаточно большой кухней, балконом, отдельным санузлом и ванной комнатой, гардеробной. В планировку внесли незначительные изменения. Гардеробную расширили за счет одной из комнат. Перегородку между ванной и детской перестроили, чтобы организовать нишу. Фактически граница мокрой и жилой зоны не изменилась. Глухую перегородку с дверным проемом между кухней и коридором заменили, чтобы установить раздвижную дверь.

Функционально квартиру поделили на общую зону (кухня с функцией гостиной и балконом, гостевой санузел при входе) и приватную (спальня хозяев и детская, общая гардеробная и ванная комната). Зоны объединены большим холлом.
Отделка
Для отделки выбрали материалы, которые помогли создать атмосферу дома с историей. В первую очередь, плитка. В прихожей, гардеробной, на кухне и в санузле пол уложен плиткой, напоминающей метлахскую, на манер «ковра». Такая отделка с порога «заявляет» об определенной стилистике.

В столовой зоне на кухне, в спальне, детской — инженерная доска. На кухне, в прихожей, коридоре стены окрашены. В спальне хозяев краска скомбинирована с обоями с абстрактным рисунком в стиле английской классики.

В детской повторили тот же прием, но обои — с рисунком облаков, настраивающие на отдых.

Образ интерьера с историей поддерживают и высокие потолочные карнизы и плинтусы, а также двери с английской раскладкой. Та же раскладка повторяется в отделке мебели, но об этом дальше.
Гамма интерьера собрана по классическом принципу: нейтральный цвет в основе и яркие акценты. Здесь акцентом выступает не только цвет (например, желтые обои в спальне), но и геометрия плитки. Хотя и цвет в определенных зонах играет свою роль. А именно — в гостевом санузле, где светлая плитка скомбинирована с яркой желтой краской. Желтые оттенки «проходят» по квартире, но в этом помещении достигают апогея своей яркости.

Мебель и системы хранения
Кроме отдельной гардеробной, которую расширили в процессе перепланировки, дизайнер позаботилась о вместительном хранении в разных зонах.
Так, в большом квадратном холле установлены системы по двум противоположным стенам. П-образный шкаф включает в себя мини-диванчик. По сути, банкетку с мягкой тканевой настенной панелью. Сидение — важный элемент во входной зоне, и именно диванчик выполняет эту роль. Два симметричных шкафа стоят и у входа на кухню.

Кухонный гарнитур — П-образный в плане нижних шкафов, верхние сделали только по двум стенам, чтобы освободить одну для ТВ-экрана. Стилистика фасадов поддерживает двери и остальную мебель. Вытяжка является акцентным элементом — она выделяется более классической формой, а еще монограммой — первыми буквами имен хозяев (еще один своеобразный способ добавить историзма интерьеру в новостройке).

Кухня одновременно может выполнить и функцию гостиной. Здесь — мини-диванчик, собранный по тому же принципу, что и в прихожей — банкетка и стеновая панель. Над ним — полка для антикварных аксессуаров.

Балкон — полноценная жилая зона, здесь оборудовано место для отдыха со столиком, пуфами и раскладной кушеткой.

Есть и шкаф. По стилистике мебель — с восточными нотками. Резные фасады шкафа, форма стола, пуфов, узор на кушетке — все это напоминает именно об эстетике Востока.

В спальне отказались от шкафов, предусмотрев для хранения комоды.
В детской — вместительный встроенный шкаф и стеллажи для игрушек, мини-диванчик и место отдыха на широком подоконнике. Пока ребенок маленький, эти зоны отдыха предназначены для родителей.
Освещение
Еще один способ подчеркнуть историческую атмосферу — винтажные люстры, которые подобрали для проекта. Они скомбинированы с точечными светильниками. Но в детской, например, нашли свое место современные по стилю светильники — люстра и подвесы. В качестве дополнительных сценариев дизайнер активно использовала настенные бра.


Татьяна Ильина-Сорокина Дизайнер, автор проекта
Молодая семья с малышом хотела дом в широком смысле этого слова, — с традициями, будто переданный по наследству, фамильный. Так что задача была сложная — из суперсовременного жилья с новостройке сделать «пожившую квартиру». Поэтому появилась кухня с ярко выделенной классической вытяжкой и с вензелем инициалов хозяев, антикварные люстры и классическая спальня, английская решетка в дверях и мебели.
22 фото

Прихожая

Прихожая

Вид на кухню

Кухня

Кухня

Кухня

Кухня

Кухня

Кухня

Балкон

Балкон

Балкон

Балкон

Спальня

Спальня

Детская

Гостевой санузел

Гостевой санузел

Гостевой санузел

Ванная комната

Ванная комната

Гардеробная Редакция предупреждает, что в соответствии с Жилищным кодексом РФ требуется согласование проводимых переустройств и перепланировок.

Смотреть перепланировку

Анастасия Дубровина

Валентина Хребтова Эклектика Зеленый цвет Желтый цвет