Сочетание различных принтов, природных фактур и теплых оттенков помогли архитектору Елизавета Медведева воссоздать атмосферу старой московской квартиры
Кухня, FM Bottega. Двухстворчатая дверь сделана по эскизу архитектора в столярной мастерской «НВС».
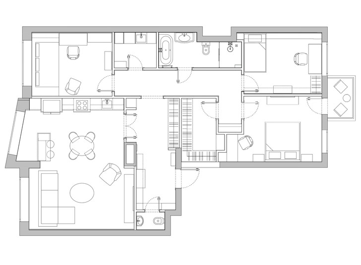
ПАРАМЕТРЫ ОБЪЕКТА
-
Тип недвижимости: квартира в новом доме
-
Где находится: ЖК «Счастье на Масловке»
-
Метраж: 133 м2
-
Стиль: современный с элементами классики
-
Основная идея проекта: создать теплого комфортного пространства, которое будет становиться еще уютнее с каждым годом
-
Цветовая гамма: натуральные оттенки
-
Авторы проекта: архитектор Елизавета Медведева

Полубарные стулья, Dantone Home.
Заказчики проекта — семейная пара с ребенком школьного возраста. Супруги приобрели две квартиры в своем любимом районе — рядом с Петровским парком, и обратились к архитектору Елизавете Медведевой с просьбой объединить их в одну. «Главным пожеланием семьи было создать вневременной интерьер, который не устареет, а будет становиться интереснее с каждым годом, наполняясь новыми предметами и деталями», — рассказывает автор проекта.

Зона гостиной. Диван и журнальный стол, Andrew Martin. Кресло, William Yeoward. Люстра, Visual Comfort.

Стол, винтаж. Люстра, Visual Comfort. Ваза-кашпо на столе и декор на острове, «Живые вещи».
Из двух квартир — одно- и двухкомнатной — получилось создать очень просторное и комфортное пространство. На 133 кв.м разместилась кухня-гостиная, кабинет, детская комната, мастер-спальня с гардеробной и два санузла.

Мастер-спальня. Шкаф сделан по эскизу архитектора в столярной мастерской «НВС».

Кровать, Dream Land. Ткань, de Le Cuona. Картина Ольги Шагиной, галерея Reloft. Люстра расписана вручную Екатериной Уткиной. Бра, Visual Comfort. Текстиль на кровати, Ateiler Tati.

Зона будуара выполнена из тонированного клена по эскизу архитектора в столярной мастерской «НВС». Кресло, Andrew Martin.
«В оформлении пространства мы отказались от сложносоставных приемов, вычурных решений, — продолжает архитектор. — Все по-хорошему просто и ясно. Это позволило создать ощущение настоящего семейного дома, открытого для гостей и приятного для жизни».

Детская комната. Корпусная мебель сделана по эскизу архитектора в столярной мастерской «НВС». Стул, BoConcept.

Кровать, Dream Land.
Цветовая гамма строится на сочетании спокойных бежевых, серых и коричневых оттенков, которые разбавляют тонкие вкрапления оранжевого и синего. Живости интерьеру придают принты и орнаменты с восточными нотами, а также выразительные фактуры дерева и кирпича.

Кабинет. Лежанка и полки сделаны по эскизу архитектора в столярной мастерской «НВС».

Прихожая. Гравюра, галерея Rariteca. Керамическая плитка, Winckelmans.
Несмотря на кажущуюся простоту, пространство наполнено необычными деталями. Например, главным украшением кухни стал раздвижной винтажный стол с резными ножками, за которым легко соберется вся семья. В спальне же все внимание привлекает люстра, расписанная вручную художницей Екатериной Уткиной.
«Мы уверены, что со временем интересных и ценных для хозяев предметов в доме будет становиться только больше, и они идеально впишутся в существующую обстановку».

Мебель сделана по эскизу архитектора в столярной мастерской «НВС». Раковина, Simas. Смесители, Nicolazzi. Ванна, BetteLux. Светильники, Visual Comfort.

Квартира 133 кв. м. в Москве. Проект Елизаветы Медведевой.