Воскресенье, 21 декабря, 2025

Квартира 65 м² в сталинском доме в Минске

Это интересно

Студия Zrobim architects создала современный лаконичный интерьер, в который органично вписались исторические детали

Скульптура Ольги Орсик. Бра, Aromas del Campo.

ПАРАМЕТРЫ ОБЪЕКТА

  • Типа недвижимости: квартира

  • Где находится: исторический центр Минска

  • Метраж: 65 м2

  • Стиль: мягкий минимализм

  • Основная идея проекта: гармоничное сочетание современного минималистичного дизайна и исторических элементов

  • Цветовая гамма: белый фон + бежевые и кофейные акценты

  • Авторы проекта: студия Zrobim architects, т. +7 (921) 723-55-00, www.zrobim.ru, info@zrobim.ru

Квартира 65 м² в сталинском доме в Минске

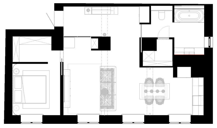
Квартира находится в самом центре Минска в сталинском доме с видом на площадь Победы. Главной задачей команды Zrobim architects создать современный минималистичный интерьер и в то же время подчеркнуть историческую значимость здания.

Квартира 65 м² в сталинском доме в Минске

Светильник, Menu Space.

Изначальная планировка квартиры типична для домов 1950-х — три комнаты-ячейки, маленькая кухня и длинный коридор. Стремясь сделать пространство более открытым, дизайнеры отдали большую часть площади под объединенную кухню-гостиную и организовали отдельную спальню со своим гардеробом.

Квартира 65 м² в сталинском доме в Минске

Диван, Mexo. Комод, Geometreefurniture. Журнальный столик, Moonlightroom.

Заказчики проекта, молодая пара, ведут активный образ жизни, редко бывают дома и почти не готовят. Поэтому кухню решили сделать максимально компактной. Холодильник замаскирован под белыми фасадами, а варочная панель спрятана в одном из выдвижных ящиков. «Такой прием позволяет значительно сэкономить площадь рабочей поверхности на кухне», — говорят дизайнеры.

Квартира 65 м² в сталинском доме в Минске

Квартира 65 м² в сталинском доме в Минске

«Еще одна особенность квартиры — раздвижные межкомнатные двери, которые несут не только эстетическую функцию, — продолжает команда. — У заказчиков есть кошка, и они хотели, чтобы она могла свободно перемещаться по квартире, а дверь-пенал идеально для этого подходит».

Квартира 65 м² в сталинском доме в Минске

Квартира 65 м² в сталинском доме в Минске

Душевая система, Bruma.

Из исторических деталей студия сохранила потолочные молдинги, радиаторы отопления и арочные окна. Последние во многом определили выбор мебели. Мягкие закругленные линии дивана, изголовья кровати, стульев и светильников поддерживают форму окон, делая интерьер целостным и завершенным.

Квартира 65 м² в сталинском доме в Минске

Квартира 65 м² в сталинском доме в Минске

Квартира в Минске. Проект Zrobim architects.

Новое на сайте

Мифы и правда. На что обращать внимание огородникам при выборе семян

Зима — время подумать о семенах. Ошибки...

Похожие статьи

Если вы хотите получать уведомления на свой E-mail о появлении новых статей, то рекомендуем вам чуть ниже ввести свой электронный почтовый адрес.