Среда, 21 января, 2026

Квартира 82 м² в светлых тонах в Пушкине

Это интересно

Интерьер как фон для жизни — такой концепции придерживались дизайнеры Полина Афонская и Елена Трофимова, разрабатывая проект квартиры в Пушкине

Гостиная. На консоли — объекты, Tokeramika. Ковер, Kover.ru. Светильник, Flos. Стол, BoConcept. Стулья, винтаж, Дания, 1960-е. Придиванный столик, Eburet Studio. Ваза, дизайн Тимо Сарпанева, начало 1990-х.

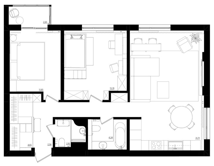
ПАРАМЕТРЫ ОБЪЕКТА

  • Тип недвижимости: квартира в новостройке

  • Где находится: Пушкин, ЖК «Инкери»

  • Метраж: 82 м2

  • Стиль: современный

  • Основная идея проекта: интерьер как фон для жизни

  • Цветовая гамма: оттенки серого, белого, бежевого в сочетании с графическими линиями

  • Авторы проекта: дизайнеры Полина Афонская и Елена Трофимова, студия PolinaAfonskaya & ElenaTrofimova, @architect_polina_afonskaya, @architect_elena_trofimova

Квартира 82 м² в светлых тонах в Пушкине

Над диваном — работа Алыниной Олеси «Купальщица».

«Эта квартира предназначалась для семьи из четырех человек: муж, жена и две дочки. Заказчики хотели создать чистый лаконичный интерьер, который должен был служить „фоном для жизни“. Они были не готовы жертвовать какими-то функциональными моментам в пользу эстетики, нужно было все и сразу и на относительно небольшой площади», — рассказывают авторы проекта.

Квартира 82 м² в светлых тонах в Пушкине

«За счет грамотного планирования нам удалось разместить все функциональные зоны, необходимые для комфортной жизни, а благодаря продуманному дизайну — создать ощущение простора при общей площади квартиры всего 82 кв.м. и чистовой высоте потолков 2,6 м».

Квартира 82 м² в светлых тонах в Пушкине

Вазы, lineandforma_ceramics и Tokeramika. Шахматы, Shatolepno.

Квартира 82 м² в светлых тонах в Пушкине

Кресло Remmi, винтаж, дизайн Yrjö Kukkapuro. Лампа с керамическим основанием, Shatolepno.

«Нашей целью было максимально расширить границы пространства и приподнять потолок. В этом нам помогли зеркала и закарнизная подсветка — одни из наших любимых приемов. Также нам нравится использовать нетрадиционные отделочные материалы. Например, полы в санузлах, грязных зонах и на кухне были отделаны микроцементом. Поскольку мы не нашли необходимые оттенки в существующих палитрах, цвет микроцемента и штукатурки был изготовлен индивидуально под наш проект. Помимо этого, нам разработали инженерную доску, которая укладывалась французской елкой и была соразмерна ширине коридора».

Квартира 82 м² в светлых тонах в Пушкине

на обеденном столе — подсвечники и бокалы YaDoma. Ваза, дизайн Тимо Сарпанева, начало 1970-х.

«Несмотря на небольшую площадь, для гостиной мы выбрали объемную мебель. Благодаря этому пространство не выглядит захламленным, а наоборот остается чистым. В кухне мы уделили особое внимание планированию систем хранения и рабочей зоны. Для детской наша студия спроектировала двухъярусную кровать в виде домика — это было главным пожеланием старшей дочери».

Квартира 82 м² в светлых тонах в Пушкине

Детская комната. Ковер, Kover.ru. Шахматы выполнены на заказ Яникой Кяхр. Стулья, Ethnicraft.

Квартира 82 м² в светлых тонах в Пушкине

Полосатые подушки выполнены на заказ Яникой Кяхр.

Квартира 82 м² в светлых тонах в Пушкине

Белая ваза, YaDoma. Черно-белая ваза, Arete Ceramics. Розовая ваза, Ceramics by Diana Krivenko.

«Спальня отличается чистотой линий. Почти все пространство занимает широкая двуспальная кровать. За изголовьем расположилось большое зеркало, благодаря которому комната кажется больше и светлее. Санузлы также получились довольно лаконичными. В главной ванной с помощью диодной подсветки нам удалось добиться эффекта парящей тумбы».

Квартира 82 м² в светлых тонах в Пушкине

Панно «Дыши любовью» выполнено вручную хозяйкой квартиры. Декоративная подушка выполнена на заказ Яникой Кяхр. Постельное белье, Lovely Home. Подвесной светильник, Axolight.

Квартира 82 м² в светлых тонах в Пушкине

На тумбе арт-объект, Tokeramika. Светильник-бык, Karman.

«С особым трепетом мы выбирали винтажные предметы и декор. Облик интерьера завершают датские стулья и финское кресло 1960-х годов, французские бокалы и подсвечники, а также работы петербургских керамистов и художников, одна из картин даже была написана на заказ».

Квартира 82 м² в светлых тонах в Пушкине

Декор и ваза, YaDoma.

Квартира 82 м² в светлых тонах в Пушкине

Квартира в Пушкине. Проект PolinaAfonskaya & ElenaTrofimova.

Новое на сайте

Названы районы Москвы с подешевевшей в 2025 году арендой жилья

За год долгосрочная аренда жилья подешевела в семи районах Старой Москвы. Наибольший годовой спад пришелся на Марьину Рощу ...

Похожие статьи

Если вы хотите получать уведомления на свой E-mail о появлении новых статей, то рекомендуем вам чуть ниже ввести свой электронный почтовый адрес.