Дизайнер Елена Сидорина построила интерьер на контрастах между темным и светлым. Баланс помогает поддерживать великолепный вид из окна
Диван, Bo Concept. Журнальный стол, Tok. Подушки enere.it. Подвесная тумба сделана на заказ в столярной мастерской Did.
ОБЩИЕ ПАРАМЕТРЫ
Тип недвижимости: квартира
Где находится: Москва, ЖК «Матч Поинт»
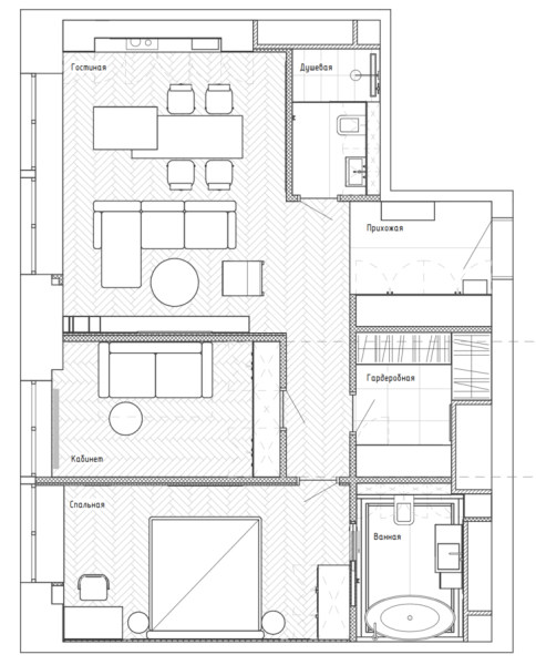
Метраж: 80 кв.м
Стиль: современный
Основная идея проекта: комфортный интерьер для городской жизни
Цветовая гамма: монохромная, с добавлением зеленого оттенка
Автор проекта: дизайнер Елена Сидорина, www.esinterior.ru, elena@esinterior.ru, т. +7 (951) 683-21-63

Кухня объединена с гостиной. Их разделяеткухонный остров, плавно переходящий в обеденный стол с деревянной столешницей и прозрачными ножками из стекла.
Заказчики, молодая пара, с нежностью вспоминают Нью-Йорк, квартиру в Москве выбирали с тем расчетом, чтобы вид из окна напоминал им о городе, который никогда не спит. Эти впечатления отразились и в интерьере: он построен на контрасте светлого и темного, как многие нью-йоркские квартиры.
«Клиенты хотели темную кухню в потолок, а также же остров и обеденный стол. Так как площадь была ограничена, мы соединили их в один элемент», — вспоминает автор проекта, дизайнер Елена Сидорина.

Кухня-гостиная, фрагмент.
«В этом проекте для меня было важно доверие заказчиков»

Зона гостиной. Диван, Bo Concept. Кресло, Calixta. Журнальный стол, Tok. Ваза, GK Concept. Краска на стенах, Little Greenе.

Зона гостиной. Диван, Bo Concept. Консоль, Ferm Living. Ваза, Manner & Matter. На стене — картина Марии Будущих. Краска на стенах, Little Greene.
Кроме кухни-гостиной и спальни, заказчикам требовался отдельный кабинет, который в будущем можно будет без особых затрат превратить в детскую, а также гардеробная и два санузла. Елена Сидорина традиционно разделила квартиру на две части, общую и приватную. Общая зона открывается глазу сразу же за порогом, приватная располагается по левую руку и скрыта от посторонних глаз.

Вид из гостиной на прихожую.

Кухонный остров переходит в обеденный стол. Стулья, Unika Moblar. Подвесной светильник, Estiluz. Вазы,
Самый интересный элемент кухни-гостиной — остров на кухне, который переходит в обеденный стол с опорой из стекла. Вся конструкция выглядит легко и архитектурно. Но центр притяжения здесь — не предметы, а панорамный вид на Москву. Чтобы акцентировать на нем внимание, дизайнер сделала длинную посадочную зону на подоконнике. Штор на окнах нет — только жалюзи, рассеивающие свет.

Кухня-гостиная, фрагмент. Штор на окнах нет — только жалюзи, которые не закрывают вид на Москву.
Две разных по функционалу части кухни-гостиной дизайнер объединила при помощи декоративных приемов: так, стена за ТВ-консолью частично отделана керамогранитом под мрамор, который использован и для оформления кухонного фартука. Каннелюры на дверцах подвесных кухонных шкафов поддержаны рельефом ТВ-консоли.

Кухня-гостиная, фрагмент. Кухня, Orange Park.
В спальне стена за изголовьем кровати выделена элегантным зеленым оттенком, ассиметричные светильники Aromas del Campo добавляют нотку кокетства, зона с рабочим столом выделена графитовым цветом. Рядом с окном в нише расположен стеллаж для книг и по аналогии с гостиной возле окна обустроена мягкая зона отдыха, чтоб осенними вечерами читать с видом на город.

Спальня. Кровать, Рartisan. Прикроватные тумбы, Bo Concept. Светильники, Aromas del Campo. Постельное белье, Tkano. Подушки, enere.it.

Спальня, фрагмент. Зона сна отделена от туалетного столика, который может также служить и рабочим столом, с помощью цвета.
В прихожей две стены выкрасили в приглушенный зеленый оттенок и таким образом визуально отделили входную зону от гостиной. Большое зеркало расширяет пространство, а консоль на его фоне становится невесомой.

Прихожая. Консоль, Shantay. Плитка, Imola Ceramica. На консоли вазы Анны Жуковой.
Цветовая гамма интерьера складывалась исходя из пожеланий заказчиков, но когда они однажды пришли на стройку со своим четвероногим питомцем, дизайнер поняла, что его интересы тоже были учтены. Французский бульдог шоколадного окраса идеально смотрелся во всех помещениях!

Прихожая, фрагмент. Табурет, Bold Big-Game.

Ванная комната при спальне, фрагмент. Подвесная тумба сделана на заказ в столярной мастерской Did. Бра, Lind Aromas. Ванна, Salini. Ваза Анны Жуковой. Плитка, Imola Ceramica.

Санузел при входе в квартиру.

Квартира 80 кв. м. в Москве. Проект Елены Сидориной.