Архитекторы Даниил Вяземский и Азалия Мифтахова создали уютный интерьер, сделав акцент на простых геометрических формах и природных текстурах
Гостиная. Диван, SK Design. Шторы, Création Baumann. Ковер, Kover.ru. Плед, Kristina Dam Studio. Паркет, Oscowood. Краска, Benjamin Moore.
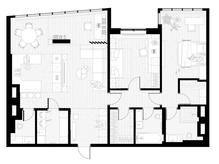
ПАРМЕТРЫ ОБЪЕКТА
-
Тип недвижимости: квартира в доме начала 2000-х годов
-
Где находится: Санкт-Петербург, Приморский пр.
-
Метраж: 106 м2
-
Стиль: минимализм
-
Основная идея проекта: создать интерьер, в котором главным акцентом станет вид на залив
-
Цветовая гамма: сдержанная
-
Авторы проекта: архитекторы Даниил Вяземский и Азалия Мифтахова, View Studio, info@view.studio.

Столики, Signal. Картины Владимира Макеева. Вазы, Guaxs, салон «Предметы». Декоративная подушка, Form & Refine.
«Квартира с панорамными окнами находится на берегу Финского залива. Ее владельцы, молодая пара, хотели создать интерьер без ярких цветов и акцентов, чтобы ничто не отвлекало от захватывающего вида, — рассказывают авторы проекта. — Также заказчики планируют завести ребенка, поэтому одним из пожеланий было организовать детскую комнату. Мы легко нашли общий язык — почти все предложенные решения были согласованы с первого раза».

Кресло, DG Home. Корпусная мебель изготовлена на заказ, perov-design.ru. Настольная лампа, Muuto, салон «Предметы». Вазы, 101 Copenhagen, Laboratory Dome.
«Объект представлял собой две квартиры по 50 кв.м, которые объединили еще на этапе строительства дома. Это позволило четко разделить пространство на две зоны: в левой части квартиры расположились все гостевые помещения, а в правой — приватные. Все санузлы, прихожая и хозяйственные комнаты выстроены в линейку вдоль противоположной окнам несущей стены».

Стол, SK Design. Стулья, La Forma. Графика Владимира Макеева. Декоративные статуэтки, Warm Nordic, Laboratory Dome. Подсвечник, Tonfisk, Laboratory Dome. Ваза, Guaxs, салон «Предметы». Подвесной светильник, Deltalight.

Кухня выполнена на заказ, perov-design.ru.
«Интерьер построен на сочетании простых геометрических объемов, внутри которых располагаются функциональные зоны. Блок прихожей, туалетной комнаты и постирочной объединены фасадами из рельефных панелей пепельного оттенка. Зона кабинета ограничивают перегородки из дубового шпона. Потолок на ним вмещает систему кондиционирования со скрытыми щелевыми решетками. В спальне мы использовали похожий прием: деревянными панелями отделан куб, в котором разместилась гардеробная и система кондиционирования. Рабочее пространство кухни выделено светлым кварцевым агломератом и терраццо. Все ванные комнаты — сочетание пепельно-розового керамогранита и натурального шпона».


Мебель и стеновые панели выполнены на заказ, perov-design.ru. Терраццо выполнено на заказ, terrazzo_friuli.

«Освещение, сантехника, предметы мебели и декора подобраны черных или белых оттенков, выделяющихся на общем фоне. Черные тонкие зигзаги трековых светильников на потолке, простые формы подвесов и зеркал придают графичности интерьеру и разбавляют монотонность цветовой гаммы».

Картина Яна Михеева. Кресло, Muuto. Настольная лампа, Astep, Laboratory Dome. Корпусная мебель изготовлена на заказ, perov-design.ru. Игрушки Zuny, салон «Предметы».

Подвесные светильники, LED Monster. Скульптура, Gardeco. Кресло, La Forma.

Вазы, Muuto. Подвесной светильник, Deltalight. Смеситель, Hansgrohe. Санфаянс, Duravit. Корпусная мебель изготовлена на заказ, perov-design.ru. Плитка, Porcelanosa.
«Чтобы интерьер был максимально удобным, мы старались продумать каждую деталь. Квартира выходит на юг, поэтому мы декорировали окна шторами с плетением из алюминия, которые отражают тепло. Двери в мастер-ванную и спальню выполнены из матового стекла, что помогло создать равномерное освещение во всех помещениях. Мы не забыли и про домашних питомцев: кошачий туалет спрятан в тумбу под раковиной, а в постирочной предусмотрена лапомойка».

Полотенцесушитель, «Сунержа». Корпусная мебель изготовлена на заказ, perov-design.ru.

Квартира 106 м² в Санкт-Петербурге. Проект Даниила Вяземского и Азалии Мифтаховой.