Дизайнер Анна Луцкевич рассказывает, как создать оазис тишины и покоя в мегаполисе
Поворотная перегородка отделяет зону спальни от зоны гостиной и кухни. Рейки можно установить в положении, перекрывающем солнечные лучи, которые мешают сну. Этот прием позволил отказаться от штор на окнах и открыть вид на панораму города.

Автор проекта дизайнер Анна Луцкевич.
ОБЩИЕ ПАРАМЕТРЫ
Тип недвижимости: квартира в новостройке
Где находится: г. Санкт-Петербург, ЖК GreenCity
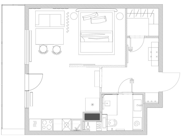
Метраж: 35 м2
Стиль: современный
Основная идея проекта: соединить природную цветовую гамму со строгой геометрией
Цветовая гамма: оттенки малахитового зеленого, каменисто-серого и ореха
Автор проекта: дизайнер Анна Луцкевич, annalou.design@gmail.com
«Это квартира — островок спокойствия, где можно отдохнуть после стрессов рабочего дня»

Вид из зоны столовой и гостиной на зону спальни. Обеденный стол — собственность заказчика. Перегородка выполнена по эскизам дизайнера на столярном производстве Offer Story.
Это квартира, которую заказчик хотел видеть островком спокойствия среди шумного мегаполиса, где можно было бы отдохнуть после стрессов рабочего дня. Во многом этим обусловлена цветовая гамма и выбор текстур проекта — глубокий малахитовый цвет как основной фоновый, каменисто-серый как нейтральный компаньон и деревянные акценты.
С этим клиентом я работаю уже над вторым проектом, и когда он попросил сделать интерьер с тем же оттенком зеленого, что и в первый раз, я слегка призадумалась. Была опасность самокопирования и самоповторов, но в итоге по атмосфере и своим проектным решениям интерьер получился совершенно другим.

Кухня, фрагмент. Кухонная мебель выполнена по эскизам дизайнера на столярном производстве Offer Story.
Естественное освещение в этом интерьере — крайне важный фактор. Квартира по всей ширине имеет балкон с панорамным остеклением. Чтобы «впустить» как можно больше естественного света, окна заменили, вместо трехстворчатой рамы проем заполнился цельным большим стеклом. Теперь панораму города можно наблюдать, не вставая с дивана в гостиной.

Так как в квартире есть отдельная гардеробная, интерьер не перегружен объемными шкафами, стеллажами и комодами. Большие окна, открывающие вид на город, визуально расширяют пространство.
Текстиль для кровати был выбран буквально с первой примерки и мгновенно согласован с заказчиком. Но визуальная доминанта здесь вовсе не кровать с деликатной формой «ушек», лишь слегка обозначенных закруглением торцов изголовья, а зеркальная линза ручной работы. Отражение интерьера и глянцевый блик поддерживают «природную» концепцию проекта, ассоциируясь с рябью на поверхности озера или с жидким, расплавленным металлом.

Изюминкой спальной зоны стало декоративное зеркало-линза Oculus ручной работы, Decora Glass. Кровать, Perrino.

Прихожая, фрагмент. Консоль, Principle. На консоли работа Дмитрия Бойцова «Разоблачение монарха».
В прихожей поставили большое напольное зеркало, выполненное по моим эскизам на столярном производстве. Расстояние между зеркальным полотном и внешней рамой рассчитано так, что ни с одного угла обзора не просматривается источник декоративной подсветки.

Прихожая. Мебельный модуль выполнен по эскизам дизайнера на столярном производстве Offer Story. Консоль, Principle. На консоли работа Дмитрия Бойцова «Разоблачение монарха».
В санузле большое зеркало — мой излюбленный прием — расширяет помещение и дает дополнительное функциональное освещение. Свет здесь не только общий верхний, но и навигационный — для ночного времени. В конструкции короба инсталляции есть ниша с доступом из душевой зоны, что позволяет освободить стены внутри душа от выступающих полок.

Санузел. Мебель выполнена по эскизам дизайнера на столярном производстве Offer Story.

В санузле ванну заменили на душ, пол которого выложен мраморной мозаикой, что создает приятные тактильные ощущения для стоп.

Квартира 35 кв. м в Санкт-Петербурге. Проект Анны Луцкевич.Татьяна Филиппова