Архитектор-дизайнер Анна Римс оформила интерьер небольшой квартиры в скандинавском стиле с элементами средиземноморского. Он не только заряжает бодростью, но и удивляет своей функциональностью: рационально использован каждый сантиметр
ПАРАМЕТРЫ ОБЪЕКТА
-
Тип недвижимости: квартира в блочном доме 1973 года
-
Где находится: улица Врубеля, д. 13
-
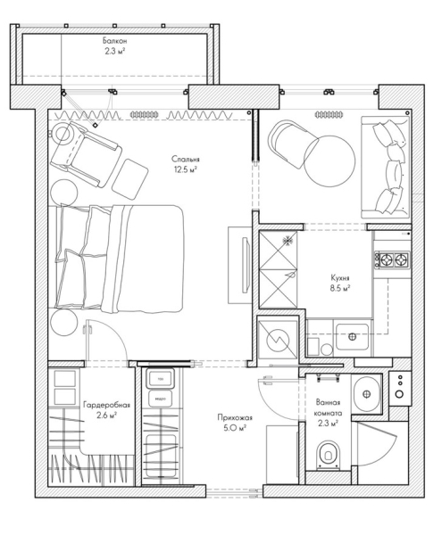
Метраж: 32,4 м2
-
Стиль: скандинавский с элементами средиземноморского
-
Основная идея проекта: создать функциональный интерьер и сохранить ощущение воздушности и атмосферы юга Франции
-
Цветовая гамма: яркие открытые тона — сине-зеленые, желтые и розовые — на светлом нейтральном фоне
-
Авторы проекта: дизайнер Анна Римс, т. +79295202838, annarimss.design@gmail.com, www.annarimss.design, @annarimss.design
Хозяйка квартиры, молодая девушка, фармацевт, часто уезжает в длительные командировки в Европу. Поэтому со стилистикой долго определяться не пришлось: это должна была быть светлая, уютная квартира в европейском стиле (преимущественно скандинавском с элементами средиземноморского). У хозяйки было четкое видение интерьера: в нем обязательно должна быть комфортная зона отдыха «не диванного типа» (кровать, кресло или пуф) и ниша с небольшой обеденной зоной в кухне. Одним из пожеланий было функциональное размещение мест для хранения верхней и повседневной одежды, бытовых вещей, а так же стиральной и сушильной машин и гладильной доски. Интерьер заказчица попросила не перегружать деталями, использовать небольшие яркие элементы и создать ощущение чистоты и легкости.

Обои, Domestic Jardin gris. Стул деревянный, Zara home.
Столовая зона с диваном, обеденным столом и стулом отделена простенками от зоны готовки так, чтобы создавалось приватное пространство в каждой из зон. Благодаря такому зонированию удалось «спрятать» газовую трубу. Она доступна рядом с плитой и не нарушает эстетического восприятия комнаты.

Кухня расположена в торце помещения. Вход в нее осуществляется через комнату, в которой предусмотрена раздвижная дверь с плотным притвором, что соответствует необходимым требованиям для газифицированных кухонь. Встроенный холодильник, микроволновая печь, посудомоечная машина и места для хранения скрыты во вместительных шкафах до потолка. Рабочее пространство кухни, напротив, выстроилось Г-образно.

Кухня со столешницей, ИКЕА.
В колонну помещены духовой шкаф и посудомоечная машина. В нише расположились декоративные колбочки для живой зелени или цветов.

Декоративные колбочки, Svazoy. Плитка на фартуке, Statuario Lux.
В прихожей, слева от в входной двери, разместили встроенный шкаф для верхней одежды с отсеком для хранения бытовых вещей. Напротив шкафа находится совмещенный санузел, а между входом в комнату и санузлом спрятался в нише технический шкаф. Там расположены стиральная машина с функцией сушки, а так же место для хранения бытовых предметов. Из комнаты можно пройти в гардеробную с повседневной одеждой.

«Планировочное решение этой квартиры — отсутствие перегруженности при сохраненной необходимой функциональности»

Кровать и кресло, Dantone Home. Торшер и арочный органайзер, L’appartement. Постер над кроватью, Pastоre. Фото-работа над креслом Lady in the wind, Serge Ramelli, галерея Yellow Korner Gallery.

Ковер, Dovlet House.
Невероятно тактильная, узорчатая, яркая цементная плитка из Ирландии в прихожей задала настроение всему интерьеру. Ее задор подхватили цветочные обои французского бренда на кухне. Их крупный флористический орнамент напоминает роспись.



В ванной комнате расположена душевая, раковина, и унитаз с гигиеническим душем. Тумба и раковина, ИКЕА. Сантехника, Hansgrohe. Поддон душевой, Radawey. Плитка на стенах, Old Style.
«Я создала единый светлый фон в этом интерьер и добилась минимального дробления пространства по материалам и декору, — рассказывает автор проекта Анна Римс. — Полы решены максимально в одном материале: пол из прихожей „перетекает“ в ванную. Стык потолка и стен решен через галтель большого радиуса, благодаря чему визуально стирается граница между потолком и стеной. Потолок кажется выше, хотя физически его высота — 2,4 м».

Квартира в Москве. Проект Анны Римс.Екатерина Собко