Мансарду трехэтажного дома, построенного в позапрошлом веке, дизайнер Любовь Уткина превратила в современную квартиру со спальней на антресолях и сауной при ванной комнате
Кухня-гостиная, фрагмент. Диван, SK Design. ТВ -тумба, рейки, шкафы и стеллажи сделаны в частной столярной мастерской из термически обработанного ясеня, запах которого распространяется на всю квартиру.
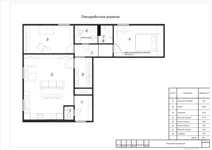
ОБЩИЕ ПАРАМЕТРЫ
Тип недвижимости: квартира в мансарде доме XIX века.
Где находится: Петергоф
Метраж: 84 м2
Стиль: эклектика с элементами rustic
Основная идея проекта: безмятежная обитель для вернувшейся из эмиграции семейной пары
Цветовая гамма: цвет морской волны, серый, оливковый, припыленный розовый.
Автор проекта: дизайнер Любовь Уткина, utkina-lyubov@yandex.ru
Когда речь идет о мансарде, мы представляем себе Париж, бульвары, османские дома, печные трубы и квартиры с каминами если не во всех комнатах, то по крайней мере в гостиной. Но бывают и другие варианты — мансарда, которую вы видите на этих снимках, находится в Петергофе, в одном из домов девятнадцатого века, полностью реконструированных и приспособленных к современной жизни.


Гостиная, фрагмент. Кожаный диван, Divanger. Подвесные светильники, Globo. Картина на стене написана Любовью Уткиной.
Камина в этой квартире нет, но есть мансардные окна и высокие потолки, которые позволили выстроить в центральной части антресоль, чтобы поднять на нее детскую спальню. Как говорится, раскроем карты: владельцы квартиры ждут внуков, и спальню для них готовят заранее.

Гостиная, фрагмент.

Гостиная, фрагмент.
Заказчики познакомились с дизайнером Любовью Уткиной через общих знакомых. Увидели фотографии одного из ее проектов и захотели встретиться с ней лично. В тот момент они уже подумывали о возвращении в Россию из эмиграции и искали место, в котором можно будет приземлиться.

Кухня-гостиная.

Витраж над дверью.

Прихожая получилась светлой и «дышащей». Во многом это впечатление создается за счет витража и дверному проему, оставленному между кухней-гостиной.
Квартира, расположенная на четвертом, мансардном этаже трехэтажного дома второй половины XIX века — эпохи, когда бум строительства доходных домов дошел до Петергофа, — показалась им наиболее подходящей для создания семейного гнезда.
Мансарда — сложное пространство. При первом осмотре дизайнер отметила скошенную крышу и резкий перепад высот. Высота потолка менялась от трех с половиной до полутора метров. Эти перепады высот дизайнер обыграла: кухню расположила под мансардным окном, которое наполняет рабочее пространство естественным светом, а высокий и узкий коридор превратила в гардеробную.

Кухня-столовая, фрагмент.
Квартира нестандартная — именно этим она и привлекла ее нынешних хозяев. У нее автономная система отопления, включающая газовый котел и колонку, и все это оборудование дизайнеру пришлось прятать. Газовую колонку, которая находится в кухне, надо было подвинуть, чтобы поместить в колонну.

Кухня находится под мансардным окном, через которое в помещение попадает дневной свет.
Заказчики долгое время жили в Великобритании, их вкусы и привычки сформировались на британской земле, и свою квартиру в России они хотели видеть похожей на привычные им лондонские квартиры. Дизайнера они просили использовать в интерьере как можно больше натурального дерева, поэтому большая часть гостиной обшита ароматным термоясенем, который сглаживает углы мансарды и создает в комнате теплую, уютную атмосферу. Натуральное дерево используется и в других комнатах, например, в детской, где из него сделан стол, стеллаж и чердачная кровать.

Спальня с детской зоной на антресоли. Стул, La Forma. Стол, стеллаж, ограждение чердачной кровати сделано в частной столярной мастерской «Коврик». Аксессуары, MDHome, La forma, ИКЕА.

Чердачная кровать для младшего поколения семьи. Текстиль, «МоеМоре» и Warm Whill.

Спальня, фрагмент. У окна расположено рабочее место.

Спальня, фрагмент.
Заказчики долгое время жили в Великобритании, их вкусы и привычки сформировались на британской земле, и свою квартиру в России они хотели видеть похожей на привычные им лондонские квартиры. Дизайнера они просили использовать в интерьере как можно больше натурального дерева, поэтому большая часть гостиной обшита ароматным термоясенем, который сглаживает углы мансарды и создает в комнате очень теплую. уютную атмосферу.
1/2
Большая спальня. Кровать хозяев дома находится справа от рабочего стола.
Организовать хранение в мансарде, с одной стороны, сложно, с другой, — просто. Просто, потому что шкафы для одежды обычно встраивают под скосами крыши, в самых низких частях комнат. Сложно, поскольку такой вариант хранения не всегда удобен тем, кто живет в квартире. Не очень хочется все время нагибаться, чтобы достать из шкафа чистую рубашку. В этой квартире гардеробная устроена в самой высокой части. Она проходная, связывает между собой гостиную и спальню. Дополнением служат встроенные шкафы в большой и малой спальнях.

Малая спальня. Диван. Geteborg. Столик, Glasar. Кресло, Monofix. Торшер, De Markt. Ковер, Kover.ru.

Малая спальня, фрагмент.

Малая спальня, фрагмент.
Над небольшим подсобным помещением, которое в ходе ремонта превратилось в сауну, решили сделать чердачную кровать для внуков, которых хозяева квартиры ждут с нетерпением. Сейчас они живут на две страны и два дома, но собираются больше времени проводить в России, в своей новой квартире, которая им очень нравится. В том числе и тем, что очень похожа на их английский дом.

Коридор. По лестнице дети могут подняться на чердачную кровать.

В квартире есть сауна — большая роскошь для жителей мегаполисов. Печь, Tulikivi. Декор, Yamazaki.

Прихожая.

Ванная комната, фрагмент.

Ванная комната, фрагмент.
