Этот дом Наталья и Сергей Круц проектировали как временное жилье для себя в процессе строительства мини-поселка, которым занимается их студия. Получилось комфортное пространство — своеобразный аналог квартиры, только на земле.
Архитектор Наталья Круц и Сергей Круц силами своей студии занимаются возведением домов и объединяют их в мини-поселки. Этот домик они построили для себя, чтобы было комфортно контролировать процесс стройки на площадке. В дальнейшем планируют его продать.
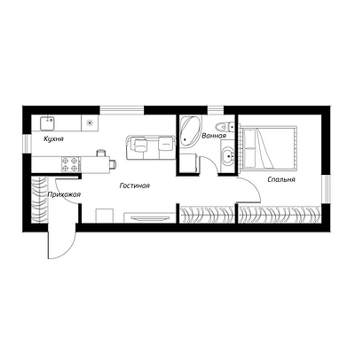
Планировка
По сути, дом представляет собой аналог однокомнатной квартиры (или евродвушки, как принято называть сегодня такие планировки) — объединенная кухня-гостиная и изолированная спальня. Помещения последовательно переходят друг в друга: у входа — прихожая, далее кухня-гостиная с кухонной зоной, вписанной в своеобразную нишу так, что ее не видно от входа, еще дальше — ванная, и потом можно попасть в спальню.

Отделка
Для оформления помещений, по словам авторов проекта, они по максимуму использовали отечественные отделочные материалы. Стены выровнены гипсоволоконными листами и покрыты декоративной штукатуркой. Часть стен отделана деревом (имитация бруса) и покрыта водоэмульсионной краской. Для потолков выбрали натяжные полотна, украсив их деревянными балками там, где высота это позволяет. На полу — керамогранит и ламинат.

Интересно, что даже в санузле авторы проекта решили отказаться от плитки. «Стены обшиты деревом и листами ГВЛ с нанесенной декоративной штукатуркой — материалы прекрасно себя показали во «влажной» зоне», — делятся Наталья и Сергей.

Системы хранения
Несмотря на то, что для семьи этот дом планировался как временный, они продумали достаточно хранения. Это комоды и шкаф в спальне, шкаф-купе в прихожей, открытые стеллажи и тумба под телевизор в гостиной, стеллажи в нише коридора, ведущего в спальню. В спальне и на кухне спланированы антресоли, которые отнимают часть высоты потолка, зато там разместились чемоданы и все сезонные вещи.

Кухонный гарнитур разделен на две части — они установлены параллельно друг другу. Места хватает для хранения необходимой посуды, здесь встроена полноразмерная духовка и установлена варочная панель на 4 конфорки, есть посудомойка и даже измельчитель отходов. Отдельно стоящий холодильник стал акцентным элементом и своим цветом перекликается с декором гостиной зоны.

Освещение
«Любимая часть проекта — планирование освещения», — признаются авторы .
Освещение спроектировано по разным сценариям. Это и точечный свет в зоне гостиной и кухни, и подвесы над барной стойкой и диваном, и бра рядом с кроватью.


Наталья и Сергей Круц, авторы проекта:
Этот дом проектировался под дальнейшую продажу, для нас он временный. Мы старались создать интерьер-обрамление, готовый принять почти любой декор, любой текстиль. Нам кажется, эту задачу мы решили.
6фото

Входная дверь

Входная дверь

Прихожая

Гостиная

Гостиная

Спальня
Редакция предупреждает, что в соответствии с Жилищным кодексом РФ требуется согласование проводимых переустройств и перепланировок.

Смотреть перепланировку

Анастасия Дубровина

Дмитрий Карпов Лофт