От сталинки до новостройки — рассматриваем примеры готовых планировок двушек в разных типах домов. Разбираемся, какие изменения можно и нельзя вносить в исходный план квартиры.
Двушка — универсальное жилье, которое подходит и одному человеку, и паре, и семье с ребенком. Размер и конфигурация зависят от типа дома. В этой статье рассмотрим все особенности планировки двухкомнатной квартиры: в панельном и нетиповом доме, в сталинке, хрущевке или новостройке. Покажем готовые варианты и расскажем об особенностях каждого.
Планировка и дизайн двухкомнатной квартиры
Что можно и нельзя делать
Варианты планировок
— Вторичное жилье
— Новостройки
Что можно и нельзя делать
Жилищный кодекс определяет перепланировку как изменение изначального плана жилища, его конфигурации. Некоторые манипуляции не требуют согласования, другие нужно узаконить, а какие-то — категорически запрещены.
Закон разрешает:
- Объединить ванную и туалет.
- Расширить комнату или санузел за счет площади коридора.
- Перенести вход в помещение или сделать новый проход в ненесущей стене.
- Увеличить или уменьшить количество жилых комнат.
- Возвести легкие перегородки или стены.
- Заменить коммуникации или поменять расстановку сантехники в санузле.
Закон запрещает:
- Любые манипуляции с несущими стенами.
- Перенос мокрых зон (за редкими исключениями — например, если жилье находится на первом этаже и под ним нет квартир).
- Объединение газифицированной кухни с гостиной без раздвижной перегородки.
- Самостоятельный перенос газового оборудования.
- Манипуляции с вентиляционными и техническими коробами.
15 фото

Дизайн: Лидия Напреенко. Фото: Максим Канакин. Стиль: Екатерина Лаптева

Дизайн: Лидия Напреенко. Фото: Максим Канакин. Стиль: Екатерина Лаптева

Дизайн: Лидия Напреенко. Фото: Максим Канакин. Стиль: Екатерина Лаптева

Дизайн: Лидия Напреенко. Фото: Максим Канакин. Стиль: Екатерина Лаптева

Дизайн: Лидия Напреенко. Фото: Максим Канакин. Стиль: Екатерина Лаптева

Дизайн: Лидия Напреенко. Фото: Максим Канакин. Стиль: Екатерина Лаптева

Дизайн: Лидия Напреенко. Фото: Максим Канакин. Стиль: Екатерина Лаптева

Дизайн: Лидия Напреенко. Фото: Максим Канакин. Стиль: Екатерина Лаптева

Дизайн: Эльвира Станкевич. Фото: Кирилл Бондарев

Дизайн: Эльвира Станкевич. Фото: Кирилл Бондарев

Дизайн: Эльвира Станкевич. Фото: Кирилл Бондарев

Дизайн: Эльвира Станкевич. Фото: Кирилл Бондарев

Дизайн: Эльвира Станкевич. Фото: Кирилл Бондарев

Дизайн: Эльвира Станкевич. Фото: Кирилл Бондарев

Дизайн: Эльвира Станкевич. Фото: Кирилл Бондарев
Варианты планировок двухкомнатной квартиры с размерами
Конфигурация жилья зависит от типа дома, в котором оно находится. Рассмотрим готовые варианты планировок двухкомнатных квартиры с фото реализованных проектов в старом фонде и новостройках.
Вторичное жилье
Планировки двухкомнатных квартир в старых домах зависят от периода их постройки. Есть как удобные варианты (например, в сталинках с высокими потолками), так и те, которые традиционно считают неудачными (хрущевки и брежневки).
Нетиповой дом
Нетиповыми называют дома, которые построены по проекту архитекторов в штучном экземпляре. Годы и технологии постройки могут быть разными, главный объединяющий фактор — отсутствие серийности.
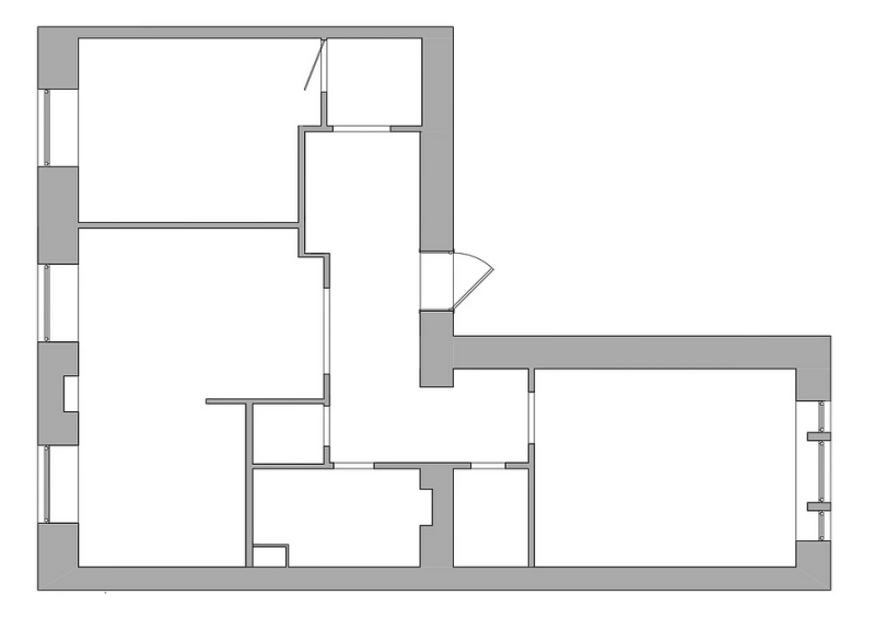
Пример
Площадь: 79 кв. м
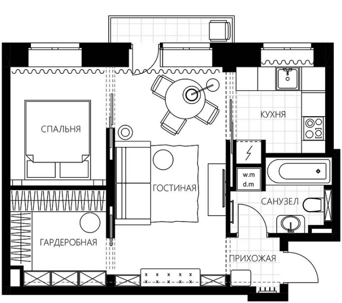
Эта квартира находится в здании 1905 года, которое считается объектом культурного наследия. Изначальное планировочное решение — двушка коридорного типа с высокими потолками и большими окнами. Все помещения идут друг за другом вдоль длинного коридора. Дизайнер предложила внести лишь несколько незначительных изменений: в спальне, которая находится в конце, выделили просторную гардеробную, а проход между кухней и гостиной сделали более широким. Дом газифицирован, но объединение помещений согласовали за счет особенностей здания (квартира — единственная жилая на этаже). В остальных случаях, чтобы узаконить такой проект, нужно будет поставить между кухней и гостиной перегородку или дверь.

Проект Анастасии Закруа До

Проект Анастасии Закруа После
Интерьер получился спокойным, но эклектичным: дизайнер сохранила дух прошлого, свойственный дому, с помощью классических элементов и винтажа. А дополняет их лаконичный сканди. Современные отделка и предметы здесь сочетаются со старинными светильниками и отреставрированной мебелью, создавая уникальный микс стилей.
14 фото

Дизайн: Анастасия Заркуа. Фото: Максим Максимов. Стиль: Наталья Орешкова

Дизайн: Анастасия Заркуа. Фото: Максим Максимов. Стиль: Наталья Орешкова

Дизайн: Анастасия Заркуа. Фото: Максим Максимов. Стиль: Наталья Орешкова

Дизайн: Анастасия Заркуа. Фото: Максим Максимов. Стиль: Наталья Орешкова

Дизайн: Анастасия Заркуа. Фото: Максим Максимов. Стиль: Наталья Орешкова

Дизайн: Анастасия Заркуа. Фото: Максим Максимов. Стиль: Наталья Орешкова

Дизайн: Анастасия Заркуа. Фото: Максим Максимов. Стиль: Наталья Орешкова

Дизайн: Анастасия Заркуа. Фото: Максим Максимов. Стиль: Наталья Орешкова

Дизайн: Анастасия Заркуа. Фото: Максим Максимов. Стиль: Наталья Орешкова

Дизайн: Анастасия Заркуа. Фото: Максим Максимов. Стиль: Наталья Орешкова

Дизайн: Анастасия Заркуа. Фото: Максим Максимов. Стиль: Наталья Орешкова

Дизайн: Анастасия Заркуа. Фото: Максим Максимов. Стиль: Наталья Орешкова

Дизайн: Анастасия Заркуа. Фото: Максим Максимов. Стиль: Наталья Орешкова

Дизайн: Анастасия Заркуа. Фото: Максим Максимов. Стиль: Наталья Орешкова
Сталинка
Дома сталинского периода разнятся от серии к серии, но вызывают одни и те же устойчивые ассоциации: высокие потолки, паркет на полу, просторные помещения, красивые фасады здания.
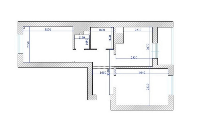
Пример
Площадь: 60 кв. м
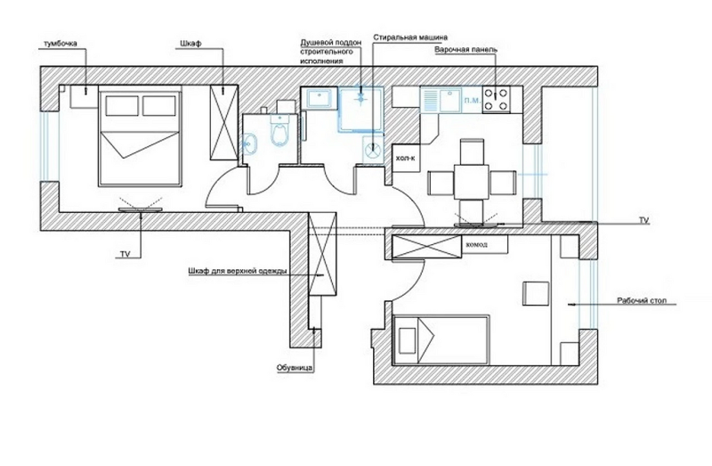
Планировка этой двухкомнатной квартиры — угловая. Именно в случае сталинок это хороший вариант, поскольку стены в домах того времени толстые и хорошо сохраняют тепло. Интерьер создавался для семейной пары, которая живет в этой двушке уже 20 лет. К дизайнеру обратились с просьбой освежить и модернизировать обстановку. Исходное планировочное решение менять не стали: кухня была достаточно большой, чтобы разместить там гарнитур и полноценную обеденную зону, дальнее помещение отвели под гостиную, а спальню с гардеробной оформили в противоположной стороне.

Проект Александры Якушенко До

Проект Александры Якушенко После
В качестве основного стиля взяли современную классику — это полностью отвечает вкусам заказчиков и духу места. Дизайнер сохранила ключевые элементы сталинского интерьера: паркет-елочку на полу, массивные люстры в гостиной и столовой. В декор включили старинную мебель и хозяйскую коллекцию искусства.
10 фото

Дизайн: Александра Якушенко

Дизайн: Александра Якушенко

Дизайн: Александра Якушенко

Дизайн: Александра Якушенко

Дизайн: Александра Якушенко

Дизайн: Александра Якушенко

Дизайн: Александра Якушенко

Дизайн: Александра Якушенко

Дизайн: Александра Якушенко

Дизайн: Александра Якушенко
Хрущевка
Хрущевки пришли на смену сталинским сериям в 50-х годах прошлого века. В тот период отношение к типовой застройке кардинально изменилось: девиз был «быстрее и больше», дома возводили со строго утилитарными целями, полностью отказавшись от декоративной составляющей архитектуры. Конфигурация жилья тоже стала другой: стены — тоньше, комнаты — меньше, потолки — ниже.
Пример
Площадь: 44 кв. м
В этом проекте мы видим типичную для хрущевки планировку 2-х комнатной квартиры. Длинная прихожая и две жилых комнаты, одна — проходная. Кухня занимала стандартные 5,5 квадрата, ванная также была маленькой. Дизайнер предложила достаточно масштабную планировку, чтобы воплотить все пожелания хозяйки — молодой активной и разносторонней женщины.
Так:
- Вход на кухню перенесли из коридора — теперь он из гостиной. В получившийся широкий проем встроили стеклянную перегородку, чтобы согласовать перепланировку.
- Со входом в спальню поступили точно так же. В итоге получилась анфиладная схема с проходной гостиной-столовой.
- Прихожую уменьшили, а за счет высвободившейся площади увеличили ванную и выделили место для встраиваемого холодильника в зоне готовки.
- Часть длинной прямоугольной спальни отвели под гардеробную, в которую есть отдельный вход из коридора.

Проект Екатерины Паршинцевой До

Проект Екатерины Паршинцевой После
У заказчицы были четкие пожелания к будущему интерьеру: создать в нем дух Парижа. Для этого дизайнер совместила классические приемы с яркими акцентами и характерными для французского стиля атмосферными деталями. Теперь лепнина и мебель округлых форм соседствуют с акварельным рисунком на стенах, минималистичным белым гарнитуром и цветным текстилем.
10 фото

Дизайн: Екатерина Паршинцева. Фото: Ульяна Гришина. Стиль: Екатерина Шаповалова

Дизайн: Екатерина Паршинцева. Фото: Ульяна Гришина. Стиль: Екатерина Шаповалова

Дизайн: Екатерина Паршинцева. Фото: Ульяна Гришина. Стиль: Екатерина Шаповалова

Дизайн: Екатерина Паршинцева. Фото: Ульяна Гришина. Стиль: Екатерина Шаповалова

Дизайн: Екатерина Паршинцева. Фото: Ульяна Гришина. Стиль: Екатерина Шаповалова

Дизайн: Екатерина Паршинцева. Фото: Ульяна Гришина. Стиль: Екатерина Шаповалова

Дизайн: Екатерина Паршинцева. Фото: Ульяна Гришина. Стиль: Екатерина Шаповалова

Дизайн: Екатерина Паршинцева. Фото: Ульяна Гришина. Стиль: Екатерина Шаповалова

Дизайн: Екатерина Паршинцева. Фото: Ульяна Гришина. Стиль: Екатерина Шаповалова

Дизайн: Екатерина Паршинцева. Фото: Ульяна Гришина. Стиль: Екатерина Шаповалова
Панелька
Панельные дома относятся к последним типовым сериям, хотя строились и после распада СССР — вплоть до двухтысячных. Их часто называют «улучшенками»: чем позже год постройки, тем больше недостатков хрущевок учтено и исправлено. Так, в последних сериях уже достаточно высокие потолки и более просторные кухни. Но общие особенности остаются неизменными: небольшие по площади изолированные помещения, плохая звукоизоляция, несущие стены.
Пример
Площадь: 45 кв. м
Эта двушка принадлежит женщине, которая живет здесь со своей десятилетней дочкой. Из-за несущих стен поменять конфигурацию помещений было невозможно, поэтому дизайнер работала с исходной планировкой 2-х комнатной квартиры-распашонки. В распоряжении были восьмиметровая кухня и два жилых помещения площадью 10,6 и 11,4 кв. м. Их отвели под спальни мамы и дочери, а от гостиной было решено отказаться. На кухне хватило место для полноценного гарнитура и удобной столовой зоны на четверых — на случай гостей. Изначально раздельный санузел таким и оставили.

Проект Марии Пивоваровой До

Проект Марии Пивоваровой После
Чтобы сделать небольшое пространство визуально более просторным, за основу взяли скандинавский стиль. Основа палитры — фоновый белый цвет, а его дополняют яркие оттенки: зеленый, солнечно-желтый, фиолетовый, бирюзовый. Вся мебель — простых форм, но более уютным жилье делают природные материалы и фактуры.
14 фото

Дизайн: Мария Пивоварова. Фото: Инна Каблукова

Дизайн: Мария Пивоварова. Фото: Инна Каблукова

Дизайн: Мария Пивоварова. Фото: Инна Каблукова

Дизайн: Мария Пивоварова. Фото: Инна Каблукова

Дизайн: Мария Пивоварова. Фото: Инна Каблукова

Дизайн: Мария Пивоварова. Фото: Инна Каблукова

Дизайн: Мария Пивоварова. Фото: Инна Каблукова

Дизайн: Мария Пивоварова. Фото: Инна Каблукова

Дизайн: Мария Пивоварова. Фото: Инна Каблукова

Дизайн: Мария Пивоварова. Фото: Инна Каблукова

Дизайн: Мария Пивоварова. Фото: Инна Каблукова

Дизайн: Мария Пивоварова. Фото: Инна Каблукова

Дизайн: Мария Пивоварова. Фото: Инна Каблукова

Дизайн: Мария Пивоварова. Фото: Инна Каблукова
Новостройки
Современные планировки двухкомнатных квартир отличаются большим разнообразием: жилье может быть любой формы (в том числе сложной, например, с закругленными стенами), площади или конфигурации. Застройщики сдают объекты с уже возведенными перегородками или вообще без них, позволяя формировать пространство так, как нужно хозяевам.
Стандарт
Стандартное планировочное решение предполагает отдельную кухню (любого размера) и два изолированных жилых помещения. Их назначение зависит от состава семьи и потребностей жильцов. Для одного человека или пары чаще всего подходит вариант со спальней и гостиной, а семьи с ребенком оформляют в одной из комнат детскую.
Пример
Площадь: 69 кв. м
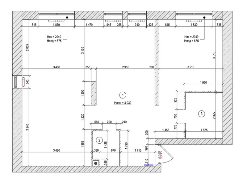
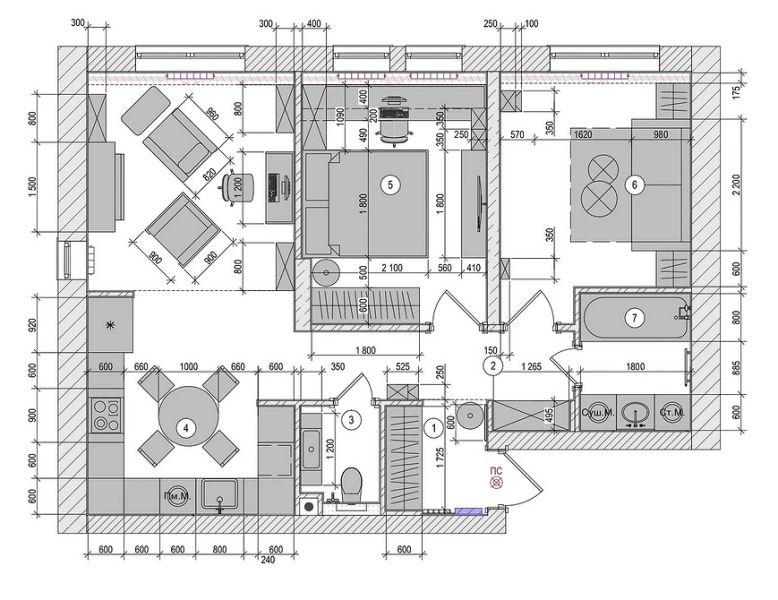
Эту двушку заказчики изначально планировали сдавать в аренду, но в процессе работы над проектом решили оставить для себя. Исходное планировочное решение уже было удачным: изолированная спальня, два санузла, просторная входная зона и кухня-гостиная. Последние разделили раздвижной перегородкой, получив таким образом полноценное двухкомнатное жилье. А вот от прихожей и коридора зал не стали отделять, чтобы впустить в жилое пространство больше света из панорамных окон.

Проект Никиты Лунева До

Проект Никиты Лунева После
При оформлении интерьера дизайнер вдохновлялся видом из окна на горы. Было решено оставить в пространстве как можно больше воздуха и простора, сакцентировав внимание на панораме. При этом палитру выбрали достаточно яркую, в которой преобладают сине-голубые тона разной степени насыщенности.
8 фото

Дизайн: Никита Лунев. Фото: Илья Давидович

Дизайн: Никита Лунев. Фото: Илья Давидович

Дизайн: Никита Лунев. Фото: Илья Давидович

Дизайн: Никита Лунев. Фото: Илья Давидович

Дизайн: Никита Лунев. Фото: Илья Давидович

Дизайн: Никита Лунев. Фото: Илья Давидович

Дизайн: Никита Лунев. Фото: Илья Давидович

Дизайн: Никита Лунев. Фото: Илья Давидович
Евротрешка
Планировка двухкомнатной квартиры в духе «евро» предполагает наличие двух изолированных жилых комнат и просторной кухни-гостиной. Формально она относится к двушкам, но по факту помещений три — отсюда и название.
Пример
Площадь: 67 кв. м
Эта яркая евротрешка принадлежит молодой семье. Изначальный план полностью устраивал хозяев, поэтому изменений практически не вносили — только сделали перегородку в прихожей, чтобы установить большой встроенный шкаф. Жилые комнаты превратили в спальни: хозяйскую и гостевую. В гостиной, помимо зоны отдыха, организовали удобное рабочее место.

Проект Натальи Балашовой До

Проект Натальи Балашовой После
Интерьер представляет собой красочный микс стилей: скандинавские мотивы сочетаются с этническими элементами. Пространство наполнено насыщенными красками, которые гармонично сочетаются между собой. Объединяют их освежающий белый и спокойная фактура дерева, заодно добавляющая уюта.
12 фото

Дизайн: Наталья Балашова. Фото: Ольга Шангина

Дизайн: Наталья Балашова. Фото: Ольга Шангина

Дизайн: Наталья Балашова. Фото: Ольга Шангина

Дизайн: Наталья Балашова. Фото: Ольга Шангина

Дизайн: Наталья Балашова. Фото: Ольга Шангина

Дизайн: Наталья Балашова. Фото: Ольга Шангина

Дизайн: Наталья Балашова. Фото: Ольга Шангина

Дизайн: Наталья Балашова. Фото: Ольга Шангина

Дизайн: Наталья Балашова. Фото: Ольга Шангина

Дизайн: Наталья Балашова. Фото: Ольга Шангина

Дизайн: Наталья Балашова. Фото: Ольга Шангина

Дизайн: Наталья Балашова. Фото: Ольга Шангина
Свободная планировка
Такой тип планировочного решения предполагает отсутствие внутренних перегородок. Обозначаются только мокрые зоны. Это дает возможность самостоятельно разделить пространство на жилые зоны, выбрав удобные площадь, форму и взаимное расположение.
Пример
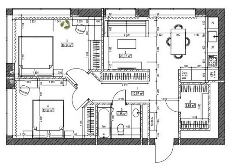
Площадь: 60 кв. м
Это жилье оформляли для двадцатилетних брата и сестры. По изначальному плану от застройщика объект предполагался как двушка с гардеробной и двумя санузлами. От одного из них отказались, чтобы выделить больше места в гардеробной, в остальном перегородки возвели так, как было предложено. В итоге получилась просторная кухня-гостиная, а рядом с ней — две смежные изолированные спальни.

Проект Ольги Бондаренко и Евгении Чернышовой До

Проект Ольги Бондаренко и Евгении Чернышовой После
Дизайнеры интересно решили стилистический вопрос — у брата и сестры были разные предпочтения, поэтому в одном пространстве нужно было соединить брутальный современный стиль и утонченный ар-деко. Это удалось сделать с помощью универсальных нейтральных решений (отделочные материалы, базовые цвета и т.д.), которые уже дополнили яркими деталями в соответствии со вкусами каждого из жильцов.
12 фото

Дизайн: Ольга Бондаренко и Евгения Чернышова. Фото: Анастасия Кутырина. Стиль: Анастасия Ламанова

Дизайн: Ольга Бондаренко и Евгения Чернышова. Фото: Анастасия Кутырина. Стиль: Анастасия Ламанова

Дизайн: Ольга Бондаренко и Евгения Чернышова. Фото: Анастасия Кутырина. Стиль: Анастасия Ламанова

Дизайн: Ольга Бондаренко и Евгения Чернышова. Фото: Анастасия Кутырина. Стиль: Анастасия Ламанова

Дизайн: Ольга Бондаренко и Евгения Чернышова. Фото: Анастасия Кутырина. Стиль: Анастасия Ламанова

Дизайн: Ольга Бондаренко и Евгения Чернышова. Фото: Анастасия Кутырина. Стиль: Анастасия Ламанова

Дизайн: Ольга Бондаренко и Евгения Чернышова. Фото: Анастасия Кутырина. Стиль: Анастасия Ламанова

Дизайн: Ольга Бондаренко и Евгения Чернышова. Фото: Анастасия Кутырина. Стиль: Анастасия Ламанова

Дизайн: Ольга Бондаренко и Евгения Чернышова. Фото: Анастасия Кутырина. Стиль: Анастасия Ламанова

Дизайн: Ольга Бондаренко и Евгения Чернышова. Фото: Анастасия Кутырина. Стиль: Анастасия Ламанова

Дизайн: Ольга Бондаренко и Евгения Чернышова. Фото: Анастасия Кутырина. Стиль: Анастасия Ламанова

Дизайн: Ольга Бондаренко и Евгения Чернышова. Фото: Анастасия Кутырина. Стиль: Анастасия Ламанова

Анастасия Степанова