Конфигурация и расположение гарнитура, рабочий треугольник, обеденная зона — пошагово планируем удобную и красивую кухню.
Пять квадратов в хрущевке или просторное открытое пространство в евротрешке — независимо от исходных данных оформление зоны готовки требует особого внимания. В этой статье даем полезные советы по планировке кухни с фото разноплановых примеров: с холодильником и без, с обеденным столом или барной стойкой, с угловым, П-образным и параллельным гарнитуром. А также рассматриваем готовые планы для разных ситуаций.
Как спланировать кухню в квартире
Расположение гарнитура
— Общие принципы
— Форма
Рабочий треугольник
Другая мебель
— Столовая группа
— Зона отдыха
Расположение гарнитура
Центральное место на любой кухне занимает гарнитур. Это самый крупный и многофункциональный элемент интерьера, поэтому его расположению и наполнению уделяют особое внимание.
Общие принципы

Чтобы правильно спланировать кухонную зону (особенно если вы делаете это самостоятельно), важно действовать поэтапно. Так, прежде чем выбирать модель и форму гарнитура, ответьте на несколько вопросов:
- Сколько человек человек живет в квартире?
- Кто регулярно пользуется кухней и как часто в вашей семье готовят?
- Что именно: простые блюда, здоровую еду, выпечку, сложные кулинарные шедевры?
- Какое количество продуктов вы в среднем покупаете и постоянно храните на кухне?
- Часто ли вы питаетесь вне дома? Пользуетесь ли доставками готовой еды или рационов?
- Много ли посуды приходится мыть? Принципиально ли наличие посудомоечной машины?
Ответы на эти вопросы — ключ к идеальной планировке зоны готовки. Единого рецепта нет: гарнитур должен отвечать потребностям конкретного человека или семьи. Поэтому, подбирая его размер, наполнение и расположение в пространстве, ориентируйтесь в первую очередь на свой сценарий жизни. Так, например, тем, кто почти не готовит дома, будет достаточно нескольких шкафов для базового хранения, двухкомфорочной плитки и небольшой раковины. Если же вы предпочитаете домашнюю еду, готовите на большую семью или много печете, потребуется уже совершенно другая конфигурация. Важно даже то, как вы делаете покупки: ходите в магазин каждые пару дней за небольшим количеством свежих продуктов или закупаетесь на неделю вперед.
Эти нюансы особенно актуальны для маленьких квартир, где метраж ограничен и приходится чем-то жертвовать. Например, кому-то проще вынести холодильник в коридор, но не отказываться от посудомойки, а кто-то прекрасно проживет без классического обеденного стола.
7 фото

Соцсети студии Osome

Соцсети дизайнера suzanna_designer

Дизайн: Наталия Васильева

Дизайн: Ксения Гузий

Дизайн: Анна Ботнаренко

Дизайн: Ольга Слугина

Соцсети студии STD Design
Форма
Следующий ключевой этап — выбрать удобное расположение гарнитура. Есть пять основных планировок.

Линейная
Здесь все просто: гарнитур располагается вдоль одной стены. Может занимать всю ее ширину или только часть. Поскольку конструкция в этом случае состоит только из одной части, обычно делают два ряда шкафчиков. Если нужно больше места для хранения, верхний ярус продлевают до потолка. А если вы практически не готовите и храните минимум посуды, можно отказаться от него вовсе, заменив парой открытых полок.

Соцсети студии Malitskie Bureau

Соцсети студии Kvadrat

Соцсети дизайнера Дарьи Дубковой

Соцсети студии Malitskie Bureau
Пример планировки
Как правило, однорядного гарнитура вполне достаточно для 1-2 человек.

Г-образная
Такая форма наиболее популярна благодаря своей универсальности: Г-образные шкафы впишутся как в просторное помещение, так и на ограниченный метраж, в квадратную или узкую прямоугольную комнату. Это лучшее решение для крошечных кухонь, поскольку задействуются углы, а это сразу увеличивает полезную площадь. Часто к одному из рядов пристраивают барную или полубарную стойку, заменяя ей стандартную обеденную группу по столом.
Кроме того, угловое расположение считается эталонным для классического рабочего треугольника, состоящего из холодильника, мойки и плиты. Их можно разместить в любом удобном порядке, выделив между ними место для подготовки продуктов и приготовления блюд.
6 фото

Соцсети студии Cubiq

Соцсети студии Rerooms

Дизайн: Анастасия Уфимцева

Дизайн: Ксения Гузий

Дизайн: Екатерина Дурава. Фото: Евгений Гнесин

Дизайн: Ксения Гузий
Пример планировки
Угловое расположение отлично подходит для вытянутых комнат: и в плане конфигурации, и как инструмент зонирования.

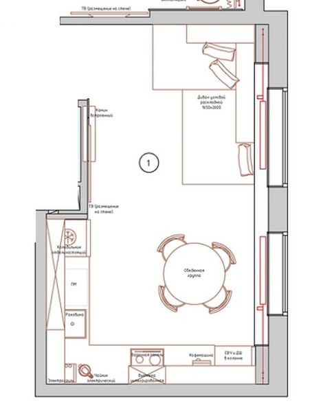
П-образная
П-образная форма — это «улучшенная» версия угловой планировки, при которой задействуется еще и третья сторона. Такое расположение тоже подходит для помещений любого метража. В просторной кухне можно поставить гарнитур к двум смежным стенам, сделав третью часть конструкции одноярусной (это могут быть нижние шкафы, полуостров с рабочей поверхностью или барная стойка с хранением внизу). На ограниченном метраже мебель, как правило, вписывают по ширине комнаты. У такой планировки есть свой плюс — задействуется стена с окном. Около него можно, например, установить раковину или оформить уголок для завтраков.
Если вы выбрали П-образную расстановку, то помните про эргономику: чтобы все ящики удобно открывались, ширина кухни должна быть не меньше 2,5 метров. В случае с узкой комнатой одна из частей конструкции должна быть без выдвижных и открывающихся секций: например, это может быть барная стойка или рабочая поверхность.
6 фото

Дизайн: Алена Николаева. Фото: Максим Максимов. Стиль: Алена Гарти

Соцсети дизайнера Андрея Ортынского

Соцсети студии Bodes

Соцсети студии ARD Design

Соцсети дизайнера Дианы Яруллиной

Соцсети студии Antei
Пример планировки
В некоторых квартирах под кухню отдана ниша в дальней части комнаты без окна. Это тоже удобный вариант для П-образной расстановки.

Параллельная
Такая планировка встречается не так часто, как угловая или классическая линейная, но тоже имеет место быть. Например, расположение двух рядов друг напротив друга будет наиболее удобным в узком помещении, где не влезает Г-образный гарнитур. Либо если зона готовки проходная и находится, например, в коридоре. В маленькой комнате важно следить за расстоянием: между рядами должно быть достаточно свободного места, чтобы беспрепятственно открывать дверцы шкафов или выдвигать ящики.
Параллельная планировка встречается и в просторных кухнях. Это решение особенно популярно в частных домах. Чаще всего, поскольку места достаточно, для удобства между двумя параллельными частями конструкции устанавливают остров или располагают столовую группу.

Дизайн: Ольга Слугина

Дизайн: Ольга Слугина

Дизайн: группа компаний «ОМиС»

Дизайн: группа компаний «ОМиС»

Соцсети компании Mint Tiny Homes
Пример планировки
Типичная проблема студий или небольших комнат — неудачно расположенный вход не позволяет разместить гарнитур Г-образно.

С островом
Зона готовки с островом — заветная мечта тех, кто любит готовить. У такого решения действительно много достоинств: это удобно, позволяет организовать дополнительное место для хранения, сделать правильный рабочий треугольник, выделить обеденную зону, а также зонировать пространство. В конце концов — просто красиво и эстетично. При этом существует стереотип, что островная планировка подходит только для больших площадей.
Отчасти это правда: чем больше квадратных метров в вашем распоряжении, тем проще реализовать такое расположение. С другой — найти место для гарнитура с компактным островом можно и в городской квартире. Конечно, этот вариант не подойдет для хрущевки с пятиметровой изолированной кухней, а вот даже в средней евродвушке вполне реально сделать подобную планировку. Остров в этом случае должен быть максимально функциональным: в него можно встроить варочную панель или установить мойку, внизу — организовать хранение.
9 фото

Соцсети дизайнера Павла Полынова

Дизайн: Марина Макарова

Соцсети дизайнера Павла Алексеева

Соцсети студии Holl

Дизайн: Наталия Васильева

Соцсети студии Cubiq

Соцсети студии Osome

Соцсети дизайнера Ирины Горячко

Соцсети студии MakeDesign
Пример планировки
В квартире кухню с островом проще всего организовать, если есть возможность вынести столовую группу в гостиную.

Как правильно спланировать кухню: рабочий треугольник
Еще один ключевой элемент зоны готовки — рабочий треугольник. Этим термином называют схему расстановки трех главных стратегических точек: холодильника, раковины и плиты.

Считается, что оптимально размещать их по воображаемым углам треугольника со сторонами от 1,2 до 2,7 м. При таком расположении человеку в процессе готовки комфортно перемещаться по кухонной зоне, не совершая лишних движений. Удобнее всего формировать рабочий треугольник по сторонам Г-образного гарнитура, но могут быть и другие варианты. Например:
- Последовательно, если конструкция однорядная.
- Плита на одной стороне, холодильник и мойка — на другой, если планировка параллельная или П-образная.
- Мойка или плита вынесены на остров.
Единого правила, в какой последовательности располагать элементы, нет, но следует руководствоваться логикой готовки. Стандартный маршрут: достать продукты, помыть их, затем подготовить на столешнице и, наконец, отправить на плиту. Размещать последнюю между раковиной и холодильником не лучший вариант, поскольку придется бегать туда-сюда, к тому же на плиту будут попадать капли воды с рук и продуктов.
Также следите, чтобы между зонами хранения, мойки и приготовления, был свободный проход, не стесняющий движений и достаточный, чтобы можно было открывать шкафчики и дверцы техники.

Дизайн: Виталий Савко. Фото: Феликс Сиваков. Стиль: Алеся Корнилович

Соцсети студии Malitskie Bureau

Дизайн: Наталия Васильева

Дизайн: Маргарита Зенова

Соцсети студии Malitskie Bureau
Другая мебель
Когда расположение гарнитура и техники определено, осталось найти место для другой мебели. Стандартно это обеденная зона, но могут быть вариации.
Столовая группа

Классическая обеденная группа состоит из нескольких стульев и стола. Он может быть прямоугольным, квадратным, круглым или овальным; раскладным или стационарным. Выбор модели зависит от размеров и формы комнаты, а также состава семьи: например, для 1-2 человек хватит компактного столика, а для большой семьи понадобится более вместительный вариант. Если кухня маленькая, раскладной стол — практически обязательная опция, особенно если вы часто принимаете гостей. Что касается формы, то здесь работает простое правило: квадрат или прямоугольник проще вписать в пространство и, например, поставить в угол, для круглой же модели понадобится чуть больше места.
Иногда владельцы квартир отказываются от обеденного стола в пользу острова или барной стойки. Такое решение, как правило, продиктовано двумя причинами:
- Не хватает места для стандартной столовой группы — например, при планировке кухни с холодильником на ограниченном метраже.
- Образ жизни жильцов не предполагает частые застолья дома (например, вы привыкли питаться в кафе и ресторанах или на работе).
8 фото

Соцсети дизайнера Алексея Волкова

Дизайн: Маргарита Зенова

Дизайн: Анна Малютина

Дизайн: Павел и Светлана Алексеевы

Соцсети дизайнера Дениса Горшкова

Дизайн: Юлия Карпухина. Фото: Евгений Гнесин. Стиль: Евгения Мельникова

Дизайн: Ольга Слугина

Проект Марины Каралкиной. Фото: Андрей Сорокин
Зона отдыха
Мягкая группа встречается как в объединенных с гостиной, так и на изолированных кухнях.

Зона отдыха может быть представлена:
- Диваном.
- Парой кресел.
- Банкеткой.
- Широким подоконником с мягкой подкладкой.
В кухне-гостиной подход к планировке стандартный: пространство делится на зону готовки и отдыха. Последняя обычно представлена диваном, журнальным столиком, опционально — одним или двумя креслами. Если же вы хотите поставить мягкую мебель в зоне готовки, то важно учитывать несколько аспектов. Во-первых, габариты. На небольшую кухню не поместится широкий трехместный диван — как правило, выбирают специальные компактные модели. Также важен материал обивки, поскольку для помещения характерны повышенная влажность, перепады температур и высокая загрязняемость. Выбирайте износостойкие, не впитывающие запахи материалы, которые можно протирать влажной тряпкой (а еще лучше — стирать в машинке).
8 фото

Соцсети студии AN Design

Дизайн: Маргарита Калинина. Фото: Александр Бурнатов

Соцсети блогера ksenia.smir_nova

Дизайн: Татьяна Ртищева. Фото: Наталья Вершинина

Дизайн: Светлана Куксова. Фото: Наталья Мавренкова. Стиль: Анна Королева

Соцсети дизайнера Ирины Рудаковой

Дизайн: Вера Королева

Соцсети дизайнера Веры Никитиной

Анастасия Степанова