Кухня-гостиная, отдельная спальня, достаточно систем хранения — дизайнеры оформили пространство с помощью практичных и продуманных решений.
Заказчик и задачи
Этой квартирой владеет молодой мужчина, профессионально он занят в сфере строительства и проектирования. Дизайнерам Людмиле Цырковой и Яне Сочаво предстояло создать функциональный, гармоничный и расслабляющий интерьер маленькой квартиры, задействовав площадь по максимуму. Важный момент — системы хранения. Заказчик увлекается теннисом, и ему нужно хранить инвентарь.

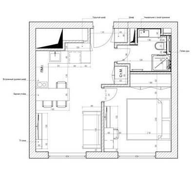
Перепланировка
Квартира — маленькая евродвушка. Застройщик сделал кухню-гостиную, спальню и маленькую ванную комнату. Дизайнеры предложили небольшую перепланировку. Поменяли расположение входа в спальню — сделали его из гостиной. Увеличили прихожую за счет части спальни, чтобы встроить хозяйственный шкаф со стиральной машиной (прим. редакции — стиральная машина должна быть расположена в нежилой зоне). Также изменили конфигурацию перегородки между ванной комнатой и прихожей, незначительно увеличив ванную за счет нежилой зоны. Это позволило встроить шкаф у входа.

Отделка
Для отделки стен выбрали моющуюся краску. На полу по всей площади квартиры за исключением ванной комнаты уложена инженерная доска цвета темного дерева. «Искренне рекомендуем этот долговечный, экологичный, очень красивый материал», — говорят дизайнеры. Потолок решили сделать из гипсокартона с теневым профилем. Это создало «парящий» эффект, который усиливает подсветка.
В ванной комнате подобрали керамогранит под дерево для пола, который максимально по цвету и фактуре похож на инженерную доску. «Этот прием работает для объединения зон в небольших пространствах», — рекомендуют Людмила и Яна. На стенах — крупноформатный керамогранит под травертин. Интересно решение с душевой перегородкой. Дизайнеры выбрали рельефное стекло. Оно дороже, но при этом на такой поверхности гораздо меньше видны потеки, известковый налет.

Мебель и системы хранения
Практически всю мебель в квартире, включая мягкую, выполнили на заказ, чтобы вписаться по размерам. Проектирование систем хранения здесь — этап, которому уделили особое внимание. На маленькой площади предстояло обустроить их немало. Вместе с заказчиком продумывали места для каждой вещи. Для повседневной одежды — высокий встроенный шкаф в спальне.

Напротив кровати здесь подвесная тумба, рядом обустроено рабочее место — стол и полки над ним.

В гостиной — тумба под телевизор, которая объединена со стеллажом, где можно хранить книги, декор. Кухню решили не выделять в пространстве, сделали фасады под цвет стен, пара верхних шкафов — с фасадами из рифленого стекла (стекло в том же оформлении в душевой, дизайнеры создали ненавязчивую параллель). Вместо обеденного стола — барная стойка.

В прихожей — три шкафа. Они небольшие, но максимально функциональные. При входе в нишу встроен шкаф с открытой секцией, где есть место для сидения и крючки. Под сидением — выдвижная полка для мелочей, под полкой — открытое пространство для повседневной обуви, секция наверху также предназначена для хранения.

С другой стороны двери в ванную — шкаф со стиральной машиной, а также складной гладильной доской. Машина установлена внизу, над ней — рейлы для верхней одежды и антресольная часть для сезонного хранения.

В стене напротив, рядом с кухонным гарнитуром, еще один шкаф. Он узкий, но глубокий, глубиной почти метр. Поэтому его сделали выкатным для удобства. Здесь можно хранить хозяйственные принадлежности, спортивный инвентарь. Фасад полностью отделан зеркалом.

В ванной комнате — система хранения над инсталляцией унитаза, а также тумба под раковину.
Освещение и автоматика
Сценарии света продумывали тщательно, причем не только с функциональной, но и декоративной точки зрения. Общий свет решен точечными светильниками на кухне, люстрой в гостиной, линейными встроенными светильниками в прихожей и спальне. Дополнительные сценарии не только помогают подсветить зоны, но и служат декором. Например, есть зеркальное бра над диваном, которое в выключенном состоянии выглядит как арт-объект, и подсветка подиума душевой.
Застройщик предусмотрел систему умного дома, хозяин ее усовершенствовал, подключив к управлению технику и шторы.
Интерьер получился функциональный, продуманный и технологичный.


Людмила Цыркова и Яна Сочаво Дизайнеры, авторы проекта
Для современного молодого мужчины мы видели современные решения. Лаконичный спокойный интерьер, в котором комфортно находиться, иногда работать, отдыхать, проводить время с друзьями. Взгляд не должен цепляться за что-то определенное, должно быть просто спокойно, хорошо и удобно. Слишком много контрастных цветовых решений и тем более черных деталей заказчик категорически не хотел. Стиль определил он сам — ему очень нравятся минималистичные интерьеры. Мы тоже любим эргономичные, функциональные и при этом максимально не загруженные пространства, поэтому с удовольствием создали соответствующий интерьер. Во время съемки у нас было немного декора, квартира выглядит так, как в повседневной жизни. Но мы хотели поддержать увлечение заказчика теннисом, для этого использовали винтажную теннисную ракетку 50-х гг.
10 фото

Кухня-гостиная

Кухня

Кухня

Кухня

Вид на спальню

Спальня

Спальня

Спальня

Санузел

Санузел Редакция предупреждает, что в соответствии с Жилищным кодексом РФ требуется согласование проводимых переустройств и перепланировок.

Смотреть перепланировку

Анастасия Дубровина

Женя Муравьева Маленькие квартиры Современный стиль Бежевый цвет