Дизайнер Екатерина Грачева создала комфортный интерьер для большой семьи, объединив классические элементы с современным артом
Гостиная. Диван Shade, Ditre Italia. Пуф Denni, Alf. Столик Andorra, Tonin Casa. Кресла Revital, Twils. Торшер, Contardi Italia. Паркет, Boen, OneFloor. Поставщик мебели — фирма Mocotex.
ПАРАМЕТРЫ ОБЪЕКТА
-
Тип недвижимости: квартира
-
Где находится: г. Москва
-
Метраж: 315 м²
-
Стиль: актуальная классика
-
Основная идея проекта: современная классика, эклектика
-
Цветовая гамма: кофейно-серая, нюансная, но с яркими акцентами
-
Авторы проекта: дизайнер Екатерина Грачева, т. +7 (963) 782-75-70, gracheva-design.ru, @gracheva.design

Кресла Mariette, Marac. Буфет Plain, La Ebanisteria. Бра, CTO Lighting.
В этой квартире, расположившейся в центре Москвы, живет супружеская пара с двумя взрослыми детьми. Каждому члену семьи нужно было личное пространство для работы, отдыха и встреч с друзьями. Также важно было создать место, где вся семья может провести время вместе. «Заказчики хотели чрезмерной роскоши: витиеватой лепнины, золота и хрусталя, сочетающихся с бархатом и канделябрами. Мы сразу решили, что вся квартира должна быть выдержана в единой гамме и стилистике, в том числе „детские“ комнаты», — рассказывает дизайнер Екатерина Грачева.

Столовая зона. Стулья, Midj. Люстра Mika, Aromas del Campo.

Кухня. Барные стулья Wrap, Midj. Светильники, Aromas del Campo.
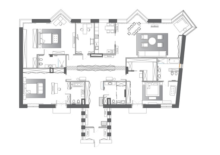
«Мы разделили пространство квартиры таким образом, чтобы получилось три отдельные приватные зоны — для родителей, дочери и сына. В каждой из них есть спальня, мини-гостиная, гардероб и ванная. Чтобы не получилось мелкого разделения, мы убрали лишние двери. Например, в комнате дочери гардеробная, расположившаяся за изголовьем кровати, осталась без дверей».

Спальня сына. Кровать, Twils. Диван и декоративные подушки, Saba. Прикроватные тумбочки, La Ebanisteria. Люстра, Aromas del Campo. Настольные лампы, Luxcambra.

Письменный стол и перегородка, La Ebanisteria.
«Разрабатывая дизайн, мы пытались соединить современный функционал, необходимый для комфортной жизни, и основные черты классического стиля. Стены украшают двойные рамки из молдингов, высокие плинтусы и мягкие панели из ткани. При этом предметы интерьера отличаются лаконичными формами и чистыми линиями. Всю мебель мы подбирали на разных фабриках, чтобы она не выглядела как единый гарнитур. В спальнях кровати с капитоне и „ушами“ соседствуют с работами современных художников и обоями с ручной росписью».

Спальня дочери. Диван Willy Slim, Marac. Прикроватные тумбочки, La Ebanisteria. Люстра Circus SO, Contardi Italia. Письменный стол, Alf DaFre. Настольные лампы, Contardi Italia.

Книжный шкаф Hamster, Ebanisteria.
«Сердцем квартиры стала гостиная, в которой есть два угловых эркера разных форм и размеров. В одном из них мы разметили обеденный стол, а в другом сделали уголок для чтения — поставили широкую лежанку, торшер и журнальный столик. В кухне, скрывающейся за раздвижными дверями, мы намеренно не стали прятать вытяжную трубу, решив что лишняя труба лучше лишнего гипсокартона».

Фрагмент основной спальни. Кушетка Willy Slim, Marac.

Кабинет. Письменный стол Alf DaFre. Торшер, Contardi.
«Весь интерьер выдержан в приглушенной гамме серых и кофейных оттенков. Главными акцентами стали картины, написанные на заказ. Например, в гостиной все внимание к себе притягивает внушительное полотно художницы Кати Приваловой, а стену в основной спальне украшает произведение „Нарциссы“ Кати Нечаевой. Интересно было наблюдать, как менялась цветовая палитра картины в ходе работы: из желтой она превратилась в темно-синюю с розовыми каплями вслед за палитрой в самой спальне. В холле и ванной комнате дочери можно увидеть работы питерской художницы Лилии Ковган».

Основная ванная комната. Бра, Savoy. Плитка, Provenza Groove и FMG. Сантехника, Duravit.

Квартира в Москве. Проект Екатерины Грачевой.