Владелица этой квартиры любит готовить и проводить дегустации для своих друзей. На небольшой площади квартиры предстояло обустроить достаточно места для этого. И, конечно, оформить удобную и комфортную приватную зону.
Заказчики и задачи
Владелица этой квартиры живет с двумя котами крупной породы мейн-кун. Она работает в сфере, связанной с французскими винами. Дизайнер Марта Логунцова описывает свою заказчицу и задачу так: «Девушка — невероятно открытой души человек, с тонким чувством прекрасного. Основная идея проекта заключалась в формировании легкого, воздушного и в то же время стабильного пространства. Места покоя, умиротворения и ощущения стабильности. Дома, в которым ты отдыхаешь телом и душой».
Были и практичные задачи. Хотелось оформить отдельную гардеробную, чтобы избавиться от шкафа в спальне. А также обеспечить достаточно посадочных мест для приема гостей.

Перепланировка
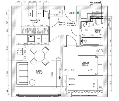
Изначально квартира была евродвушкой. Так называют современные планировки с кухней-гостиной и отдельной спальней. Чтобы выделить гардеробную, решили «забрать» часть пространства у кухни-гостиной. Конечно же, подальше от окна, так как в гардеробной естественный свет не принципиален. В остальном же оставили планировку, как есть.

Отделка
Выбирая отделочные материалы, дизайнер следовала намеченной концепции спокойного пространства, где легко расслабиться и отдохнуть. Поэтому предпочли натуральные материалы и природные цвета. На стенах — краска и молдинги. На полу в жилых зонах — инженерная доска, уложенная елочкой. В ванной комнате — керамогранит разных оттенков: под белый мрамор и серый сланец. Дерево использовали и в оформлении оконных откосов в гостиной. Это интересная зона, которую проработала дизайнер.

«Подоконная зона — изюминка этого проекта. Нам пришлось убрать второе остекление, которое создавало пространство в 30 см между вторым и первым. Организовали широкий подоконник, который переходит в массивную ТВ-тумбу. Вся плоскость подоконника и тумбы служит дополнительными посадочными местами. Это позволило при площади в 19 кв. м создать помещение с максимальным количеством мест, где могут разместиться друзья нашей клиентки. Так как под окно необходимо было смонтировать радиатор отопления, на подоконнике реализована перфорация для выхода теплого воздуха. Перфорация сделана и под подоконником. Перфорированная панель посажена на магниты, и ее спокойно можно снять для влажной уборки или работы с радиатором», — рассказывает Марта.

Мебель и системы хранения
Площадь выделенной гардеробной получилась компактной — 5 квадратов — но достаточной для того, чтобы разместить не только место для хранения повседневных и сезонных вещей, а также колонну из стиральной и сушильной машины, хозяйственный шкаф и винный холодильник.
Кухню установили углом справа от входа в кухню-гостиную. За счет такого размещения она не видна, создается ощущение, что всю площадь занимает именно гостиная зона. Такого эффекта и добивалась автор проекта. Но компактность кухни не повлияла на ее функциональность. Встроена вся нужная техника, организовано много мест хранения за счет высоких шкафов до потолка.

Для книг и бумаг предусмотрели место в спальне — там небольшой рабочий столик с полками для этих целей. Кроме того, место для них есть и в тумбе под телевизор, и под широким подоконником в гостиной.

В санузле хранение продумали традиционным образом: тумба под раковину и шкафчик над инсталляцией унитаза.
Освещение
Разные сценарии света позволяют создать различное настроение в интерьере. От яркого до камерного, от рабочего до уютного. В этом проекте светильники являются еще и декоративной составляющей.

Например, довольно объемная, но визуально легкая золотистая люстра в спальне и минималистичные подвесы цвета меди по бокам от кровати добавляют интерьеру нотку роскоши. При этом черная настольная лампа придает графичности и строгости. Есть еще и точечный свет для того, чтобы охватить всю комнату.

В кухне-гостиной общее освещение решено встроенным линейным светильником по периметру комнаты. Над обеденным столом — декоративный подвес, а над диваном — два бра. В прихожей — основное потолочное освещение, красивое бра над консолью, которое превращается в арт-объект при включенном свете, и подсветка большого зеркала.

В ванной комнате — точечный свет, подвесы у зеркала и скрытые подсветки — нижней части ванны, полочек в зоне унитаза. Это позволяет создать мягкое ненавязчивое освещение, настраивающее на расслабление или, наоборот, пробуждение.


Марта Логунцова Дизайнер, автор проекта
Сейчас есть тренд к смешению достаточно большого количества стилей в одном помещении, и мы не стали исключением. Насколько многогранен человек, настолько многогранен и интерьер как его отражение. Для этой квартиры мы использовали три основных направления: контемпорари, неоклассика, экостиль. Контемпорари активно проявляется в формах мебели, в некоторых отделках. Все источники света и приемы, выбранные для их свечения, выполнены именно в этом стиле. Для мягкости и воздуха очень деликатно введены элементы неоклассики. Волнистые молдинги заключены в строгие геометрические рамки, что является чистым признаком этого стиля. Все потолки — с выразительными неоклассическими карнизами. Экостиль тоже занял свое место в этом интерьере. Отделка почти всей мебели — дерево. Натуральные природные фактуры есть в текстильной обивке и декоре. И, конечно же, природные цвета. Этот симбиоз создал уникальный единый объем. Антураж, подходящий конкретному человеку, для которого он создавался.
21 фото

Кухня-гостиная

Кухня

Гостиная

Гостиная

Гостиная

Гостиная

Спальня

Спальня

Спальня

Спальня

Спальня

Спальня

Спальня

Спальня

Спальня

Спальня

Прихожая

Прихожая

Ванная комната

Ванная комната

Ванная комната Редакция предупреждает, что в соответствии с Жилищным кодексом РФ требуется согласование проводимых переустройств и перепланировок.

Смотреть перепланировку

Анастасия Дубровина

Антон Лихтарович

Яна Яхина Маленькие квартиры Светлые цвета Бежевый цвет Современная классика