Дизайнер Ольга Рифкина рассказывает, как ей удалось отразить в дизайне интерьера любовь заказчика к путешествиям, дикой природе и музыке
Гостиная. Стена отделана керамогранитом Calacatta Macchia Vecchia, Ariostea. Ковер, Rug Republic. Журнальный столик и стеллаж, Dantone Home. На столе — керамическая ваза художницы Натальи Бедрединовой.
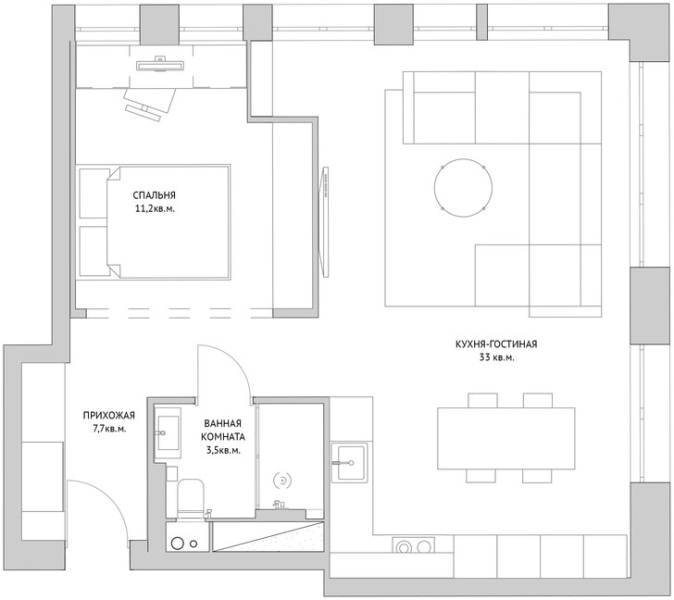
ПАРАМЕТРЫ ОБЪЕКТА
-
Тип недвижимости: квартира в новостройке
-
Где находится: г. Москва, ш. Энтузиастов
-
Метраж: 56 м²
-
Стиль: современный интерьер с мужским характером
-
Основная идея проекта: создать функциональный интерьер для мужчины-предпринимателя, располагающий к работе и отдыху, отражающий его любовь к природе, натуральным материалам и музыке
-
Цветовая гамма: оттенки серого, коричневого и голубого дополнены текстурой белого мрамора и американского ореха, черными акцентами и деталями из латуни
-
Авторы проекта: дизайнер Ольга Рифкина, www.olgarifkin.com, @olga_rifkin, olga@interiori.ru

Диван выполнен на заказ по эскизам дизайнера. Торшер, Artemide. Освещение, Egoluce и Centrsvet.

Хозяин квартиры — мужчина средних лет, владеющий бизнесом по продаже керамической плитки. Мы давно знаем друг друга, поскольку еще в начале 2000-х мы работали в одной компании. К тому же это четвертый проект, который я выполняю для этого заказчика. Работать было легко, ведь я уже успела познакомиться с его предпочтениями. Основным пожеланием было создать функциональный интерьер, одинаково располагающий к работе и отдыху. Учитывая относительно небольшую площадь, было важно сохранить ощущение простора, организовав все необходимые зоны: гостиную с большим диваном и домашним кинотеатром, гостевое спальное место для дочери заказчика и изолированную спальню с рабочим местом для него самого.

Вид на кухню. Кухонный остров облицован керамогранитом Calacatta Macchia Vecchia, Ariostea. Освещение, Centrsvet. На стене — постер, Somodernart. Бра Flower, Egoluce.
Квартира находится на верхнем этаже жилого комплекса и имеет угловое расположение с практически сплошным остеклением по фасаду, благодаря чему пространство всегда наполнено солнечным светом. Кроме того, из окон открывается шикарный вид на Терлецкий парк, который мы решили подчеркнуть, выбрав природную цветовую гамму. В кухне-гостиной важное место занял крупноформатный керамогранит, имитирующий белый мрамор. Он присутствует в отделке стен, а также украшает пол, обеденный стол и рабочую поверхность в зоне кухни. Живописный рисунок серовато-коричневых прожилок непрерывно перетекает с одного листа на другой, образуя однородное бесшовное покрытие.

Полубарные стулья, Barcelona Design. Стены покрыты краской, Little Greene.
Центром гостиной стал большой диван П-образной формы, созданный по моим эскизам. Он удобен как для просмотра телевизора, так и для сна. Решетки верхних аудиоколонок домашнего кинотеатра окрашены в цвет потолка и практически не заметны. Плотные бархатистые портьеры позволяют создать идеальное затемнение на время киносеанса. Зона отдыха объединена ковром от Rug Republic с абстрактным рисунком, вдохновленным работами художников ХХ века. В целом в интерьере есть много отсылок к ХХ и XIX векам: хозяин квартиры любит привозить из поездок старинные и аутентичные вещицы. Здесь есть старинный военный бинокль, латунные подсвечники, варган, книги в кожаном переплете и другие винтажные предметы.

Кухня выполнена по эскизам автора проекта. Бытовая техника, Neff. Смеситель, Blanco. Столешница и стены отделаны керамогранитом Calacatta Macchia Vecchia, Ariostea.

Вид на спальню. Бра, Dantone Home.
Спальня скрывается за раздвижными перегородками из полупрозрачного стекла. Главное место занимает кровать с мягким изголовьем, которое выстраивается в одну линию с рабочим столом. При необходимости он трансформируется в две отдельные тумбы. Обои за изголовьем цвета горького шоколада с латунными акцентами имеют легкий бархатистый рельеф. Рисунок зигзагов привносит динамику в пространство и визуально увеличивает высоту потолка. Фрезеровка на фасадах гардероба перекликается с принтом на обоях.

Спальня. Свет, Centrsvet. Обои, Loymina. Краска, Little Greene. Рабочий стол и кровать выполнены по эскизам автора проекта.

Кресло, ИКЕА. Постельное белье, Morpheus.

Встроенный шкаф выполнен по эскизам дизайнера. На столе — лампа, Dantone Home. Постер, Somodernart. Декоративное зеркало в мраморной раме, Dantone Home.
Интерьер украшает постер, в основе которого лежит коллаж Сергея Иванова под названием «Прыжок веры». На нем изображены молодые ныряльщики, и мы хотели таким образом подчеркнуть важность для мужчины любого возраста сохранять в себе свободный дух мальчишества, смелось и веру в себя.

Ванная комната. Керамогранит Tisse, Tau Ceramica. Сантехника и аксессуары, Noken. Полотенцесушитель, «Сунержа». Освещение, Centrsvet. Душевое ограждение, Artzerkal. Встроенный шкаф и тумба под раковину выполнены по эскизам автора проекта. Краска, Little Greene.

Входная дверь, стеновые панели из шпона американского ореха, Sofia. Свет, Centrsvet. Бра, Dantone Home. Зеркальное панно, Artzerkal. Встроенный шкаф выполнен по эскизам дизайнера.
Стены в ванной комнате облицованы керамогранитом голубовато-серого оттенка. Его текстура напоминает акварельную отмывку или технику японской монохромной живописи. У меня эта плитка ассоциируется с небесами, что прекрасно вписывается в нашу основную концепцию — восхищение красотой дикой природы и аскетизм, характерный для холостяцких интерьеров. Ванную объединяет с другими помещениями текстура американского ореха на двери, в оформлении тумбы под раковиной, а также декоративной ниши в стене.

Квартира в Москве. Проект Ольги Рифкиной.