По изначальному замыслу интерьер планировался ближе к современной классике, с более легкими и воздушными формами и мебелью. Но в процессе реализации хозяйка поняла, что ей по душе другое: основательность и традиции. Дизайнеры воплотили все пожелания своей заказчицы.
Заказчик и задачи
Владелица этой квартиры — состоявшаяся женщина, в прошлом судья. Квартира предназначена для временных остановок, отдыха в центре культурной жизни Екатеринбурга, постоянно же хозяйка проживает за городом. Для оформления интерьера владелица обратилась к дизайнерам студии «Красивый дом» под руководством Ольги Казанцевой.

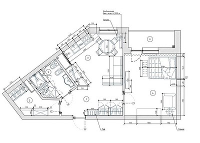
Планировка
«Нам повезло с планировкой», — сразу сказали дизайнеры. Застройщик предусмотрел в квартире большую кухню-гостиную, отдельную спальню, гардеробную при входе и достаточно просторный санузел. При спальне также есть балкон. Перепланировка не требовалась.

Отделка
Хозяйка сразу сказала о своей любви к традиционному стилю, но в изначальной концепции пространство задумывали как близкое к современной классике. Исходя из этого выбрали высокие карнизы и дерево на пол — инженерную доску, которой покрыли все помещения в квартире, кроме ванной комнаты. Высокие деревянные плинтусы также стали частью классической композиции. Но в процессе работы современная классика стала более традиционной — так, например, в отделке ванной использовали несколько видов светлой плитки с рисунком мрамора, а на полу — более крупную плитку с тем же рисунком в сочетании с декором из мелких черных квадратов. Стены окрашены в светлые тона — более теплые в общей зоне и более прохладные — в приватной (спальне).

Системы хранения и мебель
Так как планировкой была предусмотрена гардеробная, это значительно облегчило интерьер визуально — не понадобилось проектировать множество шкафов. Их всего два. Один — в прихожей, куда спряталась вся одежда (секции ближе к спальне предназначены для повседневных вещей, а ближе к входной двери — для верхней одежды). Второй — в ванной, где встроены стиральная и сушильная машины. В спальне же от шкафов отказались совсем — хватило комода для личных вещей и прикроватной тумбочки.
Что касается кухни — ее спроектировали на заказ, верхний ряд шкафов с частичным остеклением, что визуально также напоминает о классике. Цвет фасадов кухни и шкафа в прихожей идентичен окраске стен — это растворяет в пространстве массивную мебель.

Столовая группа составлена из классических моделей — круглого стола на одной ножке и венских стульев.

Мебельное наполнение спальни — также из серии традиционной классики: кровать, тумбочку и комод из массива выбрали из одной коллекции.

«Несмотря на то, что в проекте была согласована мебель, в основном, в стиле современной классики, с более лаконичными модными формами, во время реализации клиентка поняла, что такие вещи ей не нравятся совсем. Поэтому нам пришлось составлять новые комбинации на ходу. Кровать с модной мягкой спинкой заменили на кровать из массива, соответственно, изменились тумба и комод, и даже люстра — все ушло в более традиционный вид, который хозяйке оказался милее всего. Это один из немногих наших проектов, где использован так называемый гарнитур: и комод, и прикроватная тумба, и кровать из одной коллекции. И один из немногих проектов, где комод и тумба — фабричные, а не изготовленные по эскизам конкретно для проекта. Но в данном контексте интерьера, в котором на первом месте — традиции и привычный образ жизни, такой выбор оказался самым уместным», — делятся авторы проекта.

Освещение
Сценарии освещения также традиционные: общий потолочный свет в виде треков в кухне-гостиной, прихожей и люстры в спальне, дополнительный в виде бра — у дивана, у комода в спальне, а также небольшого ридера у кровати. Кстати, бра у комода перекрашивали в цвет стен самостоятельно — в оригинале они классического белого оттенка.
Единственное не классическое решение, на которое согласилась хозяйка — светодиодная подсветка под тумбой в ванной комнате, которая работает под датчику движения. Это проверенный дизайнерами прием, который они рекомендовали заказчице как очень удобный — свет пригождается ночью, не слепит глаза.


Дизайнер Ольга Казанцева, руководитель и автор проекта:
Стиль был продиктован владелицей квартиры, мы уважительно отнеслись к ее пожеланиям. Само пространство вполне подходило под убранство в классическом стиле: достаточно высокие потолки, правильной высоты окна, много солнечного света. И стиль клубного дома также располагал к такой внутренней отделке. Мы бережно использовали лепной декор — по минимуму на стенах, простые гладкие потолочные карнизы правильных для нашей высоты пропорций, высокие напольные плинтусы, которые сразу придали интерьеру утонченный вид. Декор подбирали исходя из идеи интеллигентного жилья, купленного для отдыха и наслаждения культурной жизнью большого города. Хрусталь подсвечников и вазы перекликается с хрустальной люстрой в спальне, кофейный столик из перламутра идеально вписался в цветовую гамму. Так как бюджет у нас был ограничен, весь текстиль для штор из Leroy Merlin. Мы купили ткани, продумали дизайн, подобрали декор — и все отшили сами. Даже при небольшом бюджете можно подобрать идеальный текстиль для создания полноценного образа.
11 фото

Вид на гостиную из прихожей

Кухня-гостиная

Кухня-гостиная

Гостиная

Дверь в спальню

Спальня

Спальня

Спальня

Санузел

Санузел

Санузел Редакция предупреждает, что в соответствии с Жилищным кодексом РФ требуется согласование проводимых переустройств и перепланировок.

Смотреть перепланировку

Анастасия Дубровина

Михаил Поморцев

Ирина Чертихина

Анастасия Раева

Елена Бачурина Классический стиль Светлые цвета