Бюро ANC concept создало стильный интерьер квартиры в типовом сталинском доме, наполнив пространство классическими деталями и винтажными предметами. О проекте рассказывают сами архитекторы
Гостиная. Диван, Rooma Design. Люстра, Sylcom.
ПАРАМЕТРЫ ОБЪЕКТА
-
Тип недвижимости: квартира в сталинском доме
-
Где находится: г. Москва, Ленинский проспект
-
Метраж: 58 м²
-
Стиль: современный с классическими элементами и винтажем
-
Основная идея проекта: создать светлый и функциональный интерьер
-
Цветовая гамма: теплый белый
-
Авторы проекта: архитекторы Кирилл Устинов и Петр Лукьянов, дизайн-бюро ANC concept, www.ancconcept.ru, buro@ancconcept.ru

Бра, Astro Lighting. На стене — картина Алексея Ланцева.

Архитекторы Кирилл Устинов и Петр Лукьянов, бюро ANC concept.
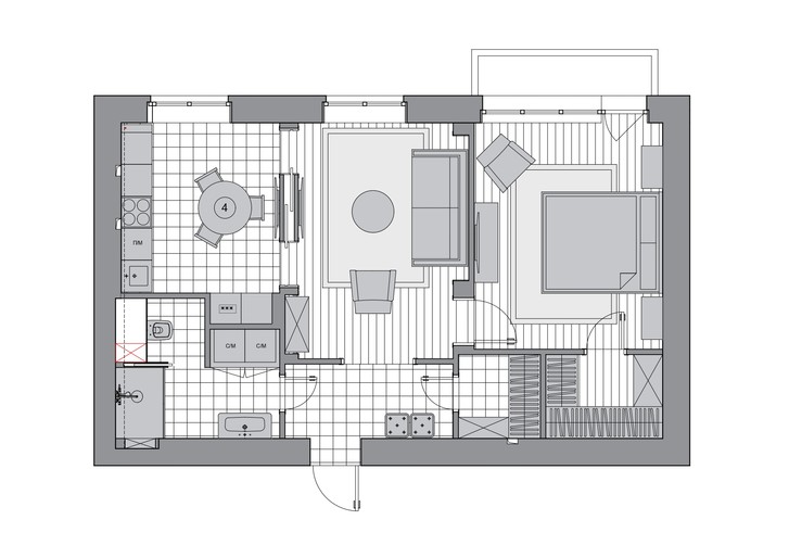
Интерьер этой квартиры создавался для старшего поколения семьи, с которой мы раньше уже работали. Нашей задачей было создать просторное и светлое пространство, организовать грамотное хранение и найти место для подсобных помещений. Квартира располагается в сталинском доме, поэтому ее основными плюсами стали большие окна и высокие потолки. Из минусов — очень низкая входная дверь и наличие газовой трубы.

Журнальный стол, винтаж.
В первую очередь мы визуально объединили пространство кухни и гостиной, сделав два проема с раздвижными стеклянными дверьми. Для хозяйственных нужд мы отделили часть большой комнаты, которая стала спальней, чтобы организовать два гардероба. Проход в кухню через комнату позволил увеличить ванную комнату и сделать в ней хозяйственную нишу.

Кресло, винтаж.
Бюджет проекта был разумно ограничен, поэтому нам пришлось комбинировать различные материалы и придумывать, как сэкономить, но при этом не потерять в комфорте и внешнем виде. На кухне все началось со светильника от Vibia, висящего над столом: он задал цвет, в который также выкрашена кухня и стулья. Чтобы не загромождать пространство, мы повесили всего два верхних шкафа — для сушки и вытяжки. Свободное место занял натюрморт «Лимоны» Натальи Смирновой. Так же на кухне расположились работы Елены Лунетской из Carre D’Artistes. На кухонном фартуке самая дешевая отечественная плитка соседствует с натуральным мрамором Bianca Carrara.

Кухня, мебельная фабрика «Мария». На фартуке — картина Натальи Смирновой.

Стол и стулья, Unika Moblar. Светильник, Vibia. Керамика, Zara Home.
Чтобы сделать обстановку более теплой и уютной, мы дополнили интерьер винтажными предметами. Большой удачей было найти кресло Cassina, которое мы перетянули новой тканью. Теперь оно украшает гостиную и сочетается со старинным журнальным столиком с латунными деталями. Над диваном висит картина Алексея Ланцева, а стену смежную с прихожей украшают работы художника Жиля Манкони, который рисует свои картины на жести от водосточных труб.

Спальня. Кровать и тумбы, Rooma Design. Настенные светильники, Astro Lighting.

Над изголовьем — картины Евгения Серкова, Carre d’artistes.

Комод, Rooma Design. Кресло, винтаж. Керамика, Zara Home.
Центральное место в спальне заняла высокая кровать, над изголовьем которой висят пейзажи Евгения Серкова. Лаконичная гипсовая лепнина структурирует пространство стен и выделяет зоны размещения картин и освещения. Рядом с кроватью в углу расположилось винтажное кресло, перетянутое тканью под пальто.

Ванная комната. Мебель, Duravit. Сантехника, Hansgrohe. Освещение, Astro Lighting.
В ванной комнате унитаз скрывается за раздвижной дверью, в нише напротив раковины находится хозяйственная зона с хранением и стиральной машиной. Ниша в душевой кабине досталась от старой планировки, мы отделали ее мрамором и сделали лавочку и полки.

Квартира в Москве. Проект бюро ANC concept.