Вторник, 28 октября, 2025

Светлые и уютные апартаменты в Сочи 64 м²

Это интересно

Заказчики собирались сдавать эту квартиру, но когда увидели ее после ремонта, решили жить в ней сами

Кухня-гостиная. Диван, Oprime Caro. Стол, teakhouse.ru. Подвесной светильник, anna_lampdesign. На полу и на фартуке крупноформатный керамогранит, Colorker. Краска и декоративная штукатурка, Oikos.

Хозяева этой небольшой квартиры в Сочи, купленной для сдачи в аренду, сначала не планировали ничего радикального. Им хотелось всего лишь обновить интерьер, который выглядел устаревшим, но дизайнеру Никите Козлову удалось подвигнуть их на более кардинальные изменения.

Светлые и уютные апартаменты в Сочи 64 м²

Кухня-гостиная, фрагмент. Диван — отличная видовая точка, отсюда можно любоваться морем. Журнальные столики Berg, La forma, Boconcept. Ковер, kover.ru. Картины, margu.art.

Светлые и уютные апартаменты в Сочи 64 м²

Вид из прихожей на кухню-гостиную. Справа — дверь в мастер-спальню.

Светлые и уютные апартаменты в Сочи 64 м²

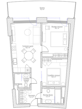
Планировку менять не стали, чтобы избежать больших затрат. В плане квартира представляет собой трапецию с двумя окнами по одной стороне.

Обычно в таких случаях возле окон располагают те комнаты, которым нужен естественный свет, а служебные помещения прячут в темной части квартиры. Но здесь жилых комнат было три, а окна всего два.

Отказываться от гостевой комнаты заказчикам не хотелось, поэтому было решено расширить дверной проем и установить стеклянные раздвижные перегородки. Свет в гостевую попадает из кухни-гостиной, а роль окна играет круглое зеркало, похожее на большой корабельный иллюминатор.

Светлые и уютные апартаменты в Сочи 64 м²

Кухня-гостиная, фрагмент.

Светлые и уютные апартаменты в Сочи 64 м²

Кухня-гостиная, фрагмент.

Кухню удалось вписать в нишу между ригелем и несущей колонной. Это позволило создать большой объем для хранения посуды и хозяйственных мелочей и отказаться от верхних шкафов в рабочей зоне кухни. Керамогранит, «перетекающий» с пола на фартук, зрительно ее расширяет.

Светлые и уютные апартаменты в Сочи 64 м²

Кухня-гостиная, фрагмент. Слева видная застекленная дверь, сквозь которую в гостевую спальню попадает дневной свет.

В мастер-спальне была сделана шумоизоляция, которая позволила придать этому помещению более правильную форму. Узкий гостевой санузел расширить было нельзя, но его пропорции дизайнеру удалось скорректировать при помощи декораторского приема: раскладка белой и серой плитки выполнена в форме градиента от белого потолка к серому полу.

Светлые и уютные апартаменты в Сочи 64 м²

Мастер-спальня. Прикроватный столик, La forma. Трековая система, Centrsvet. Обои, Wallquest.

Для кухни-гостиной и спальни намеренно выбраны мягкие серые тона. Нейтральная цветовая гамма подчеркивает, что интерьер — лишь рама для той картинки, которая видна из окон. Для вечно меняющегося моря, голубого неба и пышных парков Сочи.

Светлые и уютные апартаменты в Сочи 64 м²

Мастер-спальня, фрагмент. Подвесной светильник, Faro.

Светлые и уютные апартаменты в Сочи 64 м²

Мастер-спальня, фрагмент.

Светлые и уютные апартаменты в Сочи 64 м²

Мастер-спальня, фрагмент.

Больше автор проекта гордится техническими «фишками», которые на фотографиях, к сожалению, не видны. «Для дизайнера особо важно использовать в проекте новые решения и технологии, — объясняет он. — Здесь такими решениями стало использование теневых профилей вместо плинтуса, лаконичные решетки канального кондиционера в мастер-спальне, выполнение душевых вровень с общим полом и скрытые датчики протечки. Все эти решения позволяют сохранить пространство целостным и легким».

Светлые и уютные апартаменты в Сочи 64 м²

Гостевая комната. Подвесной светильник Centrsvet; покраска и декоративная штукатурка Oikos; гипсовые панели Avrora lepnina.

Светлые и уютные апартаменты в Сочи 64 м²

Гостевая комната. Дневной свет попадает сюда сквозь стеклянную дверь.

Светлые и уютные апартаменты в Сочи 64 м²

Мастер-ванная, фрагмент. Сантехника, Noken. Раковина, Duravit. На полу и стенах крупноформатный керамогранит, Italon. Плитка, Equipe.

Светлые и уютные апартаменты в Сочи 64 м²

Гостевой санузел. Сантехника и раковина, Noken.

Светлые и уютные апартаменты в Сочи 64 м²

Гостевой санузел. На полу и стенах крупноформатный керамогранит, Colorker. В душевой плитка, Equipe.Татьяна Филиппова

Новое на сайте

Похожие статьи

Если вы хотите получать уведомления на свой E-mail о появлении новых статей, то рекомендуем вам чуть ниже ввести свой электронный почтовый адрес.