Молодая девушка решила перевезти в столицу свою маму, для чего приобрела эту квартиру и заказала у дизайнера ее ремонт. Все постарались сделать по вкусу будущей хозяйки, о котором подробно поведала ее дочь.
Заказчики и задачи
Эта однокомнатная квартира находится в панельном доме 2003 года постройки в Москве. Молодая девушка купила ее для своей мамы — зрелой женщины на пенсии, которая удаленно работает дома. Среди пожеланий было: предусмотреть места для хранения, рабочее место и тахту с ортопедическим матрасом. Дизайнеры Нина Абасеева и Сергей Щеповалин подробно выяснили вкусы будущей хозяйки, чтобы интерьер отвечал ее представлениям о прекрасном.

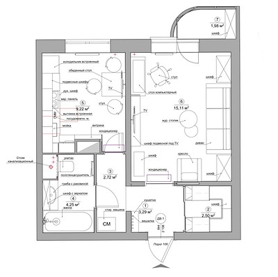
Перепланировка
Изначальная планировка квартиры — стандартная однушка с достаточно большой прихожей, раздельным санузлом и ванной комнатой. Дизайнер предложила небольшую перепланировку, которая коснулась санузла и прихожей. Так, в прихожей выделили гардеробную за раздвижными зеркальными дверями. А санузел объединили, чтобы получить более просторное удобное помещение.

Отделка
Для отделки стен в коридоре, прихожей и на кухне выбрали краску, а в комнате украсили пространство фреской. «Так как мама очень любит цветущую вишню и сады, мы перенесли цветущий сад в квартиру», — комментирует Нина.

На полу почти по всей площади квартиры уложили инженерную доску. Такой выбор сделали в том числе для коридора и столовой зоны кухни, но это намеренное решение — по словам автора проекта, не хотели «дробить» небольшую квартиру на разные зоны, используя отличающиеся отделочные материалы. Для практичности только небольшой участок пола рядом с кухонным гарнитуром оформили плиткой.

В ванной комнате — плитка под мрамор на полу и стенах. Зону над ванной выделили фактурной плиткой с тем же рисунком — таким образом сохранили единство пространства, но при этом добавили акцента.

Мебель и системы хранения
Систем хранения в квартире много, даже несмотря на ограниченную площадь. Так, в прихожей выделена гардеробная. Для верхней одежды предусмотрена вешалка.

В коридоре, ведущем на кухню, встроили шкаф, который стал хозяйственным — туда спрятана стиральная машина, но есть место и для хранения нужных принадлежностей.

В комнате — два платяных шкафа, установленные по бокам от тахты, тумба напротив и рабочий столик, выполненные в едином стиле.
Своеобразным арт-объектом стала витрина в нарочито классическом стиле. Он остался от предыдущих хозяев квартиры, его решили перекрасить в яркий оттенок, теперь он украшает комнату.

Кухонный гарнитур выполнен в сочном зеленом оттенке, который контрастирует с нейтральными стенами. Предусмотрели и необходимую технику, и место для хранения. В том же цвете — тумба под раковину в ванной комнате.
Освещение
В качестве основного света в комнате, на кухне и в прихожей использованы красивые люстры. Дополнительные источники света — настенные бра рядом с обеденным столом на кухне, точечная потолочная подсветка зоны рядом со шкафами в комнате, настенные бра над тахтой, подсветка штор.

Дизайнер Нина Абасеева, одна из авторов проекта:
Молодая успешная девушка решила перевезти маму в Москву и обратилась к нам с запросом помочь в обустройстве «квартиры мечты» для нее. Покупку заказчица решила оставить в секрете. Хотела сообщить маме, когда уже будет сделан ремонт. Сложно предугадать предпочтения «третьего» человека, но мы провели очень подробное анкетирование о маминых предпочтениях и справились с задачей.
11 фото

Комната

Комната

Комната

Комната

Кухня

Кухня

Кухня

Кухня

Прихожая

Ванная комната

Ванная комната
Как квартира выглядела до ремонта





Редакция предупреждает, что в соответствии с Жилищным кодексом РФ требуется согласование проводимых переустройств и перепланировок.

Смотреть перепланировку

Анастасия Дубровина

Ольга Пегова Маленькие квартиры Бежевый цвет Розовый цвет Современная классика