Дизайнер Кристина Личик создала новое пространство, не меняя планировку. Здесь смешаны современные решения, винтаж и есть ироничные детали, которые добавляют интерьеру театральности.
Заказчики и задачи
Владельцы этой квартиры в центре Москвы — молодая семейная пара. Дизайнер Кристина Личик описывает своих заказчиков как «театралов и эстетов». Они хотели сохранить планировку, высоту потолков и историзм, присущий квартирам в старых домах, но при этом осовременить интерьер.

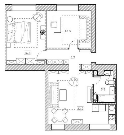
Планировка
В квартире уже была сделана перепланировка, которая соответствовала требованиям владельцев: две отдельные жилые комнаты, общая кухня-гостиная (на маленькой кухне установлена электроплита, поэтому правилам перепланировки такое объединение не противоречит), ванная комната. Дизайнеру нужно было только учесть существующие перегородки для расстановки мебели и планирования систем хранения.

Отделка
Концепция интерьера — легкая театральность — отразилась в отделке. Для стен в гостиной, кухне, коридоре и спальне выбрали краску. В гостиной — глубокий синий цвет, в спальне — ягодный красный, на кухне и в коридоре — светлые оттенки. Для кабинета выбрали обои с рисунком классической клетки — легкая отсылка к английскому стилю (кстати, в продолжение этого и в поддержку некой театральности и иронии в ванной комнате размещена картина с портретом Елизаветы II).

На полу уложили паркет в раскладке «елка». Оставили лепнину, которая была в этой квартире. Все это — отсылка к классическому стилю, что помогает сохранить тот самый дух сталинки, как хотели хозяева.

На полу кухни — плитка с рисунком. В ванной комнате скомбинировали плитку и краску на стенах — глянцевые светлые квадраты и зеленая краска. На полу — плитка с геометрическим узором.
Мебель и системы хранения
Системы хранения выстроили по стенам. В прихожей — высокие шкафы с фасадами зеленого цвета, которые выгодно смотрятся на фоне светлых стен. В нише у входа организовали вешалку для верхней одежды. Ее эффектно выделили обоями. Напротив ниши — обувница.

В гостиной — невысокие буфеты для посуды и декора, а также тумба напротив дивана. В спальне шкафы размещены по стене напротив окна, а напротив кровати предусмотрели комод для белья.

В ванной комнате спроектировали тумбу под раковину и в дополнение к ней — подвесной стеллаж с открытыми и закрытыми полками. Встроенный шкаф со стиральной машиной и местом для хранения хозяйственных принадлежностей закрыт жалюзийными дверцами.

На маленькой кухне — такой же компактный кухонный гарнитур. Отдельно стоящий красный холодильник Smeg — акцентное решение. Верхние шкафы сделали только по одной стене, а вторую дополнили открытыми полками для хранения круп и декора (сейчас полку украшает портрет трех хозяйских котов), чтобы не утяжелять пространство.
«Мягкая мебель подобрана на стыке современного функционала и классических мотивов, в кабинете — диван Честер для приема важных гостей, а в спальне — кровать с бархатным каретным изголовьем. Мы использовали мебель французского бренда La Redoute и обращались к российским производителям. Комоды, тумбочки — винтаж», — комментирует Кристина.

Освещение
Высокие потолки позволили использовать подвесные люстры в качестве потолочного освещения. Дополнительные сценарии — настольные лампы, бра — добавляют атмосферного освещения и камерности в темное время суток.


Дизайнер Кристина Личик, автор проекта:
Вдохновением послужила сама квартира — она находится в историческом здании в центре Москвы, с высокими потолками, лепниной и хорошей планировкой. Я хотела создать для своих заказчиков красивое эклектичное пространство с миксом современной и ретромебели. Комнаты — в ярких броских оттенках, что добавляет театральности и китча интерьеру. Мы использовали большую палитру оттенков. В каждом помещении отдельный оттенок выступает главным. Дополнительно к нему присоединяются тона из других комнат. Таким образом, квартира разноцветная, но существует общая нить цветовой палитры. В темное время суток освещение не только дает свет, но и добавляет акцентные узоры, что также играет нам на руку в «театральном» сценарии.
13 фото

Гостиная

Гостиная

Гостиная

Кухня

Кухня

Коридор

Спальня

Спальня

Спальня

Спальня

Спальня

Кабинет

Ванная комната
Как квартира выглядела до ремонта
10 фото










Редакция предупреждает, что в соответствии с Жилищным кодексом РФ требуется согласование проводимых переустройств и перепланировок.

Смотреть перепланировку

Анастасия Дубровина

Инна Каблукова

Анастасия Ламанова Эклектика Яркие цвета