Дизайнер Екатерина Плотникова спроектировала интерьеры небольшой квартиры-студии в Иркутске, где с помощью выбранной карамельно-коричневой гаммы сложилась камерная и во всех смыслах теплая атмосфера
ОБЩИЕ ПАРАМЕТРЫ:
Тип недвижимости: апартаменты в новостройке
Где находится: г. Иркутск, ул. Байкальская
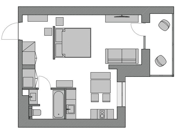
Размер: 40 м2
Стиль: уютный минимализм
Основная идея: создать комфортные апартаменты для
Цветовая гамма: карамельная с трюфельными нотками
Автор проекта: дизайнер Екатерина Плотникова; т. +7(950) 052-47-76

Стол и консоль, ИКЕА. Настольная лампа и торшер, Faro Barcelona. Kраска на стенах и потолке, Lanors. Плитка на полу, Kerama Marazzi. Лавка, La Redoute. Текстиль, Tata Home.
Есть интерьеры, в которых тепло и уютно вне зависимости от сезона. Именно такой интерьер просила создать для нее хозяйка этих небольших апартаментов в иркутской новостройке. «Заказчица давно занимается бизнесом в сфере гостеприимства, и ей нужно было уютное пространство, куда бы хотелось возвращаться снова и снова», — рассказывает дизайнер Екатерина Плотникова.
Студия площадью 40 кв. метров предназначалась для сдачи в посуточную аренду, здесь должно было быть предусмотрено все необходимое для временного пребывания, так и для постоянного жилья.

Стол, ИКЕА. Kраска на стенах и потолке, Lanors/Mons. Плитка на полу, Kerama Marazzi. Лавка, La Redoute. Текстиль, Tata Home. Стулья, Diwonder.
Это были однокомнатные апартаменты с раздельными жилыми зонами. Требовалось создать максимум «воздуха» и простора и при этом разместить все необходимое для комфортной жизни. В итоге на небольшой площади удалось разместить кухню, гостиную с компактным диваном, удобную кровать, прихожую, переходящую в коридор со шкафами (где, кстати, прячется не только одежда, но и стиральная машина). Стилистическое решение, декор и цветовая гамма максимально располагают к отдыху и комфортному времяпрепровождению.

Стол, ИКЕА. Настольная лампа и торшер, Faro Barcelona. Kраска на стенах и потолке, Lanors/Mons. Плитка на полу, Kerama Marazzi. Kровать, Diwonder. Текстиль, Tata Home. Стеновые панели, Orac Decor.


Кухня выполнена на заказ мебельным производством Geometry.
Чтобы визуально расширить интерьер дизайнер использовала единую цветовую гамму для всего пространства — распространный и эффективный дизайнерский прием, когда одной краской выкрашивают потолок и стены, даже если, как в этих апартаментах, оттенок не такой уж светлый. А чтобы маленькая прихожая смотреласть просторнее, Екатерина облицевала перегородку, отделяющую входную зону от основного помещения, зеркалом. Благодаря этому границы прихожей буквально растворяются в пространстве, создавая эффект большого помещения, когда входишь в квартиру.

Прихожая. Консоль выполнена на заказ по эскизам дизайнера на местном столярном производстве. Бра на стене, Faro Barcelona. Краска на стенах и потолке, LanorsMons. Лавка и ваза, La Redoute. Шкафы в прихожей, Geometry. Графика «Вдохновляющий Иркутск», Екатерина Плотникова. «Во время работы над проектом мы поняли, что сюда будут приезжать люди из разных концов страны, которым интересен наш город. Именно эти мысли сподвигли меня создать скетчи с видами Иркутска — моих любимых мест», — рассказывает дизайнер.

Консоль, ИКЕА. Торшер и лампа на консоли, Faro Barcelona. Стеновые панели, Orac Decor. Краска на стенах и потолке, Lanors/Mons.

Гостиная, фрагмент. Консоль, ИКЕА. Настольная лампа, Faro Barcelona. Стеновые панели, Orac Decor. Краска на стенах и потолке Lanors/Mons.
Этот небольшой интерьер стал для дизайнера своего рода выходом из зоны комфорта. «Он непривычен для меня по цветовому настроению, по бюджету, по назначению помещения. Я горжусь, что на таком крохотном пространстве мне удалось выполнить все поставленные задачи и получить действительно уютный и атмосферный интерьер» — отмечает Екатерина.

«В процессе работы над проектом мы поняли, что сюда будут приезжать люди из разных концов страны, которым интересен наш город. Это сподвигло меня создать графику с видами моих любимых мест Иркутска»


План квартиры-студии 40 кв.м в Иркутске.