Ar Architects создали монохромный интерьер, наполненный фактурами горного сланца и натурального мрамора. О проекте рассказывают основатели бюро Руслан Айбушев и Азат Ханов
Журнальные столики, BoConcept. Диван и кресла, Mass Furniture.

Руслан Айбушев и Азат Ханов, бюро Ar Architects.
Наш заказчик — молодой спортсмен. Это уже второй наш совместный проект, поэтому работать было легко. Мы быстро выбирали стилистическое направление, определились с отделочными материалами — владелец хотел, чтобы они отличались от тех, что были в предыдущей квартире — согласовали визуализации, сделали проект и сразу приступили к реализации. В следующий раз с заказчиком мы встречались, когда все уже было готово.

Подвесной светильник Arrangements Line, Flos.
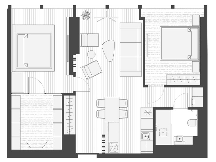
Планировка апартаментов включает две спальни, гардеробную, санузел и просторную общую зону для отдыха и приема гостей. Мы стремились сделать пространство максимально открытым и объемным. Для этого мы заменили глухие стены на узкие вертикальные балки и стеклянные перегородки, а также визуально разграничили зоны за счет цвета и фактур.

Столешница выполнена из кварцевого агломерата, Caesarstone.

Стена отделана мрамором Bardiglio Nuvolato. Треки и споты, «Центрсвет».
Как таковой прихожей в апартаментах нет: входная зона плавно перетекает в кухню-гостиную. Чтобы сохранить визуальную целостность помещения, фасады кухни и гардероба мы сделали в одном материале — черном горном сланце. При этом зоны разделили длинным островом-столом из кварца и деревянными балками.
В гостиной расположился большой диван и пара кресел, дополненные разными по высоте и размеру журнальными столиками. Стены напротив облицована серым мрамором с белыми и серебристыми вкраплениями. Тот же материал использован в кухне и главной спальне.

Дверь, коллекция Invisible, Sofia.

Кровать, Mass Furniture.
Часть основной спальни занимает гардеробная, закрытая стеклянными перегородками — так комната кажется больше своего изначального размера, и при подборе одежды можно наслаждаться видом из окон. По центру спальни расположилась большая кровать с широкой боковой кушеткой, а напротив него предусмотрен телевизор. Он спрятан за раздвижными дверями встроенного стеллажа.
Гостевая спальня получилась очень уютной за счет ковролина с высоким ворсом. В комнате есть невысокая кровать в темной обивке и шкаф, отделанный черным сланцем.

Стеклянные перегородки, Decus.

Торшер, серия Invisible, Grok.
В санузле благородно переливается на свету нержавеющая сталь. Из нее выполнен шкаф, за которым спрятаны технические коммуникации и места для хранения. Остальное пространство оформлено крупноформатной плиткой с инкрустированными черными профилями. Все небольшие элементы, такие как смесители, держатели для туалетной бумаги, полотенцесушитель и бра тоже выполнены в черном цвете.

Кровать, Mass Furniture. Настольная лампа, серия Asteria, Umage.

Как мы уже говорили, заказчик полностью доверил реализацию нам. И когда мы вместе пришли в уже готовые апартаменты, он решил нас немного разыграть. Заказчик начал удивленно осматривать пространство и в какой-то момент остановился и сказал: «Парни, я же не этот дизайн согласовал». Выдержав драматическую паузу, он засмеялся и добавил: «Шучу, это очень круто!». На момент сердце ушло в пятки.
Авторы проекта: Руслан Айбушев и Азат Ханов, бюро Ar Architects, www.ar-architects.ru

Раковина, Own Concept. Смеситель, серия Metropol, Hansgrohe.

Квартира 78 кв. м в Москве. Проект бюро Ar Architects.